PRODAJA, BREZOVICA, CENTAR, 8 KUĆA U NIZU, 84 M2 + VRT + 2PM

Cijena: 252.374,00 €
ID oglasa: 97134

Osnovni podaci

Lokacija Zagreb, Zagreb - Okolica, Brezovica
Tip kuće Samostojeća
Stambena površina 98,97 m²
Broj etaža Prizemnica
Broj soba 4
Netto površina 49,73 m²
Površina okućnice 49,73 m²

Opis

PRODAJA, BREZOVICA, CENTAR, 8 KUĆA U NIZU, 84 M2 + VRT + 2PM
Bez agencijske provizije i poreza na promet nekretnina.
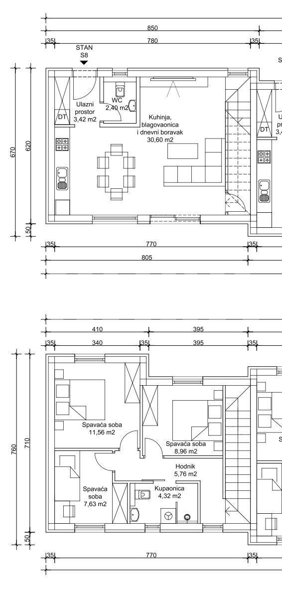
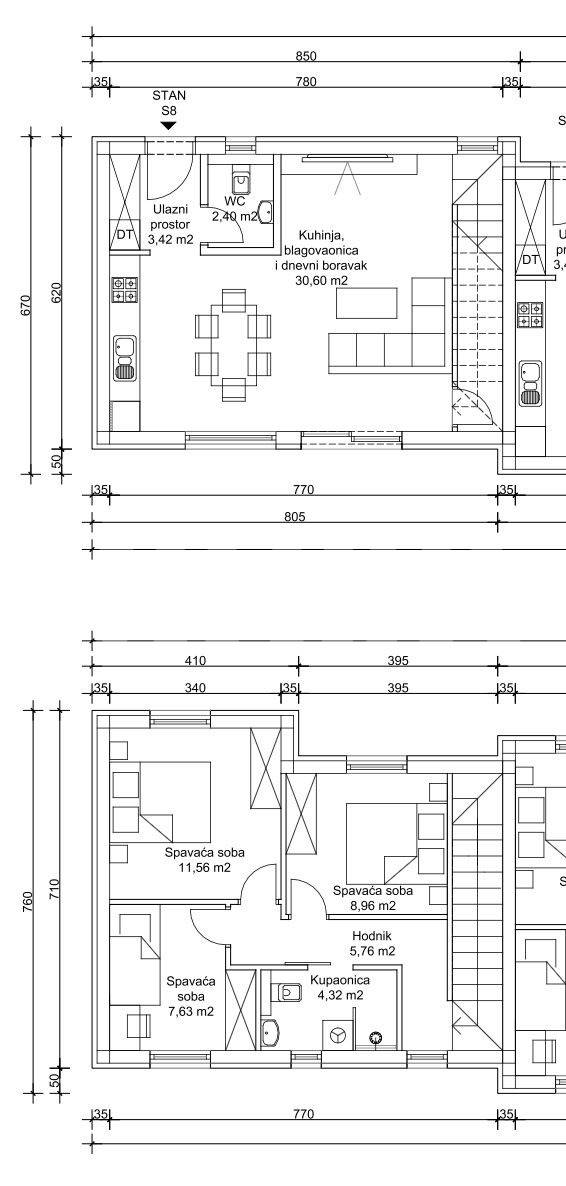
Projekt u fazi ishođenja građevinske dozvole, osam kuća u nizu, svaka sa dva parkirna mjesta i vrtom.
Svaka kuća se sastoji od : u prizemlju je ulazni hodnik, wc, dnevni boravak s kuhinjom i blagavaonicom, a na katu tri spavaće sobe i kupaonica ukupne površine 84 m2.
S1 - kuća 84 m2 + 2PM + vrt 112 m2 = 284.788 eura
S2 - kuća 84 m2 + 2PM + vrt 47 m2 = 253.572 eura
S3 - kuća 84 m2 + 2PM + vrt 44 m2 = 250.206 eura
S4 - kuća 84 m2 + 2PM + vrt 44 m2 = 252.476 eura
S5 - kuća 84 m2 + 2PM + vrt 50 m2 = 252.374 eura
S6 - kuća 84 m2 + 2PM + vrt 48 m2 = 254.465 eura
S7 - PRODANO
S8 - kuća 84 m2 + 2PM + vrt 182 m2 = 294.025 eura
OPREMA:- Konstrukcija cigla, pregradbeni zidovi knauf- Izolacija – termo fasada stiropor- PVC stolarija rehau, troslojno staklo + rolete na struju- dizalice topline i podno grijanje u svim prostorijama- klima u dnevnom boravku- pločice prve klase u kupaonicama, parket u ostatku kuće
Za sve informacije nazovite 098/359876
ZIHER
Agencija za posredovanje u prometu nekretninama

Lokacija

close
Napomena: Prikazana je približna lokacija

Kontakt podaci

Oglas objavljen 11.08.2025. 08:32
Do isteka još 2 godine i 8 mjeseci
Pregleda 6

Slični oglasi Pogledaj sve oglase

Navedite razlog prijave oglasa

Podijeli oglas

PRODAJA, BREZOVICA, CENTAR, 8 KUĆA U NIZU, 84 M2 + VRT + 2PM

PRODAJA, BREZOVICA, CENTAR, 8 KUĆA U NIZU, 84 M2 + VRT + 2PM

ID oglasa: 97134

Cijena: 252.374,00 €

U usporedbi može biti maksimalno 4 oglasa. Uklonite 1 oglas kako bi dodali novi oglas u usporedbe

PROVJERI OGLASE