POREČ, TAR-VABRIGA, NOVOGRADNJA SA 13 STANOVA, USELJENJE 12/2025

Cijena: 465.000,00 €
ID oglasa: 97117

Osnovni podaci

Lokacija Istarska, Tar-Vabriga, Vabriga
Tip stana u stambenoj zgradi
Stambena površina 153 m²
Broj etaža 3
Broj soba 4
Kat 3. kat
Ukupni broj katova u zgradi 3

Opis

POREČ, TAR-VABRIGA, NOVOGRADNJA SA 13 STANOVA, USELJENJE 12/2025
Prodaju se stanovi u novogradnji sa 13 stanova, koja je u završnoj fazi izgradnje, planirano useljenje je u 12/2025 g.
Stanovi su opremljeni električnim podnim grijanjem, sve prostorije imaju klima uređaj, vrhunska keramika i parketi, zgrada ima lift.
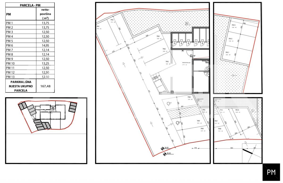
Svakom stanu pripada jedno parkirno mjesto i spremište, koji su uključeni u cijenu.
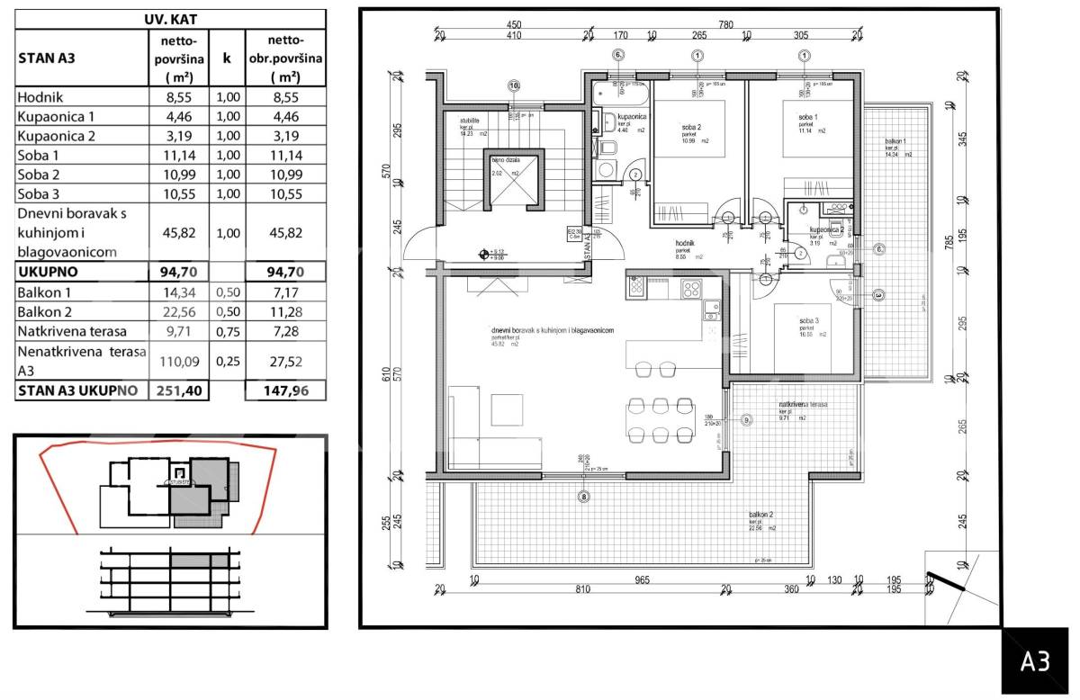
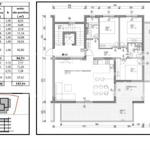
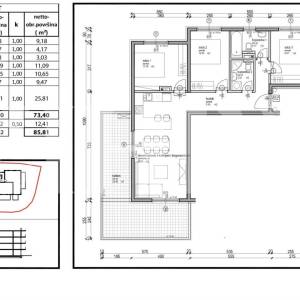
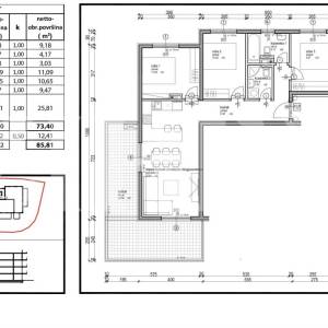
Stan A3, na trećem, uvučenom katu s velikom krovnom terasom od 110 m2, sastoji se od ulaznog hodnika, dnevnog boravka s kuhinjom i blagavaonicom, tri spavaće sobe, dvije kupaonice, ukupne površine 94,70 m2. Stan ima dva balkona, od 14 m2 i 32 m2, te krovnu terasu, cijena 465.000 eura
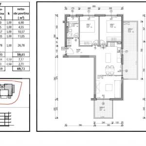
Ostali slobodni stanovi :
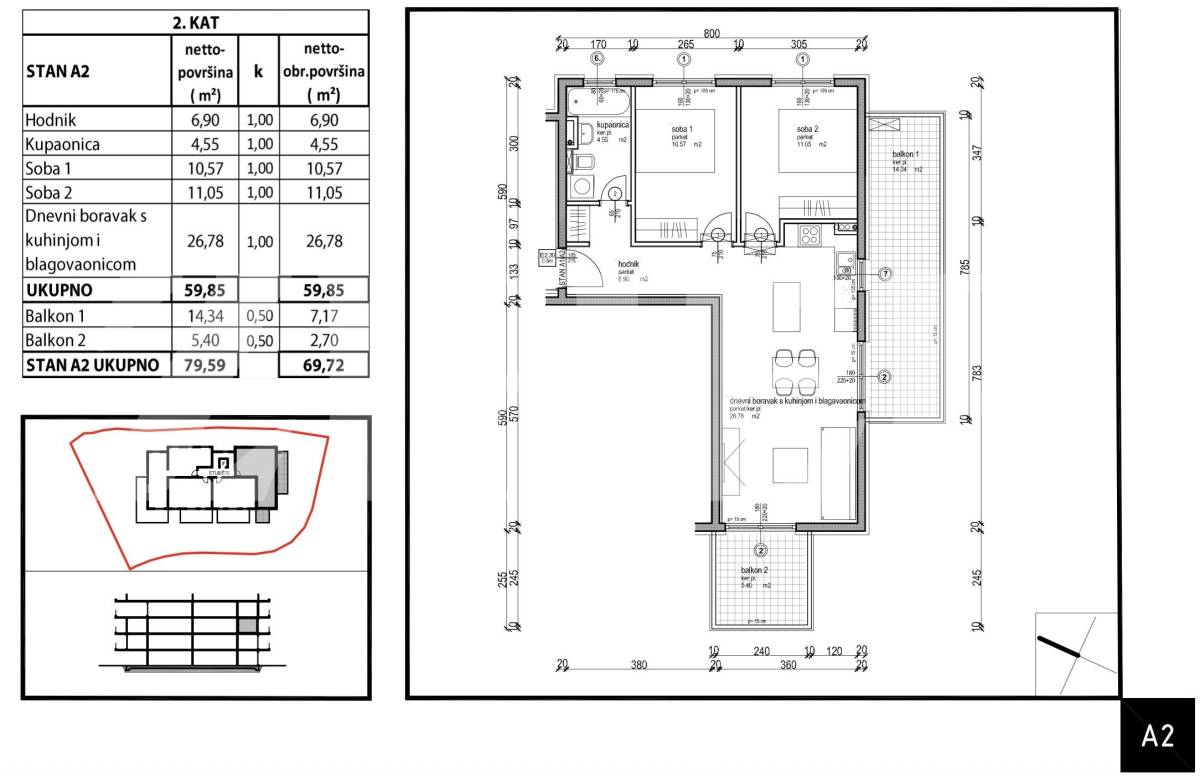
A2 - drugi kat - 260.000 eura
B3 - uvučeni kat - 490.000 eura
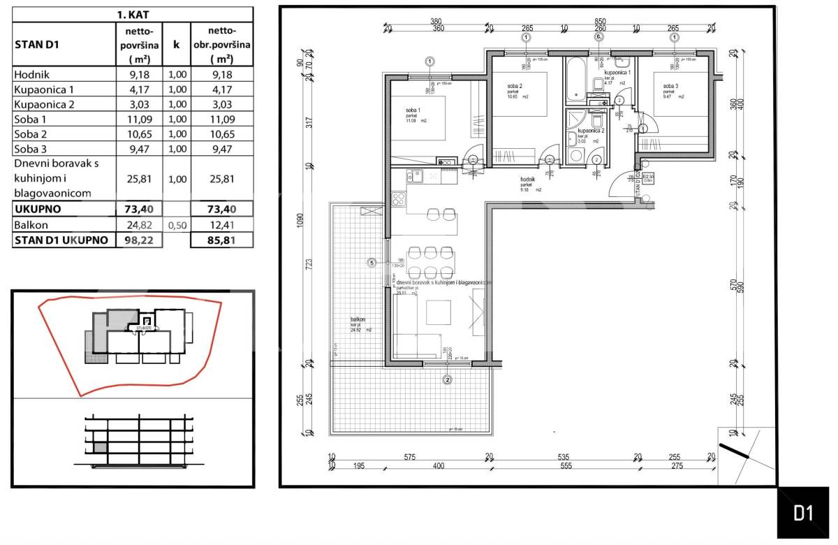
D1 - prvi kat - 320.000 eura
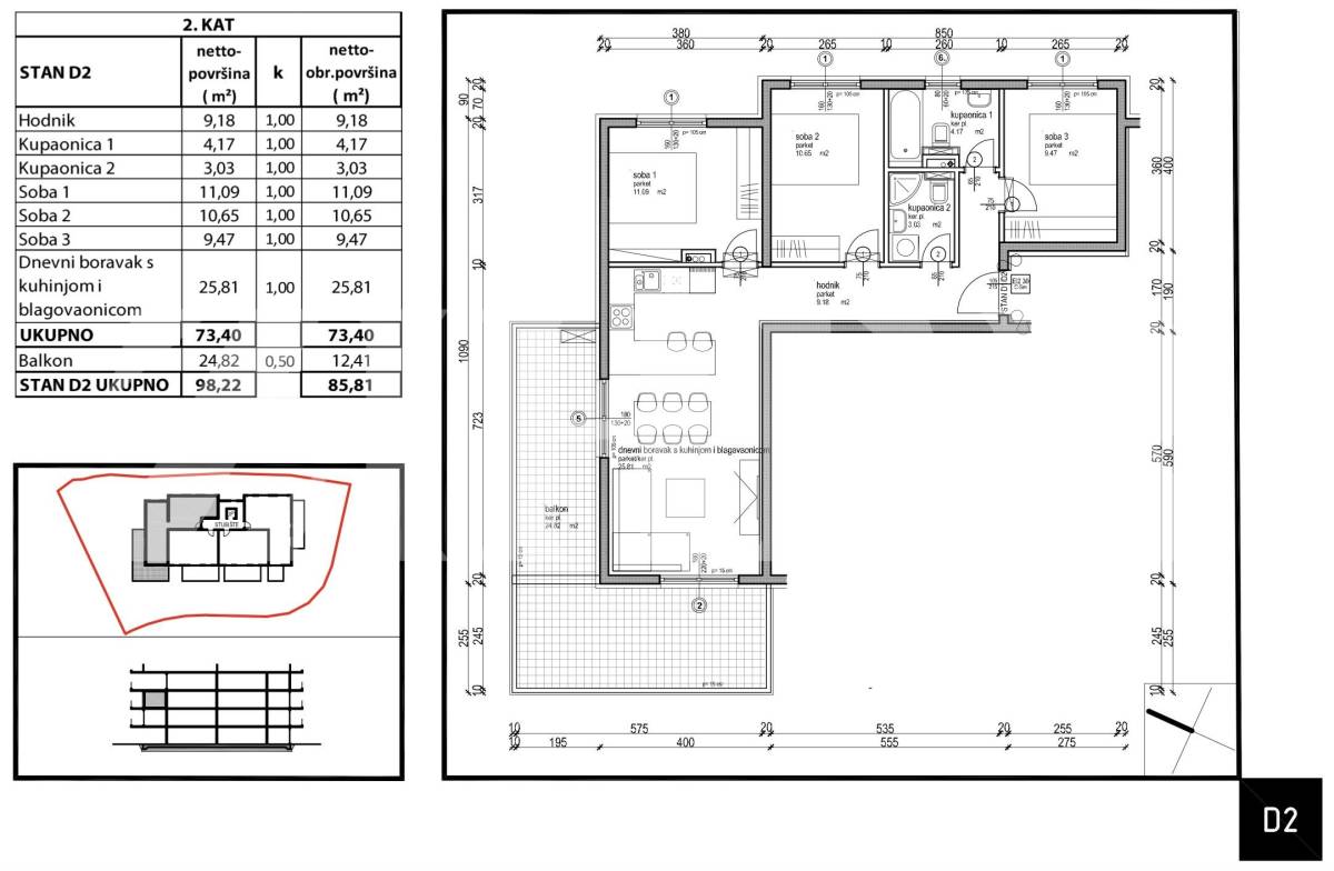
D2 - drugi kat - 320.000 eura
Za sve informacije nazovite 098359876
ZIHER
Agencija za posredovanje u prometu nekretninama

Lokacija

close
Napomena: Prikazana je približna lokacija

Kontakt podaci

Oglas objavljen 09.11.2025. 20:02
Do isteka još 2 godine i 8 mjeseci
Pregleda 6

Slični oglasi Pogledaj sve oglase

Navedite razlog prijave oglasa

Podijeli oglas

POREČ, TAR-VABRIGA, NOVOGRADNJA SA 13 STANOVA,  USELJENJE 12/2025

POREČ, TAR-VABRIGA, NOVOGRADNJA SA 13 STANOVA, USELJENJE 12/2025

ID oglasa: 97117

Cijena: 465.000,00 €

U usporedbi može biti maksimalno 4 oglasa. Uklonite 1 oglas kako bi dodali novi oglas u usporedbe

PROVJERI OGLASE