POREČ, TAR-VABRIGA, NOVOGRADNJA SA 13 STANOVA, USELJENJE 12/2025

Cijena: 320.000,00 €
ID oglasa: 97115

Osnovni podaci

Lokacija Istarska, Tar-Vabriga, Vabriga
Tip stana u stambenoj zgradi
Stambena površina 91 m²
Broj etaža 3
Broj soba 3
Kat 1. kat
Ukupni broj katova u zgradi 3

Opis

POREČ, TAR-VABRIGA, NOVOGRADNJA SA 13 STANOVA, USELJENJE 12/2025
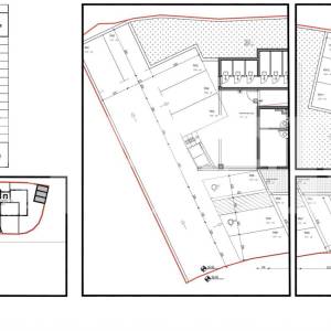
Prodaju se stanovi u novogradnji sa 13 stanova, koja je u završnoj fazi izgradnje, planirano useljenje je u 12/2025 g.
Stanovi su opremljeni električnim podnim grijanjem, sve prostorije imaju klima uređaj, vrhunska keramika i parketi, zgrada ima lift.
Svakom stanu pripada jedno parkirno mjesto i spremište, koji su uključeni u cijenu.
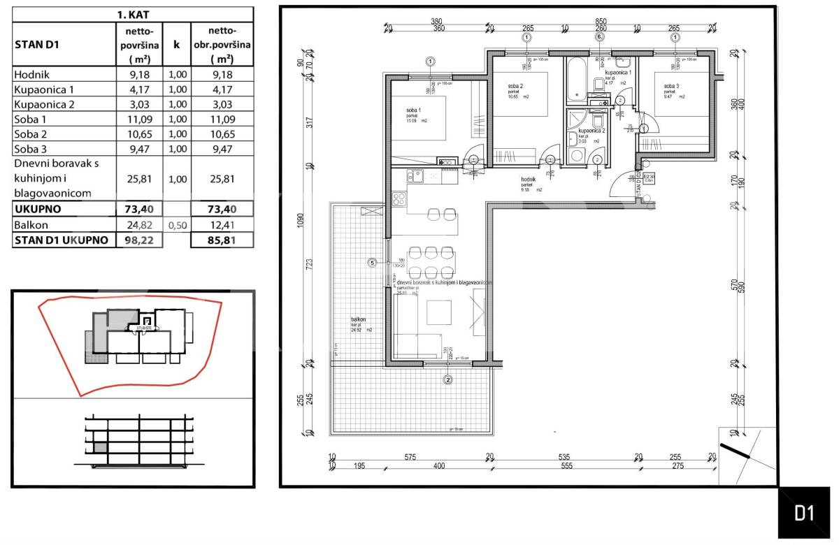
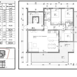
Stan D1, na prvom katu, sastoji se od ulaznog hodnika, dnevnog boravka s kuhinjom i blagavaonicom, tri spavaće sobe i dvije kupaonice, ukupne površine 73,40 m2. Stan ima balkon od 25 m2, cijena 320.000 eura
Ostali slobodni stanovi :
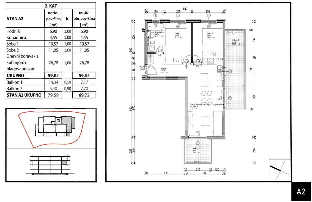
A2 - drugi kat - 260.000 eura
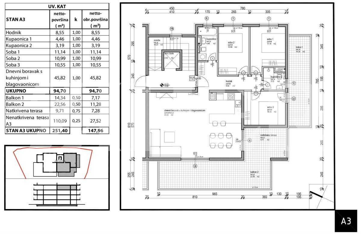
A3 - uvučeni kat - 465.000 eura
B3 - uvučeni kat - 490.000 eura
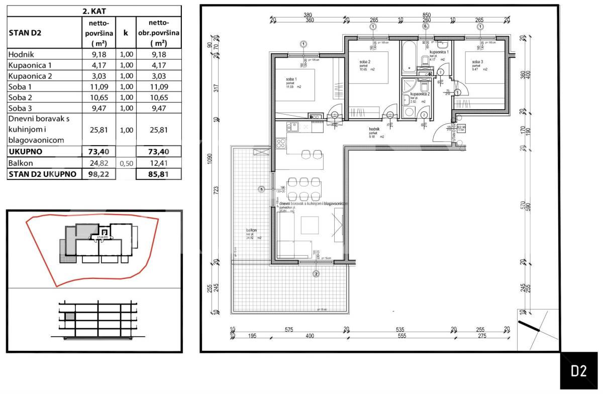
D2 - drugi kat - 320.000 eura
Za sve informacije nazovite 098359876
ZIHER
Agencija za posredovanje u prometu nekretninama

Lokacija

close
Napomena: Prikazana je približna lokacija

Kontakt podaci

Oglas objavljen 09.11.2025. 20:24
Do isteka još 2 godine i 8 mjeseci
Pregleda 7

Slični oglasi Pogledaj sve oglase

Navedite razlog prijave oglasa

Podijeli oglas

POREČ, TAR-VABRIGA, NOVOGRADNJA SA 13 STANOVA,  USELJENJE 12/2025

POREČ, TAR-VABRIGA, NOVOGRADNJA SA 13 STANOVA, USELJENJE 12/2025

ID oglasa: 97115

Cijena: 320.000,00 €

U usporedbi može biti maksimalno 4 oglasa. Uklonite 1 oglas kako bi dodali novi oglas u usporedbe

PROVJERI OGLASE