Penthouse 73m2 - K2S3, novogradnja u Sesvetama, Jelkovec - SAVSKA 79 R

Cijena: 212.400,00 €
ID oglasa: 116521

Osnovni podaci

Lokacija Zagreb, Sesvete, Novi Jelkovec
Tip stana u stambenoj zgradi
Stambena površina 73 m²
Broj etaža Dvoetažni
Broj soba 3-sobni
Kat 2. kat
Netto površina 73 m²
Godina izgradnje 2027
Broj kupaonica s WC-om 2
Broj WC-a 2
Ukupni broj katova u zgradi 2
Sustav grijanja Dizalica topline
Namještenost i stanje Djelomično namješten
Broj vlastitih parkirnih mjesta 1
Klima uređaj DA
Kupac ne plaća agencijsku proviziju DA
Mogućnost zamjene Nije moguća zamjena za drugu nekretninu

Opis

K2S3 – Penthouse s prostranom krovnom terasom | novogradnja Jelkovec, Sesvete

PRODAJA OD INVESTITORA BEZ PROVIZIJE!

U prodaji je penthouse stan K2S3 u projektu Savska 79 Residence, smješten na uvučenom katu moderne novogradnje u Jelkovcu, Sesvete.

Ovaj stan posebno se ističe kombinacijom privatnosti, svjetla i vanjskog prostora, što ga čini odličnim izborom za kupce koji traže više od standardnog stana u novogradnji. Zahvaljujući položaju na vrhu zgrade i orijentaciji sjever – jug – istok, stan je ugodno osvijetljen tijekom cijelog dana, a prostrana krovna terasa dodatno naglašava osjećaj otvorenosti i komfora.

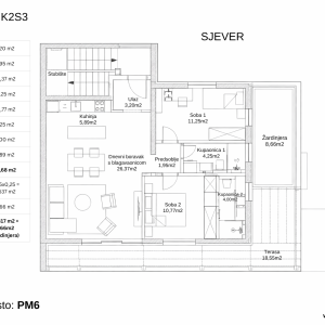
Stan ima 73 m² i odlično je organiziran za svakodnevni život, odmor i obiteljsko stanovanje.

Stan se sastoji od:

dnevnog boravka s kuhinjom i blagovaonicom
dvije spavaće sobe
dvije kupaonice s WC-om
predsoblja
hodnika
prostrane krovne terase s žardinjerom od 27,21 m²

Uz stan dolazi i vanjsko parkirno mjesto s pripremom za EV punjač.

Oprema i kvaliteta gradnje:

podno grijanje na dizalicu topline
Bosch klima uređaji u svakoj sobi
električne rolete
PVC troslojna stolarija
visina stropa 2.60 m
mogućnost odabira keramike

Lokacija:

Savska 79 Residence nalazi se u Jelkovcu, Sesvete, u istočnom dijelu Zagreba, na lokaciji koja kupcima nudi vrlo dobar omjer mirnog stambenog okruženja, prometne povezanosti i dostupnosti svih važnih sadržaja.

U blizini se nalaze:
osnovna i srednja škola
dječji vrtić
Dom zdravlja
ljekarne
Bazeni Novi Jelkovec
dječja igrališta
Park & Shop
City Center One East
i ostali sadržaji

Prijevoz i povezanost:

ZET linija 284 – ispred same zgrade
ZET linija 282 – Sesvete
ZET linija 281 – Glavni kolodvor
ZET linija 279 – Dubec
željeznička postaja Sesvete u blizini
željeznička postaja Selnica-Sela u izgradnji

Ovakav penthouse stan rijetko se pojavljuje na tržištu jer spaja ono što je kupcima najvažnije: moderan raspored, vanjski prostor, više privatnosti i kvalitetnu novogradnju.

Planirano useljenje: travanj 2027.

Za više informacija, tlocrt i detalje o stanu, javite se porukom ili telefonom
ili posjetite web stranicu:

ivanfilipovic.from.hr

Filipović Projekt
[email protected]

Lokacija

close
Napomena: Prikazana je približna lokacija
Daleko si od lokacije?

Bez brige, oglašivač nudi video razgledavanje putem video poziva

Dodatni podaci

Podaci o objektu

  • Novogradnja
  • Pristup za osobe s invaliditetom
  • Gradski plin
  • Gradski vodovod
  • Gradska kanalizacija

Balkon/Lođa/Terasa

  • Terasa

Alternativni izvori energije

  • Toplinske pumpe

Funkcionalnosti i karakteristike

  • Protuprovalna vrata
  • Alarmni sustav
  • Video Portafon
  • Tuš kabina
  • Podno grijanje
  • Električne rolete

Ostali objekti i površine

  • Dvorište/vrt

Vrsta parkinga

  • Vanjsko natkriveno mjesto
  • Vanjsko ne-natkriveno mjesto

Orijentacija stana

  • Sjever
  • Jug
  • Istok

Dozvole i potvrde

  • Vlasnički list
  • Građevinska dozvola
  • Uporabna dozvola

Kontakt podaci

Oglas objavljen 27.03.2026. 18:52
Do isteka još 2 godine i 8 mjeseci
Pregleda 18

Slični oglasi Pogledaj sve oglase

Navedite razlog prijave oglasa

Podijeli oglas

Penthouse 73m2 - K2S3, novogradnja u Sesvetama, Jelkovec - SAVSKA 79 R

Penthouse 73m2 - K2S3, novogradnja u Sesvetama, Jelkovec - SAVSKA 79 R

ID oglasa: 116521

Cijena: 212.400,00 €

U usporedbi može biti maksimalno 4 oglasa. Uklonite 1 oglas kako bi dodali novi oglas u usporedbe

PROVJERI OGLASE