OTOK KRK, MALINSKA (okolica) - Građevinsko zemljište 511 m2 s projektom

Cijena: 199.000,00 €
ID oglasa: 85877

Osnovni podaci

Lokacija Primorsko-goranska, Malinska-Dubašnica, Malinska
Tip zemljišta Građevinsko
Površina 511 m²

Opis

OTOK KRK, MALINSKA (okolica) - Građevinsko zemljište 511 m2 s projektom

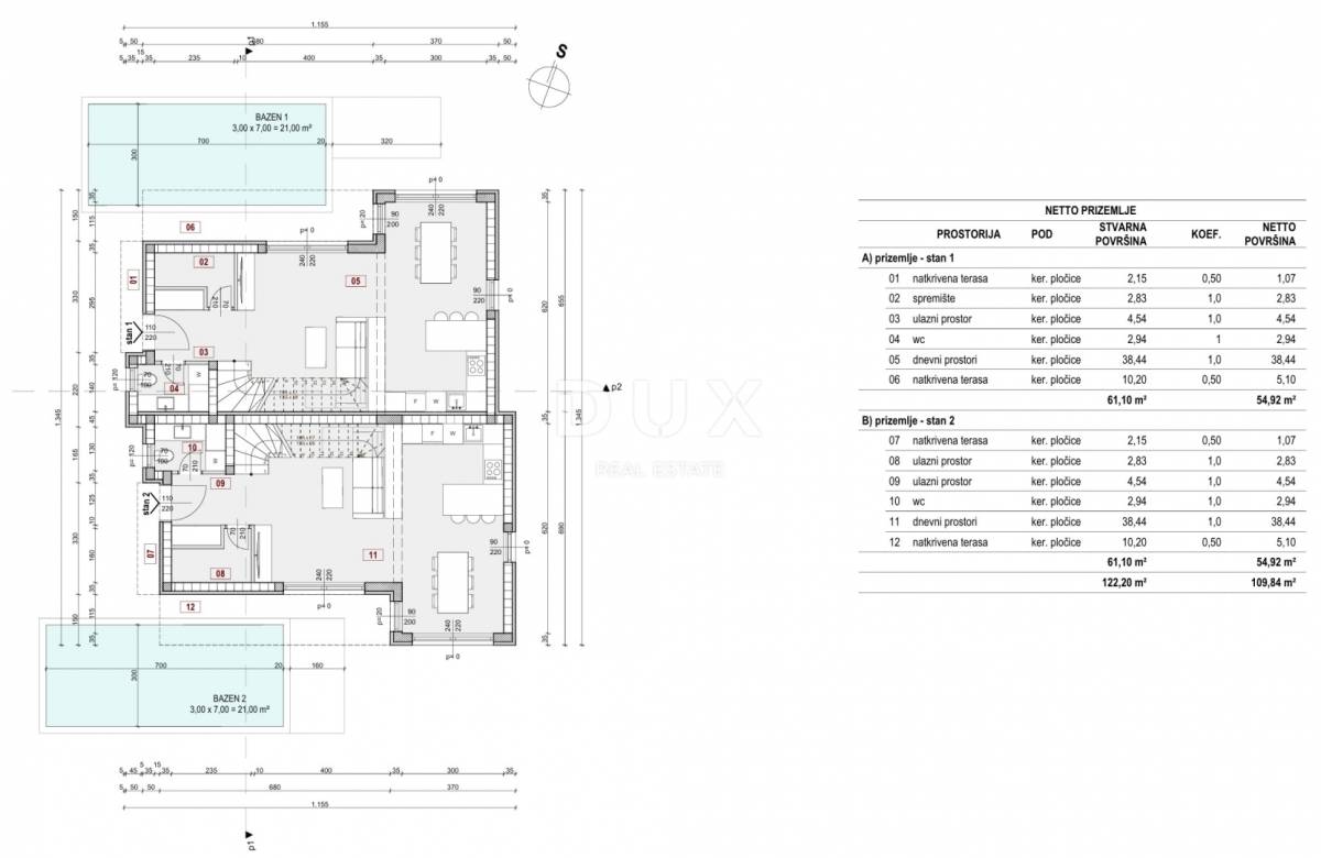
Predstavljamo građevinsko zemljište površine 511 m2, smješteno u mirnoj zoni u okolici Malinske, na udaljenosti od samo 1,5 km zračne linije od mora. Lokacija je okružena novogradnjama i predstavlja idealnu priliku za investitore ili kupce koji traže spremno rješenje za gradnju modernih obiteljskih objekata.

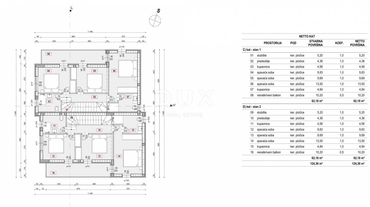
Za parcelu je postojeći projekt za dvojnu kuću, pri čemu svaka jedinica ima oko 112 m2, vlastiti bazen i po dva parkirna mjesta.
Građevinska dozvola je u fazi izdavanja, što omogućuje budućem vlasniku da po njenom ishođenju odmah započne gradnju bez dodatnih pripremnih koraka.

Infrastruktura i pristup:
Priključak struje, vode i interneta nalaze se na udaljenosti od 20 metara od parcele, odvodna infrastruktura planirana je za 2026. godinu.
Pristup je omogućen s asfaltirane prometnice.

Karakteristike zemljišta:
Pravokutnog oblika, ravne konfiguracije - idealan za građenje. Pripremni radovi su već odrađeni - zemljište je ograđeno betonskim zidovima i poravnato na konačnu građevnu visinu. Teren nema pogled na more, no nudi pogodnu mikrolokaciju i orijentaciju.
Vlasništvo je 1/1, dokumentacija uredna, bez tereta.

Zašto je ovo odlična prilika?
Ova građevinska parcela na Krku nudi odličan omjer vrijednosti i investicijskog potencijala. Gotov projekt, mirna lokacija u okruženju novogradnji, blizina mora i centra te mogućnost brzog početka gradnje čine ovu parcelu odličnim izborom za investitore, kao i privatne kupce koji žele modernu kuću s bazenom na atraktivnoj poziciji na Krku.

***
Zainteresirani ste i trebate detaljnije informacije za donošenje odluke?
Termin za prezentaciju i razgled možemo dogovoriti telefonski ili putem elektroničke pošte.

***
Poštovani klijenti, agencijska provizija naplaćuje se u skladu s Općim uvjetima poslovanja:
http://www.dux-nekretnine.hr/opci-uvjeti-poslovanja

ID KOD AGENCIJE: 43447

Iva Mršić
Agent s licencom
Mob: +385 91 575 9388
Tel: +385 91 480 8808
E-mail: [email protected]
www.dux-krk.com

Lokacija

close
Napomena: prikazana je točna lokacija

Dodatni podaci

Komunalije

  • Gradski vodovod
Oglas objavljen 16.11.2025. 00:00
Do isteka još 2 godine i 7 mjeseci
Pregleda 44

Slični oglasi Pogledaj sve oglase

Navedite razlog prijave oglasa

Podijeli oglas

OTOK KRK, MALINSKA (okolica) - Građevinsko zemljište 511 m2 s projektom

OTOK KRK, MALINSKA (okolica) - Građevinsko zemljište 511 m2 s projektom

ID oglasa: 85877

Cijena: 199.000,00 €

U usporedbi može biti maksimalno 4 oglasa. Uklonite 1 oglas kako bi dodali novi oglas u usporedbe

PROVJERI OGLASE