OTOK CRES, GRAD CRES - vrhunska novogradnja na top lokaciji strogi centar 50m od mora

Cijena: 430.000,00 €
ID oglasa: 101062

Osnovni podaci

Lokacija Primorsko-goranska, Cres, Cres
Tip stana u stambenoj zgradi
Stambena površina 93,14 m²
Broj etaža 3
Broj soba Garsonijera
Kat 1. kat
Netto površina 93,14 m²
Godina izgradnje 2026
Ukupni broj katova u zgradi 3
Energetski razred A+
Broj vlastitih parkirnih mjesta 1
Klima uređaj DA

Opis

OTOK CRES, GRAD CRES - 2s+db stan u vrhunskoj novogradnji na top lokaciji, strogi centar 50 metara od mora.

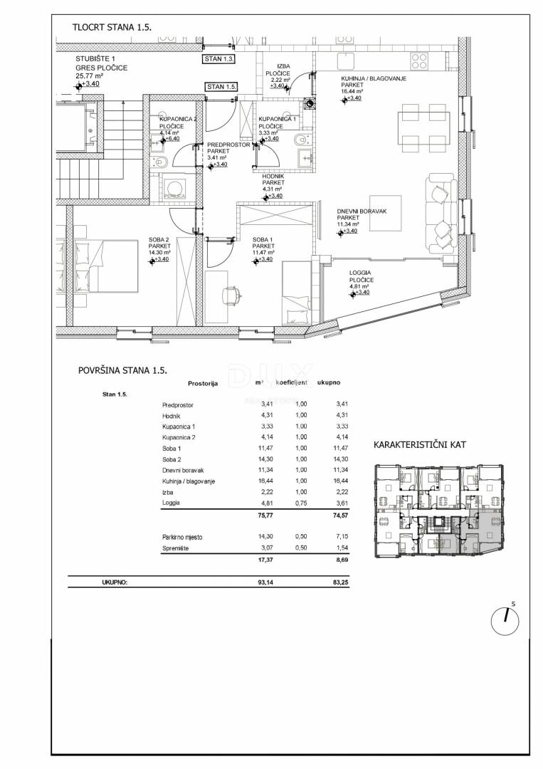
Prodajemo dvosobni stan s dnevnim boravkom oznake 1.5 na prvom katu vrhunske stambene novogradnje na fenomenalnoj i nepononovljivoj lokaciji. Stan se sastoji od ulaznog hodnika, ostave, gostinjskog toaleta, kupatila, open space concepta dnevnog djela s kuhinjom i blagovaonicom s izlazom na loggiu i dvije spavaće sobe, ukupne netto stambene površine od 75,77m2. Stanu u vlasništvu pripada jedno garažno parkirno mjesto veličine 14,30m2 kao i spremište u garaži svojih 3,07m2.

Ova predivna stambeno poslovna zgrada s liftom i podzemnom garažom u prvoj je fazi izgradnje koncipirana je za 14 stambenih jedinica kroz jednosobne i dvosobne stanove.

Stanovi će se prodavati u fazi ključ u ruke, sama oprema stanova biti će na visokoj razini uključujući podna grijanje, inverter klima uređaje, prvoklasne podne obloge i parketi, walk in kupaone i sanitarije visoke klase renomiranih proizvođača.

Rijetkost u ponudi, neponovljiva lokacija.

Poštovani klijenti, agencijska provizija naplaćuje se u skladu s Općim uvjetima poslovanja
www.dux-nekretnine.hr/opci-uvjeti-poslovanja

ID KOD AGENCIJE: 44371

Darko Miculinić
Vanjski suradnik
Mob: +385 91 899 5705
Tel: +385 91 480 8808
E-mail: [email protected]
www.dux-nekretnine.hr

Lokacija

close
Napomena: prikazana je točna lokacija

Dodatni podaci

Podaci o objektu

  • Gradski vodovod
  • Gradska kanalizacija

Funkcionalnosti i karakteristike

  • Video Portafon

Dozvole i potvrde

  • Građevinska dozvola
Oglas objavljen 05.01.2026. 00:00
Do isteka još 2 godine i 8 mjeseci
Pregleda 12

Slični oglasi Pogledaj sve oglase

Navedite razlog prijave oglasa

Podijeli oglas

OTOK CRES, GRAD CRES - vrhunska novogradnja na top lokaciji strogi centar 50m od mora

OTOK CRES, GRAD CRES - vrhunska novogradnja na top lokaciji strogi centar 50m od mora

ID oglasa: 101062

Cijena: 430.000,00 €

U usporedbi može biti maksimalno 4 oglasa. Uklonite 1 oglas kako bi dodali novi oglas u usporedbe

PROVJERI OGLASE