OPATIJA, IKA - Dvoetažni stan u luksuznoj novogradnji blizu mora

Cijena: 450.000,00 €
ID oglasa: 63476

Osnovni podaci

Lokacija Primorsko-goranska, Opatija - Okolica, Ika
Tip stana u stambenoj zgradi
Stambena površina 131,52 m²
Broj etaža 2
Broj soba Garsonijera
Kat Prizemlje
Netto površina 131,52 m²
Godina izgradnje 2025
Ukupni broj katova u zgradi 2
Energetski razred A
Klima uređaj DA

Opis

OPATIJA, IKA -Dvoetažni stan u luksuznoj novogradnji s pogledom na more – moderna udobnost i privatna terasa

U mirnom, zelenilom okruženom dijelu iznad Ike, svega mekoliko minuta hoda do mora, u tijeku je izgradnja moderne stambene zgrade s ukupno tri ekskluzivne stambene jedinice. Zgrada je pažljivo projektirana kako bi svakom stanu pružila maksimalnu privatnost, otvoren pogled na more te funkcionalan raspored koji odgovara suvremenom načinu života.

U ponudi je prostrani dvoetažni stan koji se proteže kroz prizemlje i prvi kat, uključujući vanjske površine i dva privatna parkirna mjesta.

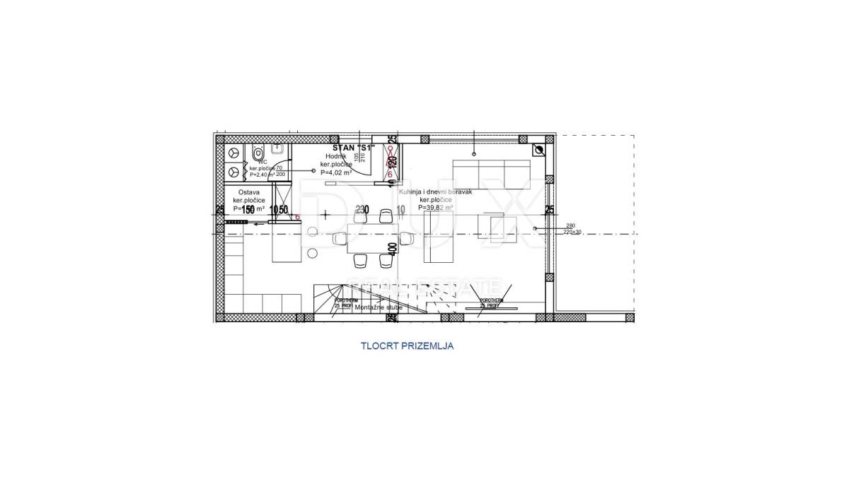
Raspored prostora:

Prizemlje: prostrana terasa, djelomično natkrivena, dnevni boravak s kuhinjom i blagovaonicom, hodnik, toalet i ostava

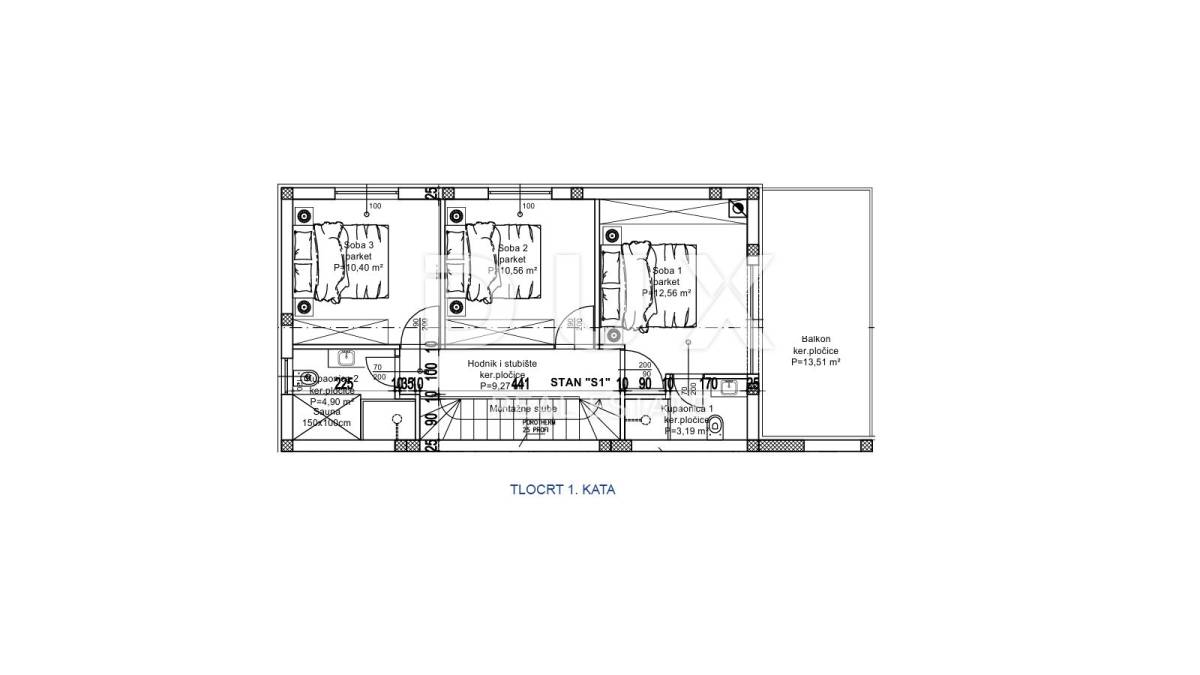
Kat: tri spavaće sobe, dvije kupaonice, hodnik i natkriveni balkon (13,51 m²) s pogledom na more

Na katu je predviđen i prostor za privatnu saunu, čime se dodatno podiže razina komfora.

Velike terase na obje etaže dodatno proširuju dnevni prostor, a posebno je zanimljiva mogućnost ugradnje ljetne kuhinje i nadzemnog bazena, za što su već pripremljene sve instalacije – savršeno za one koji žele stvoriti svoju privatnu vanjsku oazu za opuštanje i druženje.

Tehnička oprema i mogućnosti prilagodbe:
Podno grijanje u cijelom stanu (osim spavaćih soba gdje je predviđen parket)

Dizalica topline i fan-coil sustav za grijanje i hlađenje

Multisplit klima uređaji u svim sobama

Kupcima u ranoj fazi gradnje omogućuje se izbor završnih materijala (keramika, parket, sanitarije) u okviru definiranog budžeta, uz mogućnost nadoplate za više klase.

Završetak radova planiran je za lipanj 2026. godine

Dodatne prednosti:
Dva privatna parkirna mjesta ispred zgrade uključena u cijenu

Izvrsna prometna povezanost: ACI marina Ičići i plaže nalaze se svega nekoliko minuta vožnje, a do centra Opatije stiže se za 10-ak minuta

Moderna novogradnja vrhunske kvalitete u mirnom okruženju s panoramskim pogledom na more – rijetkost na ovom dijelu tržišta

Ova nekretnina predstavlja savršen spoj obiteljskog doma za cjelogodišnje stanovanje, vile za odmor ili investicije u turistički najam u jednom od najtraženijih dijelova Opatijske rivijere.

Za sve dodatne informacije, tlocrte i mogućnost razgledavanja – kontaktirajte nas s povjerenjem.
Agencijska provizija se obračunava prema Općim uvjetima poslovanja:
http://www.dux-nekretnine.hr/opci-uvjeti-poslovanja

ID KOD AGENCIJE: 42591

Mladen Tićak
Agent s licencom
Mob: +385 97 775 2147
Tel: +385 99 640 8438
E-mail: [email protected]
www.dux-istra.com

Marco Matešković
Agent s licencom
Mob: +385 98 13 77 003
Tel: +385 91 480 8808
E-mail: [email protected]
www.dux-nekretnine.hr

Lokacija

close
Napomena: prikazana je točna lokacija

Dodatni podaci

Podaci o objektu

  • Gradski vodovod
  • Gradska kanalizacija

Balkon/Lođa/Terasa

  • Terasa

Funkcionalnosti i karakteristike

  • Video Portafon

Dozvole i potvrde

  • Građevinska dozvola
Oglas objavljen 13.10.2025. 00:00
Do isteka još 2 godine i 8 mjeseci
Pregleda 18

Slični oglasi Pogledaj sve oglase

Navedite razlog prijave oglasa

Podijeli oglas

OPATIJA, IKA - Dvoetažni stan u luksuznoj novogradnji blizu mora

OPATIJA, IKA - Dvoetažni stan u luksuznoj novogradnji blizu mora

ID oglasa: 63476

Cijena: 450.000,00 €

U usporedbi može biti maksimalno 4 oglasa. Uklonite 1 oglas kako bi dodali novi oglas u usporedbe

PROVJERI OGLASE