Novogradnja, Ribnjak, peterosoban stan, loggia, GPM

Cijena: 1.427.371,20 €
ID oglasa: 54744

Osnovni podaci

Lokacija Zagreb
Tip stana u stambenoj zgradi
Stambena površina 142,88 m²
Broj etaža Jednoetažni
Broj soba 5
Kat 3. kat
Sustav grijanja Sustav grijanja, klimatizacije i ventilacije
Energetski razred A

Opis

Ribnjak (S10)
Luksuzan peterosoban stan površine 142,88 m2 na 3.katu novogradnje.
Zgrada ima lift.
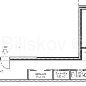
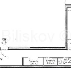
Stan se sastoji od velikog dnevnog boravka integriranog s kuhinjom i blagovaonicom, te izlazom na loggiu, tri manje spavaće sobe, roditeljske spavaće sobe sa kupaonicom i garderobom, dodatne dvije kupaonice, spremišta, garderobe, gospodarstva i halla.
Uz stan je obavezna kupnja garaže ili garažnog parkirnog mjesta.
Zgrada je smještena na fantastičnoj lokaciji u samom centru grada, svega par minuta hoda od glavnog Zagrebačkog trga, u oazi zelenila i pogledom na Katedralu.
Svi stanovi su pažljivo projektirani i zadovoljavaju i najmanje želje svakog kupca – moderni, funkcionalni, intimni. U sve stanove je ugrađena vrhunska oprema.
Orijentacija: Jugozapad – Sjeveroistok
EC: “A”
Cijena: 1.427.371,2 €  (9.990 €/m2)
Agencijska provizija za kupca: 2%+PDV 
www.biliskov.com  ID- 12039
 
  

Lokacija

close
Napomena: prikazana je točna lokacija

Dodatni podaci

Podaci o objektu

  • Lift

Funkcionalnosti i karakteristike

  • Alarmni sustav
  • Podno grijanje
  • Protuprovalna vrata
Oglas objavljen 29.03.2022. 15:55
Do isteka još 2 godine i 8 mjeseci
Pregleda 81

Slični oglasi Pogledaj sve oglase

Navedite razlog prijave oglasa

Podijeli oglas

Novogradnja, Ribnjak, peterosoban stan, loggia, GPM

Novogradnja, Ribnjak, peterosoban stan, loggia, GPM

ID oglasa: 54744

Cijena: 1.427.371,20 €

U usporedbi može biti maksimalno 4 oglasa. Uklonite 1 oglas kako bi dodali novi oglas u usporedbe

PROVJERI OGLASE