Novalja, Samorašnji put, EKSKLUZIVNO, A1, vrhunska gradnja

Cijena: 356.400,00 €
ID oglasa: 87301

Osnovni podaci

Lokacija Ličko-senjska, Novalja, Novalja
Tip nekretnine Vikendica
Površina objekta 89,10 m²

Opis

EKSKLUZIVNO! PAG, NOVALJA, NOVOGRADNJA, TOP LOKACIJA, SAMORAŠNJI PUT, 100 m do mora!

U izgradnji je moderna zgrada na izuzetnoj lokaciji u Novalji s panoramskim pogledom na more, koja se sastoji od 6 modernih i suvremeno projektiranih stambenih jedinica s pripadajućim parkirališnim mjestima.

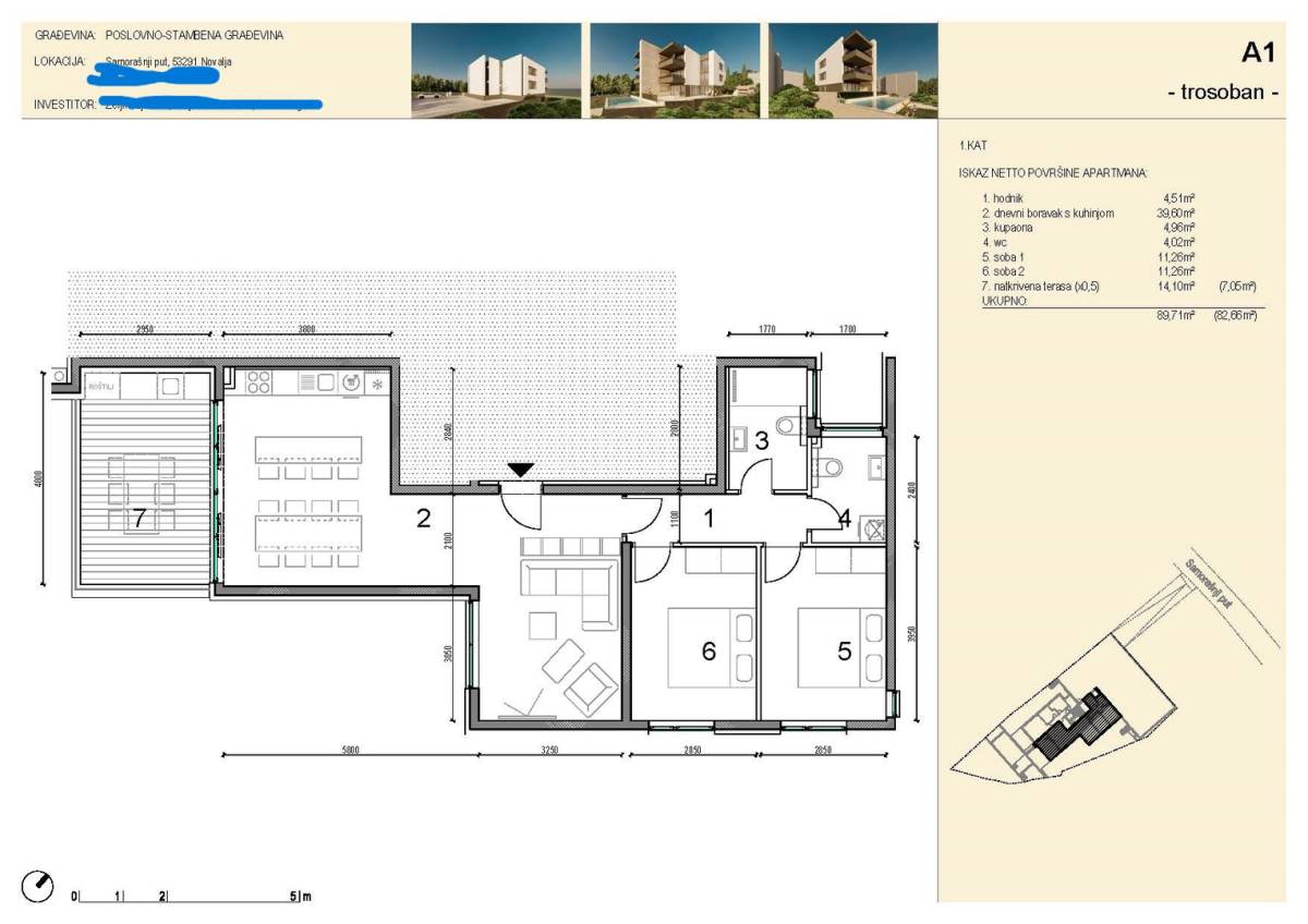
U ponudi je trosoban apartman oznake A1 na 1. katu, koji se sastoji od:

1. hodnik 4,51m2
2. dnevni boravak s kuhinjom 39,60m2
3. kupaona 4,96m2
4. wc 4,02m2
5. soba 1 11,26m2
6. soba 2 11,26m2
7. natkrivena terasa (x0,5) 14,10m2 (7,05m2)
UKUPNO: 89,71m2 (82,66m2)

U izgradnji i opremanju koriste se isključivo najkvalitetniji materijali i oprema od renomiranih proizvođača.

Uz navedeni apartman dolaze dva vanjska parkirna mjesta površine 12,50 m2 (obračunato po koef. x 0,25=3,13 m2) i površine 13,25 m2 (obračunato po koef. x 0,25=3,31 m2).

Predviđeni energetski certifikat zgrade: A+

Rok izgradnje: proljeće 2027.

Zbog atraktivnosti same lokacije u Novalji, kao i kvalitetne gradnje koja se odlikuje samo vrhunskim materijalima i opremom, ova investicija je sigurno ulaganje u budućnost.

Kupac ne plaća agencijsku proviziju.

Za sve dodatne informacije, kao i za detalje oko izgradnje i samog projekta, slobodno kontaktirajte našeg agenta Igora na 095/581-4355.

Lokacija

close
Napomena: prikazana je točna lokacija
Oglas objavljen 20.11.2025. 00:07
Do isteka još 2 godine i 8 mjeseci
Pregleda 114

Slični oglasi Pogledaj sve oglase

Navedite razlog prijave oglasa

Podijeli oglas

Novalja, Samorašnji put, EKSKLUZIVNO, A1, vrhunska gradnja

Novalja, Samorašnji put, EKSKLUZIVNO, A1, vrhunska gradnja

ID oglasa: 87301

Cijena: 356.400,00 €

U usporedbi može biti maksimalno 4 oglasa. Uklonite 1 oglas kako bi dodali novi oglas u usporedbe

PROVJERI OGLASE