Marina, prvi red, zemljište s ishodovanom dozvolom, prodaja

Cijena: 830.000,00 €
ID oglasa: 54381

Osnovni podaci

Lokacija Splitsko-dalmatinska, Marina, Vinišće
Tip zemljišta Građevinsko
Površina 600 m²

Opis

Zemljište površine 600 m2, s ishodovanom građevinskom dozvolom, općina Marina, Vinišće, prvi red do mora.
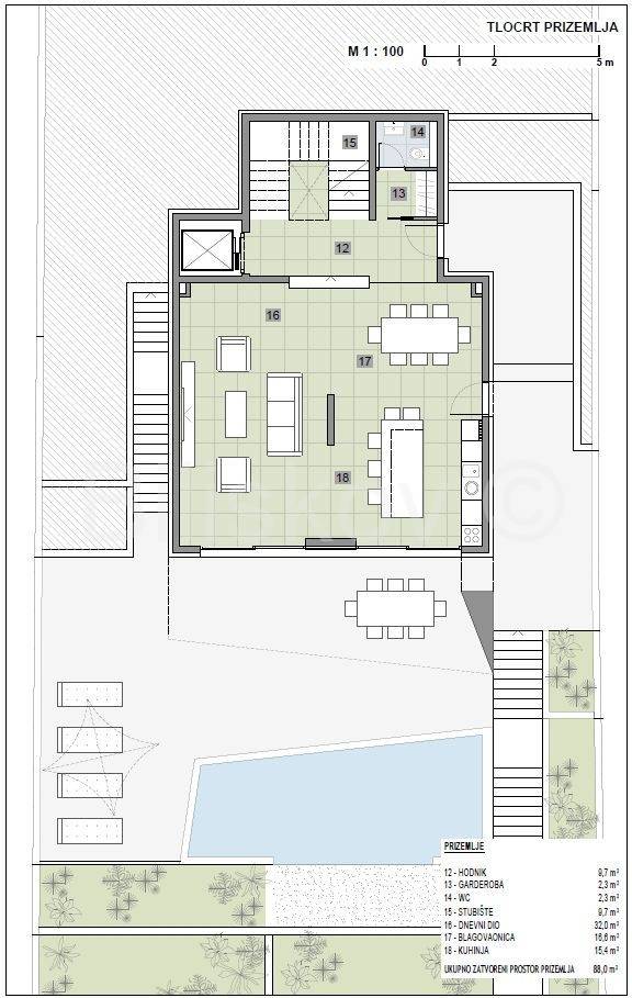
Građevna čestica se nalazi u izgrađenom građevinskom području, mješovita namjena (pretežno stambena). Namjena buduće građevine je obiteljska stambena kuća, katnosti E=P+2.Osim građevine osnovne namjene na čestici su i dvije pomoćne građevine:- garaža- vanjski otvoreni bazen s ukopanim pripadajućim tehničkim prostorima – strojarnica,kompenzacijski i neutralizacijski bazenPomoćne građevine su konstrukcijski dilatirane kako međusobno tako i od građevine osnovne namjene.Svaka građevina je samostojeća.Prizemna etaža stambene kuće se sastoji od ulaznog prostora s pripadajućom garderobom i WC-om, vertikalnih komunikacija, te dnevnog boravka, kuhinje i blagovaonice. Iz svih dnevnih prostora omogućen je kontakt s vanjskim prostorom preko ostakljenih stijena. Na otvorenom prostoru prizemne etaže, planiran je vanjski, otvoreni bazen poligonalnog tlocrta, maksimalnih dimenzija 840 x 370 cm.Komunikacija s gornjim katovima ostvarena je unutarnjim stubištem i dizalom.Na 1. katu kuće nalaze se gospodarska prostorija, te dvije spavaće sobe s pripadajućim sanitarijama i garderobnim ormarima, obje imaju pristup jugozapadnom balkonu.Na 2. katu kuće nalaze se terasa na sjeveroistoku, te dvije spavaće sobe s pripadajućim sanitarijama i garderobnim ormarima, obje imaju pristup jugozapadnom balkonu.
Krov zgrade se koristi isključivo u svrhu servisa tehničke opreme i/ili popravka slojeva krova, gromobranske instalacije i sl.
Građevna čestica je pravilnog, pravokutnog oblika s površinom od 605 m2, omeđena s jugozapadne strane prometnicom, te s dvije izgrađene građevinske čestice (jugoistočna i sjeverozapadna strana). Teren pada od sjeveroistoka u smjeru jugozapada nagibom od 35 %. Visinska razlika sjeveroistočne i jugozapadne granice parcele je veća od 13 metara.
Kolni pristup i glavni pješački ulaz na česticu su predviđeni s jugozapada. Visinska razlika na terenu je savladana vanjskim stubištem uz građevinu.Stambena kuća po projektu (građevina osnovne namjene) postavljena je u smjeru sjeveroistok-jugozapad.Građevina ima 3 etaže (P+2) i najveću visinu od gotovog uređenog terena uz zgradu do vijenca (gornja kota nosive konstrukcije zadnjeg kata) od 9,5 m. Pomoćne građevine i zelene terase kaskadno prate prirodni teren. Maksimalna visina građevine osnovne namjene je 9,5 m (dopušteno max. 9,5 m). Svijetla visina prizemlja stambene građevine je 2,69 m na najvišem i 2,34 m na najnižem dijelu. Svijetla visina 1. i 2. kata je 2,60 m.Svijetla visina u garaži je 2,40 m. Završna se etaža oblikuje ravnim neprohodnim krovom.
Minimalne udaljenosti projektiranih građevina od granice čestice su:GRAĐEVINA OSNOVNE NAMJENE- 4,86 m od granice sa sjeverne strane- 3,73 m od granice sa zapadne strane- 3,01 m od granice s istočne stranePOMOĆNA GRAĐEVINA – GARAŽA- 5,30 m od granice s jugozapadne strane- 1,44 m od granice sa sjeverozapadne stranePOMOĆNA GRAĐEVINA – BAZEN S PRIPADAJUĆIM POMOĆNIM PROSTORIMA- 4,19 m od granice sa zapadne strane- 3,08 m od granice s istočne strane
Visina ulične ograde može biti najviše 1,5 m i to, donji dio visine 1,0 m od punog materijala, te ostali gornji dio transparentan ili u obliku zelene živice. Iznimno, visina ulične ograde može biti i viša kada je to nužno radi zaštite građevine, načina njenog korištenja ili je u skladu sa susjednim česticama odnosno tradicijskim načinom gradnje.Visina ograde između susjednih čestica može biti najviše 2,0 m mjereno od kote konačno uređenog terena.Maksimalna visina potpornog zida smije iznositi maksimalno 3,0 m. Na terenima koji su strmiji od 20 % visina potpornih zidova može iznositi i do 4,0 m. Ako se prirodni teren oblikuje u formi kaskada visina pojedine kaskade ne smije prijeći 3,5 m, a njihova min. udaljenost treba iznositi 2,0 m.Okoliš građevine je uređen tako da je predviđena maksimalno moguća zelena površina oko građevine te da je ista ozelenjena autohtonim domaćim raslinjem i stablima. U izgradnji građevine i okoliša (potporni zidovi, terase i sl.) predviđeno je koristiti prirodne materijale.Projektom je na čestici predviđeno 191,2 m2 zelene površine, odnosno 32 % površine građevne čestice. Predviđeno je da se parkirališna površina ispred garaže poploča betonskim šupljim kockama.
www.biliskov.com   ID: 13797 

Lokacija

close
Napomena: prikazana je točna lokacija
Oglas objavljen 04.12.2023. 14:17
Do isteka još 2 godine i 8 mjeseci
Pregleda 208

Slični oglasi Pogledaj sve oglase

Navedite razlog prijave oglasa

Podijeli oglas

Marina, prvi red, zemljište s ishodovanom dozvolom, prodaja

Marina, prvi red, zemljište s ishodovanom dozvolom, prodaja

ID oglasa: 54381

Cijena: 830.000,00 €

U usporedbi može biti maksimalno 4 oglasa. Uklonite 1 oglas kako bi dodali novi oglas u usporedbe

PROVJERI OGLASE