Luksuzni Penthouse na 70 m od mora – S3C – Okrug Donji, Čiovo

Cijena: 580.000,00 €
ID oglasa: 73061

Osnovni podaci

Lokacija Splitsko-dalmatinska, Okrug, Okrug Donji
Tip stana u stambenoj zgradi
Stambena površina 105,45 m²
Broj etaža Jednoetažni
Broj soba Garsonijera
Kat 2. kat
Godina izgradnje 2026
Ukupni broj katova u zgradi 2

Opis

Luksuzni Penthouse na 70 m od mora – S3C – Okrug Donji, Čiovo
Luksuzni Penthouse na 70 m od mora – S3C – Okrug Donji, Čiovo

Ovaj projekt moderne i suvremene arhitekture je mjesto gdje se plavetnilo mora susreće s vrhunskim dizajnom i mediteranskim načinom života. Samo 70 metara od kristalno čistog mora, nudi savršen spoj elegancije, udobnosti i privatnosti.

Okrug Donji nudi mir, more i autentičan mediteranski ugođaj, uz brzu i odličnu povezanost s Trogirom, Zračnom lukom Split i gradom Splitom – idealan izbor za one koji žele luksuz blizu mora, ali daleko od gužve. Poznat je po netaknutoj prirodi, čistom moru i šetnicama uz obalu, a zbog odlične povezanosti s Trogirom i Splitom postaje sve traženija lokacija za stanovanje i odmor.

U tek započetoj gradnji, svaki detalj je pažljivo osmišljen kako bi osigurao najvišu razinu kvalitete.

Kompleks čine luksuzni stanovi raspoređeni u 3 dvojne zgrade od kojih svaka zgrada ima svega po 6 stanova, te još jedna zgrada sa ukupno 3 stana, a dodatnu vrijednost donosi zajednički bazen – savršeno mjesto za opuštanje i druženje. Dio ovog kompleksa činiti će i 4 vile koje će dodatno zaokružiti ovaj projekt koji se prostire na ukupno 5.700m2.

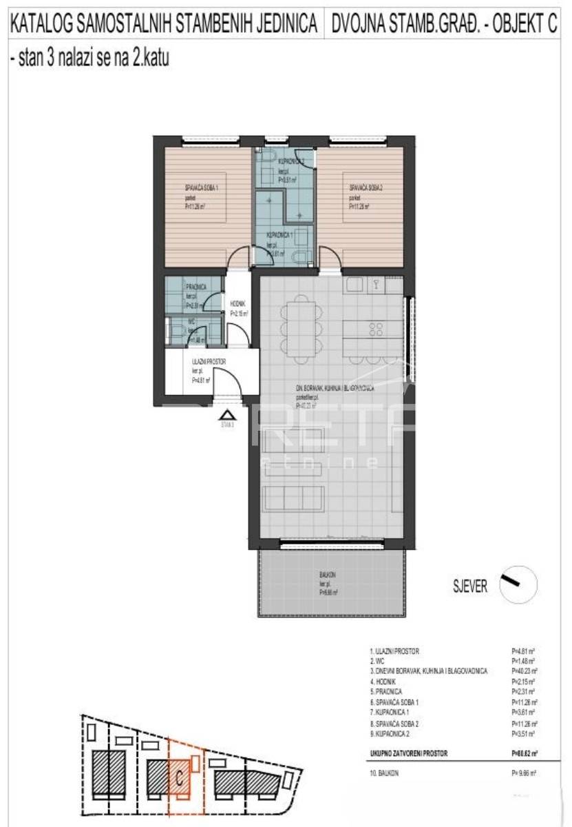
Stan S3C smješten je na 2. katu, stambene površine 80,62 m², s pažljivo osmišljenim rasporedom: hodnik, praonica, WC, 2 kupaonice, prostrani dnevni boravak i blagavaonica, kuhinja, 2 dvije spavaće sobe i balkon od 9,66 m² (koef. 0,50).
Stanu pripada i krovna terasa površine 80m2 (koef. 0,20) za opuštanje uz jacuzzi i ležaljke u potpunoj privatnosti.

Zajednički bazen za objekt C i D koji imaju ukupno 6 stanova.

Uz stan je obavezna kupnja vanjskog parkirnog mjesta po cijeni od 12.500 €.

Ovaj projekt predstavlja sigurnu i vrijednu investiciju – bilo da tražite moderan dom u Dalmaciji ili nekretninu s izvrsnim potencijalom za turistički najam.

USLUGA KREDITNOG POSREDOVANJA: Opereta ekspert pruža besplatnu uslugu kreditnog posredovanja, uspoređujući ponude više banaka na jednom mjestu. Naš tim objašnjava sve opcije i vodi vas kroz cijeli proces – od konzultacija do isplate kredita, kako biste donijeli informiranu financijsku odluku i uštedjeli vrijeme.

Lokacija

close
Napomena: prikazana je točna lokacija

Dodatni podaci

Balkon/Lođa/Terasa

  • Balkon
  • Terasa
Oglas objavljen 25.10.2025. 01:41
Do isteka još 2 godine i 8 mjeseci
Pregleda 7

Slični oglasi Pogledaj sve oglase

Navedite razlog prijave oglasa

Podijeli oglas

Luksuzni Penthouse na 70 m od mora –  S3C – Okrug Donji, Čiovo

Luksuzni Penthouse na 70 m od mora – S3C – Okrug Donji, Čiovo

ID oglasa: 73061

Cijena: 580.000,00 €

U usporedbi može biti maksimalno 4 oglasa. Uklonite 1 oglas kako bi dodali novi oglas u usporedbe

PROVJERI OGLASE