Luksuz i elegancija na 70 m od plaže – stan S2A – Okrug Donji, Čiovo

Cijena: 440.000,00 €
ID oglasa: 72456

Osnovni podaci

Lokacija Splitsko-dalmatinska, Okrug, Okrug Donji
Tip stana u stambenoj zgradi
Stambena površina 86,64 m²
Broj etaža Jednoetažni
Broj soba Garsonijera
Kat 1. kat
Godina izgradnje 2026
Ukupni broj katova u zgradi 2

Opis

Luksuz i elegancija na 70 m od plaže – stan S2A – Okrug Donji, Čiovo
Luksuz i elegancija na 70 m od plaže – stan S2A – Okrug Donji, Čiovo

Ovaj projekt moderne i suvremene arhitekture je mjesto gdje se plavetnilo mora susreće s vrhunskim dizajnom i mediteranskim načinom života. Samo 70 metara od kristalno čistog mora, nudi savršen spoj elegancije, udobnosti i privatnosti.

Okrug Donji nudi mir, more i autentičan mediteranski ugođaj, uz brzu i odličnu povezanost s Trogirom, Zračnom lukom Split i gradom Splitom – idealan izbor za one koji žele luksuz blizu mora, ali daleko od gužve. Poznat je po netaknutoj prirodi, čistom moru i šetnicama uz obalu, a zbog odlične povezanosti s Trogirom i Splitom postaje sve traženija lokacija za stanovanje i odmor.

U tek započetoj gradnji, svaki detalj je pažljivo osmišljen kako bi osigurao najvišu razinu kvalitete.

Kompleks čine luksuzni stanovi raspoređeni u 3 dvojne zgrade od kojih svaka zgrada ima svega po 6 stanova, te još jedna zgrada sa ukupno 3 stana, a dodatnu vrijednost donosi zajednički bazen – savršeno mjesto za opuštanje i druženje. Dio ovog kompleksa činiti će i 4 vile koje će dodatno zaokružiti ovaj projekt koji se prostire na ukupno 5.700m2.

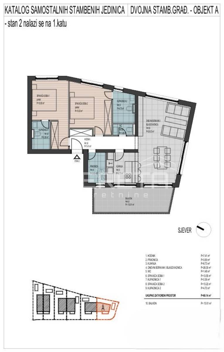
Stan S2A smješten je na 1. katu, stambene površine 80,14 m², s pažljivo osmišljenim rasporedom: hodnik, praonica, WC, 2 kupaonice, prostrani dnevni boravak i blagavaonica, kuhinja, 2 dvije spavaće sobe i balkon od 13,01 m² (koef. 0,50).

Zajednički bazen za objekt A i B koji imaju ukupno 6 stanova.

Uz stan je obavezna kupnja vanjskog parkirnog mjesta po cijeni od 12.500 €.

Ovaj projekt predstavlja sigurnu i vrijednu investiciju – bilo da tražite moderan dom u Dalmaciji ili nekretninu s izvrsnim potencijalom za turistički najam.

USLUGA KREDITNOG POSREDOVANJA: Opereta ekspert pruža besplatnu uslugu kreditnog posredovanja, uspoređujući ponude više banaka na jednom mjestu. Naš tim objašnjava sve opcije i vodi vas kroz cijeli proces – od konzultacija do isplate kredita, kako biste donijeli informiranu financijsku odluku i uštedjeli vrijeme.

Lokacija

close
Napomena: prikazana je točna lokacija

Dodatni podaci

Balkon/Lođa/Terasa

  • Balkon
Oglas objavljen 24.10.2025. 01:53
Do isteka još 2 godine i 8 mjeseci
Pregleda 16

Slični oglasi Pogledaj sve oglase

Navedite razlog prijave oglasa

Podijeli oglas

Luksuz i elegancija na 70 m od plaže – stan S2A – Okrug Donji, Čiovo

Luksuz i elegancija na 70 m od plaže – stan S2A – Okrug Donji, Čiovo

ID oglasa: 72456

Cijena: 440.000,00 €

U usporedbi može biti maksimalno 4 oglasa. Uklonite 1 oglas kako bi dodali novi oglas u usporedbe

PROVJERI OGLASE