KUĆA ZA ODMOR S BAZENOM, MIRNA I TIHA POZICIJA, VIR – ZADAR

Cijena: 260.000,00 €
ID oglasa: 99342

Osnovni podaci

Lokacija Zadarska, Vir, Vir
Tip kuće Samostojeća
Stambena površina 85 m²
Broj etaža Prizemnica
Broj soba 3
Vrsta kuće (gradnje) Zidana kuća (beton, opeka)
Površina okućnice 391 m²
Godina izgradnje 2025
Broj kupaonica s WC-om 1
Sustav grijanja Sustav grijanja, klimatizacije i ventilacije
Namještenost i stanje Nenamješten
Broj vlastitih parkirnih mjesta 2
Klima uređaj DA

Opis

Na prodaju kuća za odmor s bazenom, mirna i tiha pozicija Vir (sjeverna strana) – Zadar

OPIS NEKRETNINE:

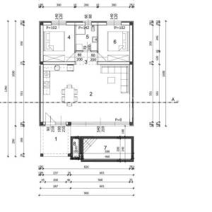
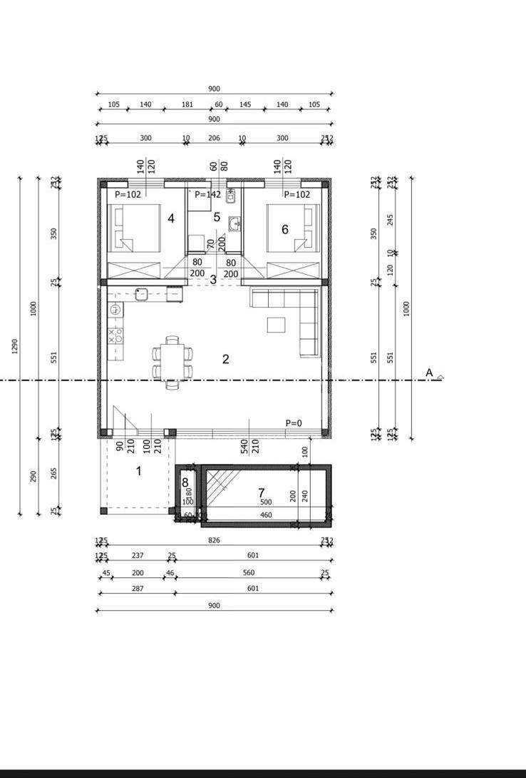
2 spavaće sobe, dnevni boravak, kuhinja, blagovaonica, kupaonica.

Klimatizirano – inverter.
Bazen.
Tiha i mirna lokacija, idealno za opuštanje.
Izvrsna za povrat investicije kroz najam.
Parking za 2 vozila.
Mogućnost postave solarnih panela po dogovoru!

Za više informacija i dogovor oko termina razgledavanja, slobodno nas kontaktirajte, stojimo vam na raspolaganju s punim povjerenjem.

Lokacija

close
Napomena: Prikazana je približna lokacija

Dodatni podaci

Podaci o objektu

  • Novogradnja
  • Pristup za osobe s invaliditetom
  • Gradski vodovod

Balkon/Lođa/Terasa

  • Terasa

Alternativni izvori energije

  • Solarni paneli

Funkcionalnosti i karakteristike

  • Tuš kabina
  • Električne rolete

Ostali objekti i površine

  • Dvorište/vrt
  • Bazen

Vrsta parkinga

  • Vanjsko ne-natkriveno mjesto

Dozvole i potvrde

  • Vlasnički list
  • Građevinska dozvola
Oglas objavljen 20.12.2025. 12:18
Do isteka još 2 godine i 5 mjeseci
Pregleda 220

Slični oglasi Pogledaj sve oglase

Navedite razlog prijave oglasa

Podijeli oglas

KUĆA ZA ODMOR S BAZENOM, MIRNA I TIHA POZICIJA, VIR – ZADAR

KUĆA ZA ODMOR S BAZENOM, MIRNA I TIHA POZICIJA, VIR – ZADAR

ID oglasa: 99342

Cijena: 260.000,00 €

U usporedbi može biti maksimalno 4 oglasa. Uklonite 1 oglas kako bi dodali novi oglas u usporedbe

PROVJERI OGLASE