K.Novi, novogradnja prizemnica na 1239 m2 zemljišta prodaja

Cijena: 545.000,00 €
ID oglasa: 54215

Osnovni podaci

Lokacija Splitsko-dalmatinska, Kaštela, Kaštel Novi
Tip kuće Samostojeća
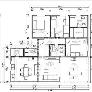
Stambena površina 146 m²
Broj etaža Prizemnica
Broj soba 3
Netto površina 1.239 m²
Sustav grijanja Sustav grijanja, klimatizacije i ventilacije
Energetski razred A

Opis

Novosagrađena samostojeća kuća - prizemnica u Kaštel Novom, smještena na parceli površine cca. 1239 m2.
Površina objekta je cca. 146m2.
Čelična konstrukcija - garancija 50 godina.
Sastoji se od kuhinje sa blagovaonom i dnevnim boravkom, ostave, praonice rublja sa perilicom i sušilicom, dvije spavaće sobe (dječje), kupaonice, prostrane spavaće sobe sa walk in garderobom i vlastitom kupaonicom.
Dvije natkrivene terase, jedna sa juga sa ljetnom kuhinjom i druga sa zapadne strane.
Grijanje na klimu i kruta goriva.
Okućnica je kultivirana sa agrumima, maslinama i cvijećem ( jasmin, ruže...) .
Uređena i organizirana okućnica za uživanje u vrućim ljetnim danima te večernjim druženjima na otvorenom.
Mikrolokacija omogućuje brzu prometnu povezanost sa Zračnom lukom te blizina Splita i Trogira koji se ponose UNESCO-ovim lokalitetima.
U sklopu odvodnje izrađena je Bio jama.
S obzirom na površinu zemljišta, uz postojeći objekt mogućnost izgradivosti još 245 m2 tlocrtno, raspoređeno na podrum, prizemlje + 2 kata.
S prvog kata mogućnost panoramskog nesmetanog pogleda na Split, more, otoke i planine.
Više parking mjesta.
Kuhinja sa ugradbenim uređajima, ugradbeni ormari, namještaj u dnevnom boravku te glavnoj spavaćoj sobi i kompletni vešeraj s aparatima u cijeni.
Uporabna dozvola.
www.biliskov.com - ID: 14431 

Lokacija

close
Napomena: prikazana je točna lokacija

Dodatni podaci

Podaci o objektu

  • Gradski vodovod

Funkcionalnosti i karakteristike

  • Perilica posuđa
  • Tuš kabina

Dozvole i potvrde

  • Vlasnički list
Oglas objavljen 05.07.2024. 12:33
Do isteka još 2 godine i 8 mjeseci
Pregleda 76

Slični oglasi Pogledaj sve oglase

Navedite razlog prijave oglasa

Podijeli oglas

K.Novi, novogradnja prizemnica na 1239 m2 zemljišta prodaja

K.Novi, novogradnja prizemnica na 1239 m2 zemljišta prodaja

ID oglasa: 54215

Cijena: 545.000,00 €

U usporedbi može biti maksimalno 4 oglasa. Uklonite 1 oglas kako bi dodali novi oglas u usporedbe

PROVJERI OGLASE