PRODAJA K.Štafilić zemljiste pokraj mora, pravomoćna građevinska dozvola

Cijena: 250.000,00 €
ID oglasa: 102563

Osnovni podaci

Lokacija Splitsko-dalmatinska, Kaštela, Kaštel Štafilić
Tip zemljišta Poljoprivredno
Površina 480 m²

Opis

GRAĐEVINSKO ZEMLJIŠTE – KAŠTEL ŠTAFILIĆ (SA PRAVOMOĆNOM GRAĐEVINSKOM DOZVOLOM)
Prodaje se građevinsko zemljište u Kaštel Štafiliću, na atraktivnoj lokaciji, idealnoj za stanovanje ili investiciju.
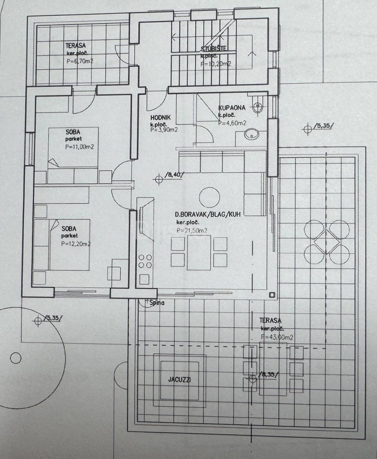
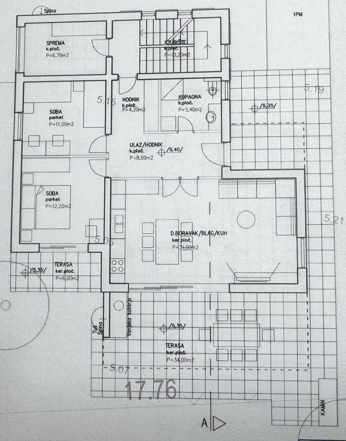
Zemljište površine cca. 480m², posjeduje pravomoćnu građevinsku dozvolu za izgradnju stambenog objekta razvijene građevinske bruto površine cca. 193 m2, na dvije etaže.
Prizemlje: dvosoban stan sa terasama
1.kat: dvosoban stan sa terasama
Parcela je pravilnog oblika, s osiguranim pristupnim putem.
Direktni put do mora koje je od parcele udaljeno svega nekoliko koraka.
Gradnja je moguća odmah.
Prednosti nekretnine:

pravomoćna građevinska dozvola - uredno vlasništvo, - blizina mora, centra mjesta, zračne luke Split- izvrsna investicijska prilika

Cijena nije fiksna!
www.biliskov.com - ID: 15720 

Lokacija

close
Napomena: prikazana je točna lokacija
Oglas objavljen 15.01.2026. 08:33
Do isteka još 2 godine i 8 mjeseci
Pregleda 105

Slični oglasi Pogledaj sve oglase

Navedite razlog prijave oglasa

Podijeli oglas

PRODAJA K.Štafilić zemljiste pokraj mora, pravomoćna građevinska dozvola

PRODAJA K.Štafilić zemljiste pokraj mora, pravomoćna građevinska dozvola

ID oglasa: 102563

Cijena: 250.000,00 €

U usporedbi može biti maksimalno 4 oglasa. Uklonite 1 oglas kako bi dodali novi oglas u usporedbe

PROVJERI OGLASE