KASTAV, RUBEŠI - roh-bau etaža s velikom terasom i pogledom!

Cijena: 150.000,00 €
ID oglasa: 86348

Osnovni podaci

Lokacija Primorsko-goranska, Kastav, Rubeši
Tip stana u stambenoj zgradi
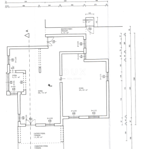
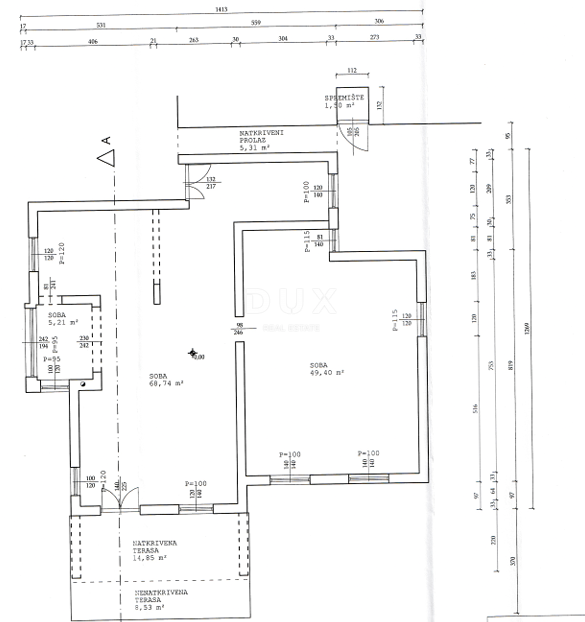
Stambena površina 132,90 m²
Broj etaža 2
Broj soba Garsonijera
Kat Prizemlje
Netto površina 132,90 m²
Ukupni broj katova u zgradi 2
Energetski razred A

Opis

KASTAV, RUBEŠI - roh-bau etaža s velikom terasom i pogledom!

Na prodaju je roh-bau etaža u kući s tri stana, smještena na mirnoj lokaciji u Rubešima. Kuća ima akt o legalnosti, što budućem vlasniku daje sigurnu pravnu osnovu za sve daljnje radove i uređenja.

Etaža ima 132,9 m² neto površine, dok stambeni dio iznosi 123,35 m², uz dodatne površine koje daju ukupnu bruto kvadraturu od 146,73 m².

Velika prednost je prostrana terasa s otvorenim pogledom na more, koja prostoru daje iznimnu vrijednost i mogućnost stvaranja fantastičnog životnog ambijenta.

Kuća nije etažirana, što ostavlja budućem vlasniku prostor za organizaciju prema vlastitim potrebama.
Smještena je na velikoj parceli od 1.090 m², na kojoj postoji mogućnost formiranja vlastitog parkirališta, okućnice, prostorija za druženje, roštilja, nadstrešnica i ostalih dodatnih sadržaja.

Ova nekretnina je idealna za kupce koji žele prilagoditi prostor sebi i stvoriti stan u kući s terasom, pogledom i mogućnošću korištenja okućnice – prava prilika na tržištu.

Pri svakom razgledu nekretnine, obavezan je potpis ugovora o posredovanju!
Poštovani klijenti, agencijska provizija naplaćuje se u skladu s Općim uvjetima poslovanja www.dux-nekretnine.hr/opci-uvjeti-poslovanja

ID KOD AGENCIJE: 43476

Domagoj Ivezić
Agent s licencom
Mob: +385 97 6910 507
Tel: +385 91 480 8808
E-mail: [email protected]
www.dux-nekretnine.hr

Lokacija

close
Napomena: prikazana je točna lokacija

Dodatni podaci

Podaci o objektu

  • Gradska kanalizacija

Balkon/Lođa/Terasa

  • Terasa
Oglas objavljen 17.11.2025. 00:00
Do isteka još 2 godine i 8 mjeseci
Pregleda 21

Slični oglasi Pogledaj sve oglase

Navedite razlog prijave oglasa

Podijeli oglas

KASTAV, RUBEŠI - roh-bau etaža s velikom terasom i pogledom!

KASTAV, RUBEŠI - roh-bau etaža s velikom terasom i pogledom!

ID oglasa: 86348

Cijena: 150.000,00 €

U usporedbi može biti maksimalno 4 oglasa. Uklonite 1 oglas kako bi dodali novi oglas u usporedbe

PROVJERI OGLASE