ISTRA, UMAG - Eco vila s pogledom na more

Cijena: 759.000,00 €
ID oglasa: 90395

Osnovni podaci

Lokacija Istarska, Umag, Umag
Tip kuće Samostojeća
Stambena površina 126 m²
Broj etaža Prizemnica
Broj soba 1
Netto površina 126 m²
Površina okućnice 474 m²
Godina izgradnje 2025
Energetski razred A+
Broj vlastitih parkirnih mjesta 2
Klima uređaj DA
Pogled na more DA

Opis

ISTRA, UMAG - Eco-friendly vila s pogledom na more

U ponudi je moderna vila smještena u mirnom zelenom okruženju nedaleko od Umaga. Lokacija je pogodna za kupce koji traže privatnost, kvalitetnu gradnju i blizinu mora. Aerodrom u Puli udaljen je 45 minuta, Trst 60 minuta, a Venecija i Treviso manje od dva sata vožnje. Plaže su na oko 1500 metara, a u blizini se nalaze Parenzana, vinarije, maslinici, restorani, wellness i golf sadržaji.

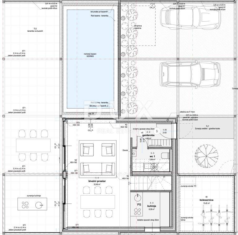
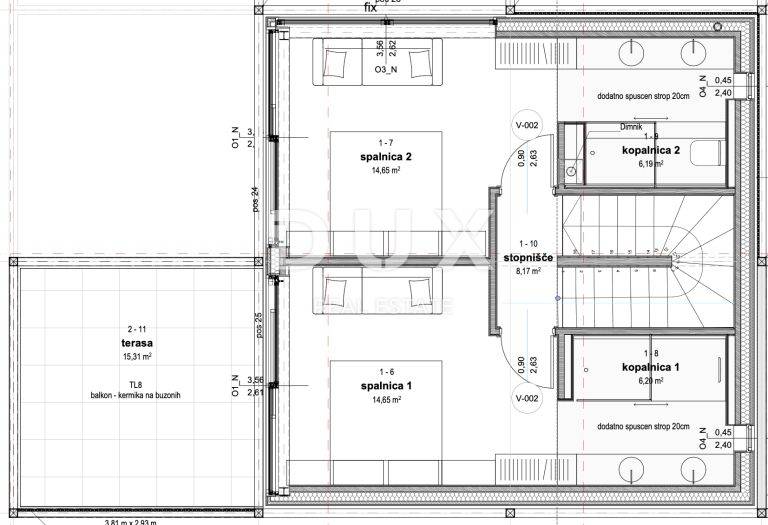
Vila ima ukupnu površinu od 474 kvadrata, od čega je 202 kvadrata pod krovom. Unutarnji stambeni dio iznosi 105 kvadrata, a dodatni prostori uključuju 65 kvadrata natkrivenih terasa, 16 kvadrata natkrivenog balkona i 16 kvadrata spremišta za bicikle. Vanjski dio čine privatni vrt od 208 kvadrata, ulazni vrt od 16 kvadrata, privatni bazen površine 22 kvadrata i dva parkirna mjesta površine 26 kvadrata. Vila ima i pogled na more.

Gradnja je izvedena masivnim drvom iQwood, sustavom koji osigurava energetsku učinkovitost, stabilnost, regulaciju vlage i ugodnu mikroklimu tijekom cijele godine. Ovakva eco-gradnja posebno je cijenjena među europskim kupcima zbog održivosti i dugoročne vrijednosti.

Prizemlje se sastoji od open-space dnevnog boravka s velikim staklenim stijenama koje vode na terasu, kuhinje povezane s blagovaonicom, garderobe i gostinjskog toaleta. Koncept je svijetao, funkcionalan i dobro povezan s eksterijerom.

U dvorištu se nalaze privatni bazen, natkrivena terasa i natkrivena vanjska kuhinja, što omogućuje korištenje prostora kroz cijelu sezonu. Privatni vrt pruža mir i diskreciju, a spremište za bicikle korisno je zbog blizine brojnih biciklističkih ruta.

Na katu se nalaze dvije spavaće sobe, obje s vlastitim kupaonicama. Podno grijanje, klima uređaji, električna sjenila i velike staklene stijene podižu razinu komfora. Jedna od soba ima izlaz na natkriveni balkon s pogledom prema zelenilu i moru.

Vila je pogodna kao obiteljski dom, drugi dom blizu mora ili investicija u luksuzni turistički najam. Privatni bazen, vrt i visoka kvaliteta gradnje izdvajaju je na tržištu i čine je dugoročno sigurnom kupnjom.

Za dodatne informacije, tlocrte, vizualizacije i dogovor termina razgledavanja, dostupno je na upit. Takve nekretnine obično se brzo prodaju, pa se preporučuje pravodobna provjera dostupnosti.

Poštovani klijenti, agencijska provizija naplaćuje se u skladu s Općim uvjetima poslovanja:
www.dux-nekretnine.hr/opci-uvjeti-poslovanja

ID KOD AGENCIJE: 43669

Evan Beaković
Agent s licencom
Mob: +385 91 54 833 54
Tel: +385 99 640 8438
E-mail: [email protected]
www.dux-istra.com

Lokacija

close
Napomena: prikazana je točna lokacija

Dodatni podaci

Podaci o objektu

  • Gradski vodovod
  • Gradska kanalizacija

Balkon/Lođa/Terasa

  • Terasa

Funkcionalnosti i karakteristike

  • Video Portafon
Oglas objavljen 25.11.2025. 00:00
Do isteka još 2 godine i 8 mjeseci
Pregleda 10

Slični oglasi Pogledaj sve oglase

Navedite razlog prijave oglasa

Podijeli oglas

ISTRA, UMAG - Eco vila s pogledom na more

ISTRA, UMAG - Eco vila s pogledom na more

ID oglasa: 90395

Cijena: 759.000,00 €

U usporedbi može biti maksimalno 4 oglasa. Uklonite 1 oglas kako bi dodali novi oglas u usporedbe

PROVJERI OGLASE