ISTRA, UMAG - Eco-friendly vila blizu mora

Cijena: 699.000,00 €
ID oglasa: 90391

Osnovni podaci

Lokacija Istarska, Umag, Umag
Tip kuće Samostojeća
Stambena površina 126 m²
Broj etaža Prizemnica
Broj soba 1
Netto površina 126 m²
Površina okućnice 454 m²
Godina izgradnje 2025
Energetski razred A+
Broj vlastitih parkirnih mjesta 2
Klima uređaj DA
Pogled na more DA

Opis

ISTRA, UMAG - Eco-friendly vila blizu mora

U prodaji je moderna vila smještena u tihom i zelenom okruženju nedaleko od Umaga, pogodna za kupce koji traže privatnost, kvalitetnu eco-gradnju i blizinu mora. Aerodrom u Puli udaljen je 45 minuta, Trst 60 minuta, a Venecija i Treviso manje od dva sata vožnje. Plaže se nalaze na oko 1500 metara, a u neposrednoj blizini dostupni su Parenzana, vinarije, maslinici, restorani, wellness i golf sadržaji.

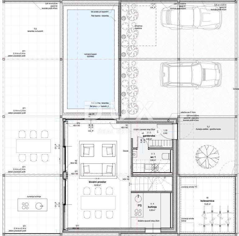
Vila ima ukupnu površinu od 454 kvadrata, od čega je 202 kvadrata pod krovom. Unutarnji stambeni prostor iznosi 105 kvadrata, uz dodatnih 65 kvadrata natkrivenih terasa, 16 kvadrata natkrivenog balkona i 16 kvadrata spremišta za bicikle. U vanjskom dijelu nalazi se privatni vrt površine 150 kvadrata, ulazni vrt od 16 kvadrata, privatni bazen površine 22 kvadrata i dva parkirna mjesta ukupne površine 64 kvadrata.

Vila je građena masivnim drvom iQwood, sustavom koji nudi energetsku učinkovitost, stabilnu konstrukciju, dobru regulaciju vlage i ugodnu mikroklimu tijekom svih godišnjih doba. Ova eco-friendly gradnja privlačna je kupcima koji traže održivo rješenje s dugoročnom vrijednošću i nižim režijskim troškovima.

Prizemlje se sastoji od open-space dnevnog boravka s velikim staklenim stijenama i izravnim izlazom na terasu, kuhinje povezane s blagovaonicom, garderobe i gostinjskog toaleta. Prostor je praktičan, svijetao i prirodno povezan s vanjskim dijelom.

Dvorište uključuje privatni bazen, natkrivenu terasu i natkrivenu vanjsku kuhinju, što omogućuje ugodno korištenje prostora kroz cijelu sezonu. Privatni vrt pruža mir i intimu, a spremište za bicikle dodatno doprinosi praktičnosti zbog blizine poznatih biciklističkih staza.

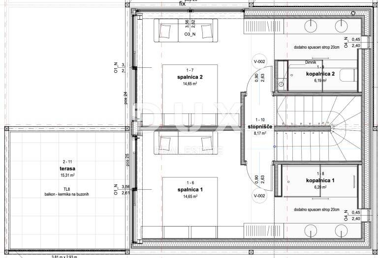
Na katu se nalaze dvije spavaće sobe, obje s vlastitim kupaonicama. Podno grijanje, klima uređaji, električna sjenila i velike staklene stijene osiguravaju visoku razinu komfora. Jedna od soba ima izlaz na natkriveni balkon, idealan za opuštanje i uživanje u pogledu na zeleno okruženje.

Vila je pogodna kao drugi dom, obiteljsko utočište ili investicija s odličnim potencijalom za luksuzni turistički najam. Privatni bazen, vrt i održiva gradnja dodatno je izdvajaju na tržištu.

Za više informacija, tlocrte, vizualizacije i organizaciju razgledavanja, detalji su dostupni na upit. Ovakve nekretnine najčešće se brzo prodaju.

Poštovani klijenti, agencijska provizija naplaćuje se u skladu s Općim uvjetima poslovanja:
www.dux-nekretnine.hr/opci-uvjeti-poslovanja

ID KOD AGENCIJE: 43672

Evan Beaković
Agent s licencom
Mob: +385 91 54 833 54
Tel: +385 99 640 8438
E-mail: [email protected]
www.dux-istra.com

Lokacija

close
Napomena: prikazana je točna lokacija

Dodatni podaci

Podaci o objektu

  • Gradski vodovod
  • Gradska kanalizacija

Balkon/Lođa/Terasa

  • Terasa

Funkcionalnosti i karakteristike

  • Video Portafon
Oglas objavljen 25.11.2025. 00:00
Do isteka još 2 godine i 7 mjeseci
Pregleda 36

Slični oglasi Pogledaj sve oglase

Navedite razlog prijave oglasa

Podijeli oglas

ISTRA, UMAG - Eco-friendly vila blizu mora

ISTRA, UMAG - Eco-friendly vila blizu mora

ID oglasa: 90391

Cijena: 699.000,00 €

U usporedbi može biti maksimalno 4 oglasa. Uklonite 1 oglas kako bi dodali novi oglas u usporedbe

PROVJERI OGLASE