ISTRA, KANFANAR – Investicijska prilika! Zemljišta s dozvolama za luksuzne vile

Cijena: 410.000,00 €
ID oglasa: 38541

Osnovni podaci

Lokacija Istarska, Kanfanar, Kanfanar
Tip zemljišta Građevinsko
Površina 2.928 m²

Opis

ISTRA, KANFANAR – Investicijska prilika! Tri građevinska zemljišta s dozvolama za luksuzne vile s bazenima

U mirnom i zelenilom okruženom selu u okolici Kanfanara, nudimo tri građevinska zemljišta s pravomoćnim građevinskim dozvolama za izgradnju rustikalnih vila s bazenima – idealna prilika za investitore koji traže gotov projekt spreman za realizaciju.

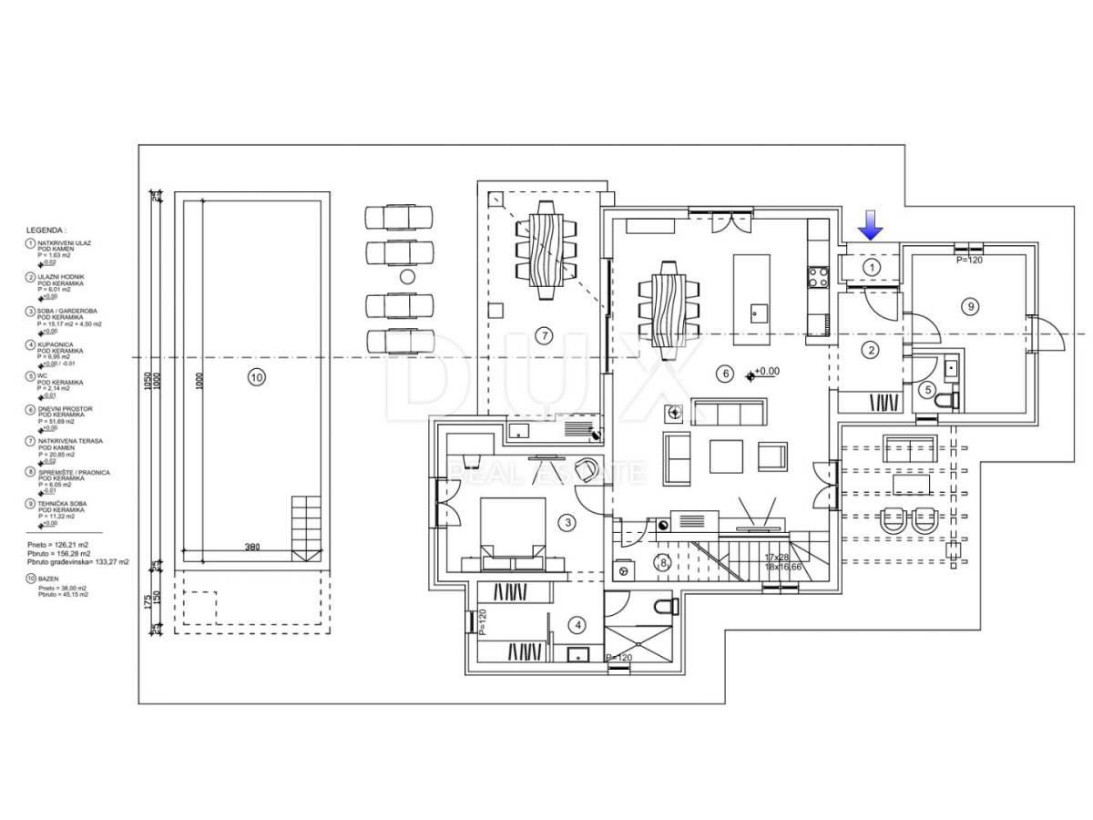
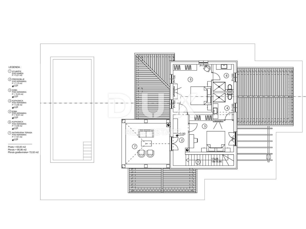
Svaka parcela ima projekt za izgradnju luksuzne obiteljske kuće koja kombinira autentični istarski stil s modernim sadržajima. Vile su pažljivo projektirane za udoban obiteljski život ili za profitabilan turistički najam.

Dodatna četvrta parcela površine cca 200 m² služi kao pristupni put i uključena je u cijenu.

Glavne prednosti:
Tri odvojena zemljišta s pravomoćnim građevinskim dozvolama
Projekti predviđaju vile s bazenima i visokom energetskom učinkovitošću
Sva infrastruktura dovedena, zemljišta ograđena i očišćena
Moguć brz početak gradnje, bez dodatnih čekanja
Lokacija u traženom dijelu Istre, u blizini mora, trgovina, škola i prometnih poveznica

Savršena prilika za ulaganje u luksuzni projekt s velikim potencijalom povrata, na tržištu koje i dalje bilježi visoku potražnju za kvalitetnim vilama.

Za više informacija, projekte i obilazak terena, slobodno nas kontaktirajte.

Poštovani klijenti, agencijska provizija naplaćuje se u skladu s Općim uvjetima poslovanja:
www.dux-nekretnine.hr/opci-uvjeti-poslovanja

ID KOD AGENCIJE: 39169

Mladen Tićak
Agent s licencom
Mob: +385 97 775 2147
Tel: +385 99 640 8438
E-mail: [email protected]
www.dux-istra.com

Lokacija

close
Napomena: prikazana je točna lokacija

Dodatni podaci

Komunalije

  • Gradski vodovod
Oglas objavljen 07.05.2025. 00:00
Do isteka još 2 godine i 7 mjeseci
Pregleda 32

Slični oglasi Pogledaj sve oglase

Navedite razlog prijave oglasa

Podijeli oglas

ISTRA, KANFANAR – Investicijska prilika! Zemljišta s dozvolama za luksuzne vile

ISTRA, KANFANAR – Investicijska prilika! Zemljišta s dozvolama za luksuzne vile

ID oglasa: 38541

Cijena: 410.000,00 €

U usporedbi može biti maksimalno 4 oglasa. Uklonite 1 oglas kako bi dodali novi oglas u usporedbe

PROVJERI OGLASE