ISTRA, BARBAN - Kompleks građevinskih parcela s predanim zahtjevom za izgradnju samostojećih modernih vila

Cijena: 200.000,00 €
ID oglasa: 41864

Osnovni podaci

Lokacija Istarska, Barban, Barban
Tip zemljišta Građevinsko
Površina 2.036 m²

Opis

ISTRA, BARBAN - Kompleks građevinskih zemljišta, smještenih na mirnoj lokaciji, jedno uz drugo. Na dva zemljišta je već predan zahtjev za izdavanje građevinske dozvole u cilju izgradnje samostojećih modernih i luksuznih vila.

Ponosno predstavljamo ovu vrhunsku priliku za sve koji su u potrazi za zemljištima u cilju izgradnje modernog kompleksa vila sa sigurnim povratom na uloženo.

OPIS ZEMLJIŠTA:
Riječ je o kompleksu 5 komada građevinskih zemljišta, a koja se sastoje od ukupnih 2036 m2. Svako zemljište pojedinačno:

* Parcela 1: 747m2 - Širina: 26,80m, Dužina: 29,29m
* Parcela 2: 763m2 - Širina: 24,21m, Dužina: 37,61m
* Parcela 3: 526m2 - Širina: 20,65m, Dužina: 27,32m

Moramo istaknuti kako su na Parceli 1 i Parceli 2, vlasnici predali zahtjev za izgradnju samostojećih modernih i visoko luksuznih vila, koje bi se sastojale od okvirnih 280m2 NETO površine, te koje se dijele na dvije etaže, prizemlje i kat.

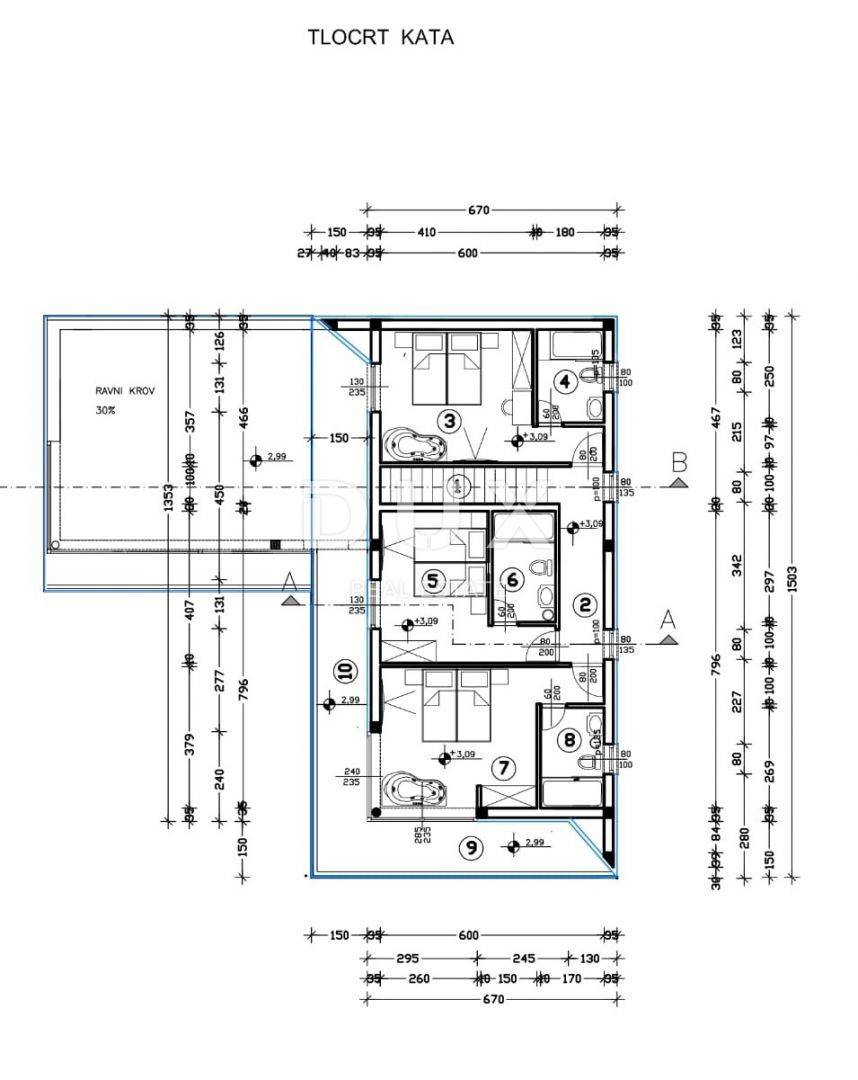
OPIS BUDUĆIH VILA:
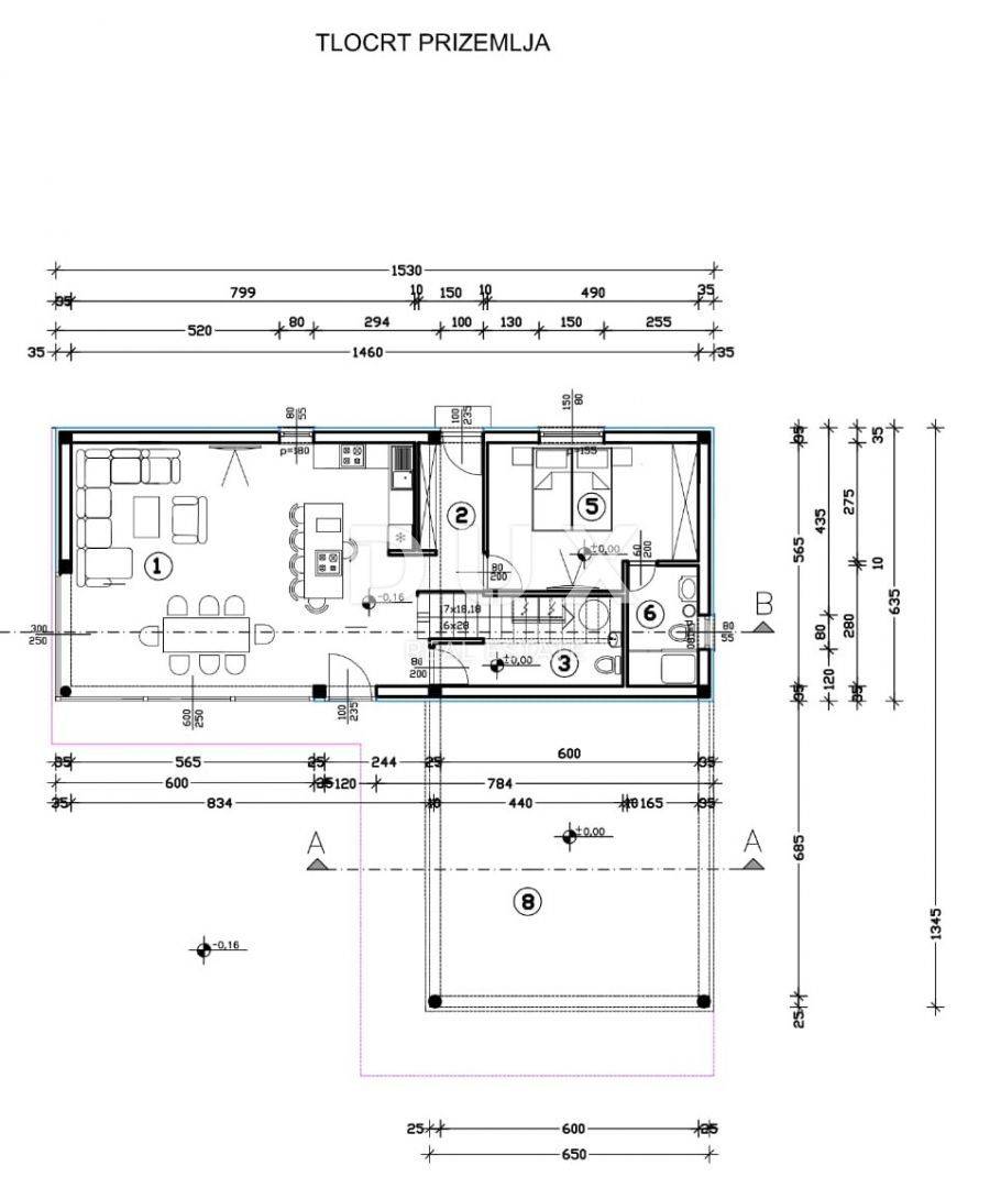
Prizemlje vila je planirano da se sastoje od dnevnoga prostora "open space" koncepta u kojemu se nalazi dnevni boravak, kuhinja i blagovaona. Zatim u prizemlju bi se smjestila prva spavaća soba s vlastitom kupaonicom i gostinjski toalet, kao i ulazno predvorje s prostorom za garderobu. Unutarnjim stubištem pristupa se katu vila gdje se nalaze dodatne 3 spavaće sobe od kojih jedna predstavlja master spavaću sobu. Svaka spavaća soba na ovoj etaži posjedovala bi vlastitu kupaonicu, kao i izlaz na djelomično natkrivenu terasu s predivnim pogledom prema brdovitom krajoliku.

Naravno svaka od vila uključuje i vlastiti bazen na okućnici, dimenzija 4,30m X 11,25m, uz veću natkrivenu terasu gdje je planirana sjedeća garnitura i prostor za zabavu.

DODATNE INFORMACIJE:
* Vlasništvo je na zemljištima je uredno, bez tereta.
* Mogućnost gradnje vila za odmor ili obiteljskih kuća.
* Obavezan razmak između objekata i međe parcela iznosi 4m.
* Izgradivost 30% na svakoj parceli.
* Obaveza kosoga krova.

Za sva dodatna pitanja, potrebne informacije ili želju za organizacijom termina razgleda zemljišta, uvida u dokumentaciju i razgled lokacije, slobodno nas kontaktirajte!

Poštovani klijenti, agencijska provizija naplaćuje se u skladu s Općim uvjetima poslovanja
www.dux-nekretnine.hr/opci-uvjeti-poslovanja

ID KOD AGENCIJE: 32185

Loren Kečan
Agent s licencom
Mob: +385 95 576 8337
Tel: +385 99 640 8438
E-mail: [email protected]
www.dux-istra.com

Tina Širol
Agent s licencom
Mob: +385 95 825 4533
Tel: +385 99 640 8438
E-mail: [email protected]
www.dux-istra.com

Lokacija

close
Napomena: prikazana je točna lokacija

Dodatni podaci

Komunalije

  • Gradski vodovod
Oglas objavljen 18.07.2024. 00:00
Do isteka još 2 godine i 7 mjeseci
Pregleda 34

Slični oglasi Pogledaj sve oglase

Navedite razlog prijave oglasa

Podijeli oglas

ISTRA, BARBAN - Kompleks građevinskih parcela s predanim zahtjevom za izgradnju samostojećih modernih vila

ISTRA, BARBAN - Kompleks građevinskih parcela s predanim zahtjevom za izgradnju samostojećih modernih vila

ID oglasa: 41864

Cijena: 200.000,00 €

U usporedbi može biti maksimalno 4 oglasa. Uklonite 1 oglas kako bi dodali novi oglas u usporedbe

PROVJERI OGLASE