ISTRA, BARBAN - Građevinsko zemljište s predanim zahtjevom za izgradnju moderne vile

Cijena: 106.000,00 €
ID oglasa: 41866

Osnovni podaci

Lokacija Istarska, Barban, Barban
Tip zemljišta Građevinsko
Površina 763 m²

Opis

ISTRA, BARBAN - Građevinsko zemljište smješteno na mirnoj lokaciji, na kojemu je predan zahtjev za građevinskom dozvolom za izgradnjom samostojeće moderne i luksuzne vile.

Ponosno predstavljamo ovu vrhunsku priliku za sve one koji su u potrazi za zemljištima u cilju izgradnje obiteljskog doma ili nekretnine kojom žele osigurati povrat na uloženo u vidu turizma ili kasnije preprodaje.

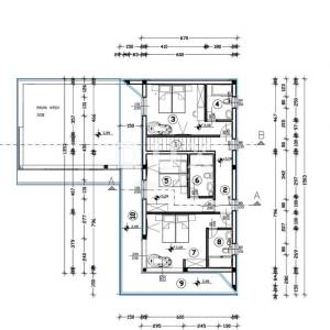
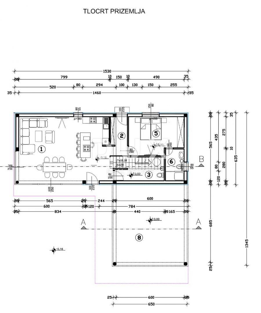
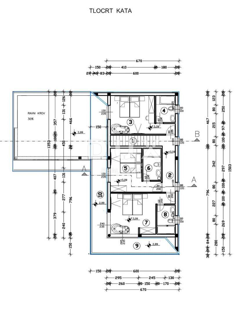
Riječ je o kvalitetnom građevinskom zemljištu, koje se sastoji od ukupnih 763m2. Pravokutnog je oblika, a time i maksimalno iskoristivo. Vlasnici su zemljišta trenutno predali zahtjev za izgradnju samostojeće moderne i visoko luksuzne vile, koja se sastoji od okvirnih 280m2 NETO površine, te koja se dijeli na dvije etaže, prizemlje i kat.

Prizemlje vile je planirano da se sastoji od dnevnoga prostora "open space" koncepta u kojemu se nalazi dnevni boravak, kuhinja i blagovaona. Zatim bi se u prizemlju smjestila prva spavaća soba s vlastitom kupaonicom i gostinjski toalet, kao i ulazno predvorje s prostorom za garderobu. Unutarnjim stubištem pristupa se katu vile gdje se nalaze dodatne 3 spavaće sobe od kojih jedna predstavlja master spavaću sobu. Svaka spavaća soba posjedovala bi vlastitu kupaonicu, kao i izlaz na djelomično natkrivenu terasu s predivnim pogledom prema brdovitom krajoliku.

Naravno vila uključuje i bazen dimenzija 4,30m X 11,25m, uz veću natkrivenu terasu gdje je planirana sjedeća garnitura i prostor za zabavu.

Dimenzije zemljišta:
* Širina: 24,21m
* Dužina: 37,61m

DODATNE INFORMACIJE:
* Vlasništvo je uredno, 1/1 vlasnik, bez tereta.
* Mogućnost gradnje vile za odmor ili obiteljske kuće.
* Obaveza razmaka između objekta i međe parcele iznosi 4m
* Izgradivost 30%
* Obaveza kosoga krova.
* Infrastruktura na zemljištu.
* Postoji mogućnost kupnje dodatnih 3 komada zemljišta + još jednog zemljišta na kojem je predan zahtjev za izgradnju jednake vile.

Za sva dodatna pitanja, potrebne informacije ili želju za organizacijom termina razgleda zemljišta, uvida u dokumentaciju i razgled lokacije, slobodno nas kontaktirajte!

Poštovani klijenti, agencijska provizija naplaćuje se u skladu s Općim uvjetima poslovanja
www.dux-nekretnine.hr/opci-uvjeti-poslovanja

ID KOD AGENCIJE: 32183

Loren Kečan
Agent s licencom
Mob: +385 95 576 8337
Tel: +385 99 640 8438
E-mail: [email protected]
www.dux-istra.com

Tina Širol
Agent s licencom
Mob: +385 95 825 4533
Tel: +385 99 640 8438
E-mail: [email protected]
www.dux-istra.com

Lokacija

close
Napomena: prikazana je točna lokacija

Dodatni podaci

Komunalije

  • Gradski vodovod
Oglas objavljen 18.07.2024. 00:00
Do isteka još 2 godine i 7 mjeseci
Pregleda 33

Slični oglasi Pogledaj sve oglase

Navedite razlog prijave oglasa

Podijeli oglas

ISTRA, BARBAN - Građevinsko zemljište s predanim zahtjevom za izgradnju moderne vile

ISTRA, BARBAN - Građevinsko zemljište s predanim zahtjevom za izgradnju moderne vile

ID oglasa: 41866

Cijena: 106.000,00 €

U usporedbi može biti maksimalno 4 oglasa. Uklonite 1 oglas kako bi dodali novi oglas u usporedbe

PROVJERI OGLASE