ISTRA, BARBAN - Dva građevinska zemljišta s predanim zahtjevima za izgradnju samostoječih modernih vila

Cijena: 207.500,00 €
ID oglasa: 41865

Osnovni podaci

Lokacija Istarska, Barban, Barban
Tip zemljišta Građevinsko
Površina 1.510 m²

Opis

ISTRA, BARBAN - Dva građevinska zemljište smještena na mirnoj lokaciji, jedno uz drugo, na kojima je predan zahtjev za izdavanje građevinske dozvole u cilju izgradnje dviju samostojećih modernih i luksuznih vila.

Ponosno predstavljamo ovu vrhunsku priliku za sve koji su u potrazi za zemljištima u cilju izgradnje obiteljskog doma ili nekretnine kojom žele osigurati povrat na uloženo u vidu turizma ili kasnije preprodaje.

Riječ je o dva kvalitetna komada građevinskog zemljišta, koja se sastoje od ukupnih 1510m2, odnosno jedno se zemljište sastoji od 747m2, dok drugo do 763m2.
Oba su zemljišta pravokutnog oblika, čime je osigurana maksimalna iskoristivost. Vlasnici zemljišta su predali zahtjev za izgradnju samostojećih modernih i visoko luksuznih vila, koje bi se sastojale od okvirnih 280m2 NETO površine, te koje se dijele na dvije etaže, prizemlje i kat.

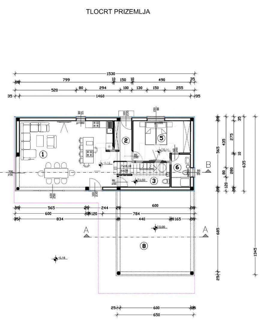
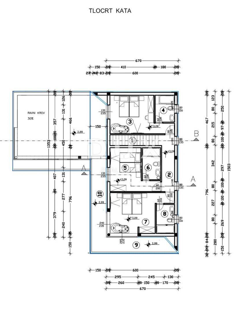
Prizemlje vila je planirano da se sastoje od dnevnoga prostora "open space" koncepta u kojemu se nalazi dnevni boravak, kuhinja i blagovaona. Zatim u prizemlju bi se smjestila prva spavaća soba s vlastitom kupaonicom i gostinjski toalet, kao i ulazno predvorje s prostorom za garderobu. Unutarnjim stubištem pristupa se katu vila gdje se nalaze dodatne 3 spavaće sobe od kojih jedna predstavlja master spavaću sobu. Svaka spavaća soba na ovoj etaži posjedovala bi vlastitu kupaonicu, kao i izlaz na djelomično natkrivenu terasu s predivnim pogledom prema brdovitom krajoliku.

Naravno svaka od vila uključuje i vlastiti bazen na okućnici, dimenzija 4,30m X 11,25m, uz veću natkrivenu terasu gdje je planirana sjedeća garnitura i prostor za zabavu.

Dimenzije manjeg zemljišta od 747m2:
* Širina: 26,80m
* Dužina: 29,29m
Dimenzije većeg zemljišta od 763m2:
* Širina: 24,21m
* Dužina: 37,61m

DODATNE INFORMACIJE:
* Vlasništvo je na oba zemljišta uredno, 1/1 vlasnik, bez tereta.
* Mogućnost gradnje vila za odmor ili obiteljskih kuća.
* Obavezan razmak između objekata i međe parcela iznosi 4m.
* Izgradivost 30% na svakoj parceli.
* Obaveza kosoga krova.
* Postoji mogućnost kupnje dodatnih 3 komada zemljišta.

Za sva dodatna pitanja, potrebne informacije ili želju za organizacijom termina razgleda zemljišta, uvida u dokumentaciju i razgled lokacije, slobodno nas kontaktirajte!

Poštovani klijenti, agencijska provizija naplaćuje se u skladu s Općim uvjetima poslovanja
www.dux-nekretnine.hr/opci-uvjeti-poslovanja

ID KOD AGENCIJE: 32184

Loren Kečan
Agent s licencom
Mob: +385 95 576 8337
Tel: +385 99 640 8438
E-mail: [email protected]
www.dux-istra.com

Tina Širol
Agent s licencom
Mob: +385 95 825 4533
Tel: +385 99 640 8438
E-mail: [email protected]
www.dux-istra.com

Lokacija

close
Napomena: prikazana je točna lokacija

Dodatni podaci

Komunalije

  • Gradski vodovod
Oglas objavljen 18.07.2024. 00:00
Do isteka još 2 godine i 7 mjeseci
Pregleda 35

Slični oglasi Pogledaj sve oglase

Navedite razlog prijave oglasa

Podijeli oglas

ISTRA, BARBAN - Dva građevinska zemljišta s predanim zahtjevima za izgradnju samostoječih modernih vila

ISTRA, BARBAN - Dva građevinska zemljišta s predanim zahtjevima za izgradnju samostoječih modernih vila

ID oglasa: 41865

Cijena: 207.500,00 €

U usporedbi može biti maksimalno 4 oglasa. Uklonite 1 oglas kako bi dodali novi oglas u usporedbe

PROVJERI OGLASE