Hrvatska, Zadar, Privlaka – zemljište s projektom moderne vile i bazenom, 939 m² parcela, 256 m² stambene površine

Cijena: 209.000,00 €
ID oglasa: 62992

Osnovni podaci

Lokacija Zadarska, Privlaka, Privlaka
Tip zemljišta Građevinsko
Namjena ostalo
Površina 1.060 m²

Opis

Građevinsko zemljište s građevinskom dozvolom – moderna vila s bazenom u Privlaci kraj Zadra

Opis nekretnine

Na prodaju je atraktivno građevinsko zemljište u Privlaci, udaljeno svega nekoliko minuta od mora, koje uključuje potpuno izrađen i već odobren glavni projekt za izgradnju moderne vile s bazenom.
Projekt su izradili renomirani hrvatski arhitekti i inženjeri te obuhvaća sve relevantne struke – arhitekturu, konstrukciju, vodovod i odvodnju, elektroinstalacije, grijanje, klimatizaciju i bazensku tehniku.

Građevinska dozvola je izdana, što znači da se s gradnjom može odmah započeti.
Zemljište pruža idealne uvjete za izgradnju kvalitetne obiteljske kuće u mirnom i atraktivnom okruženju u blizini jadranske obale.

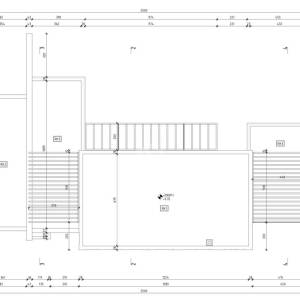
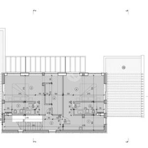
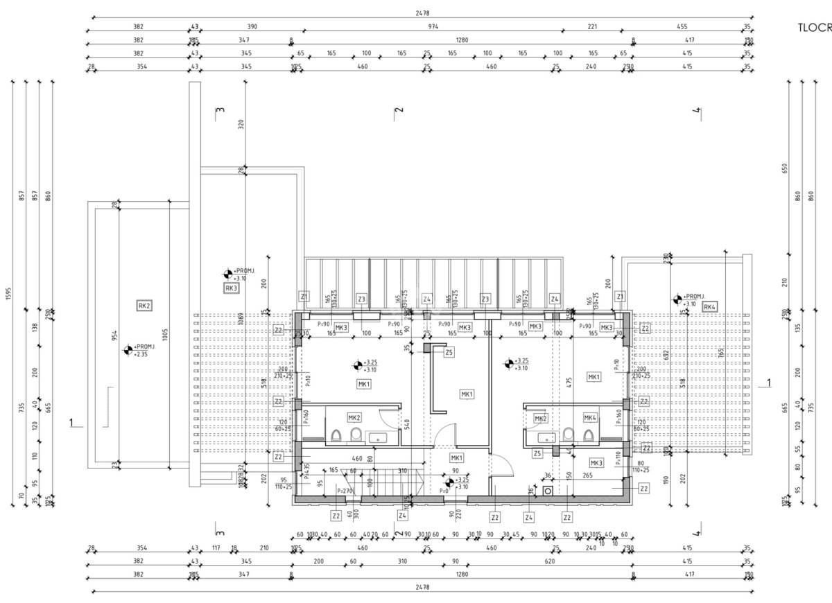
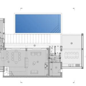
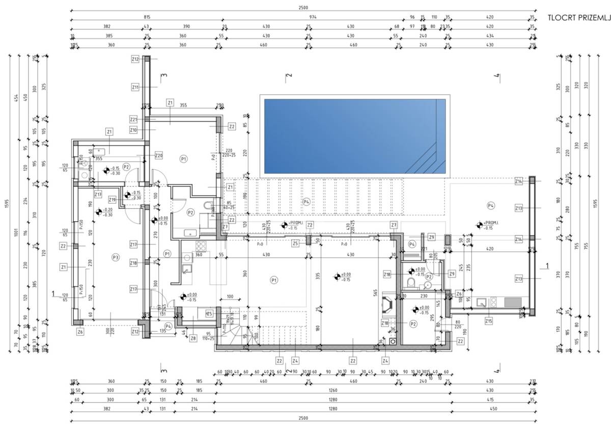
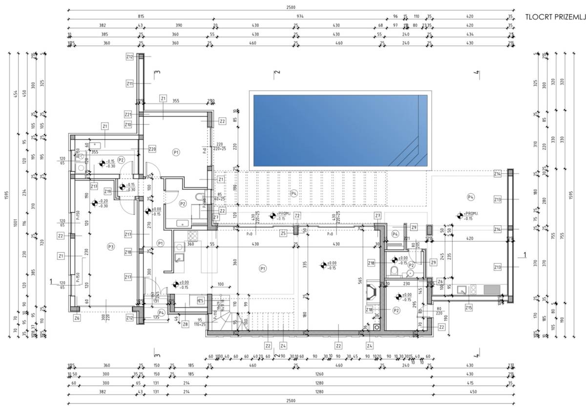
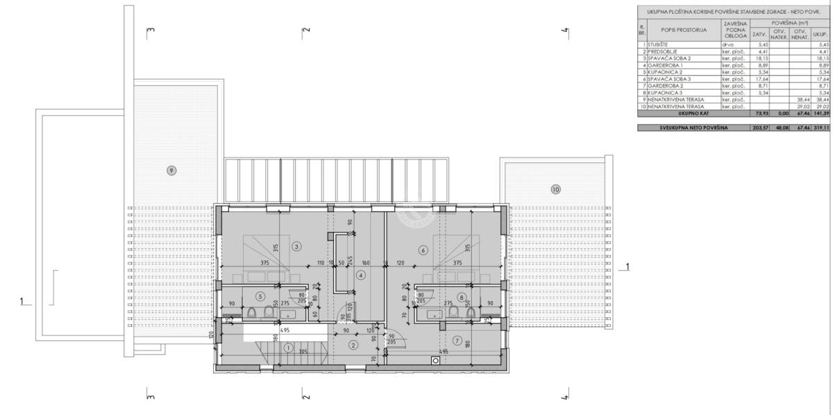
Detalji projekta

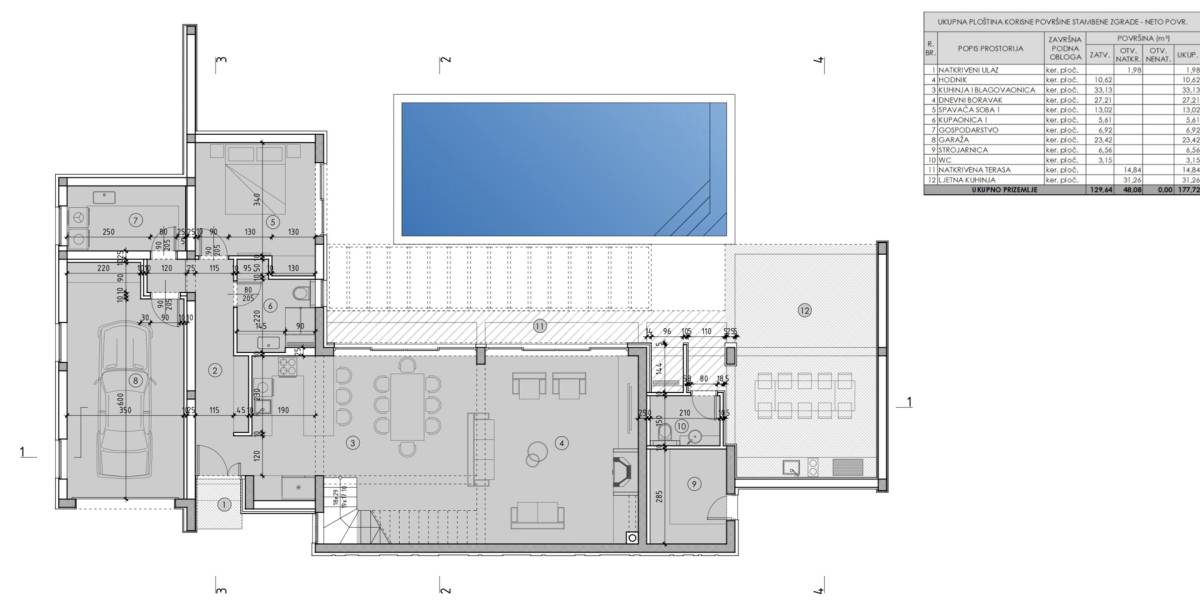
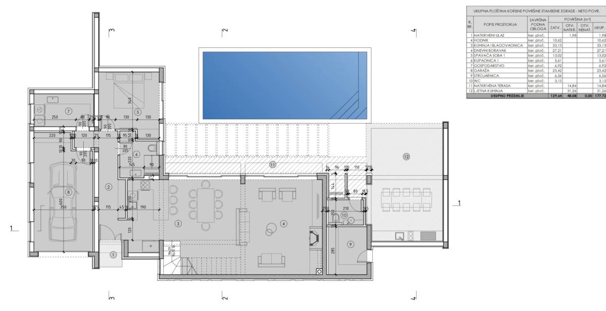
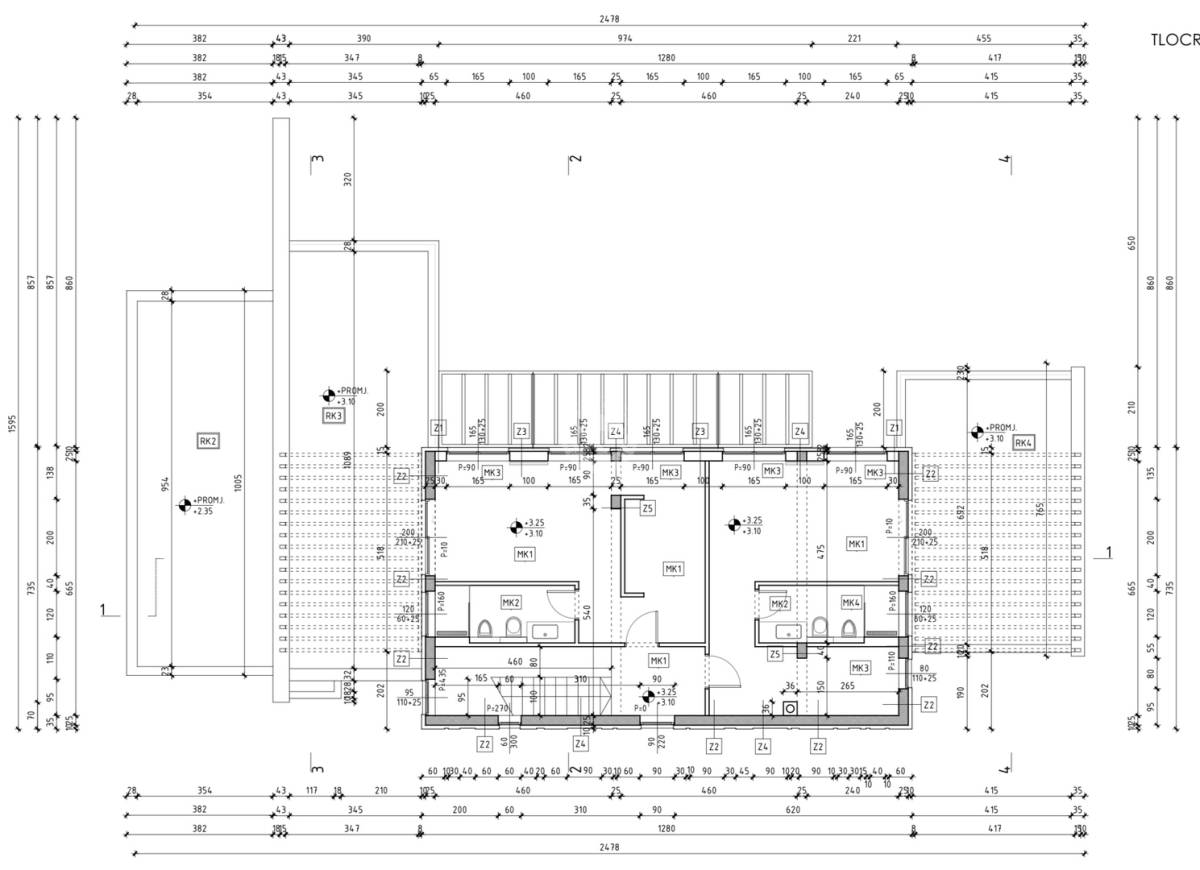
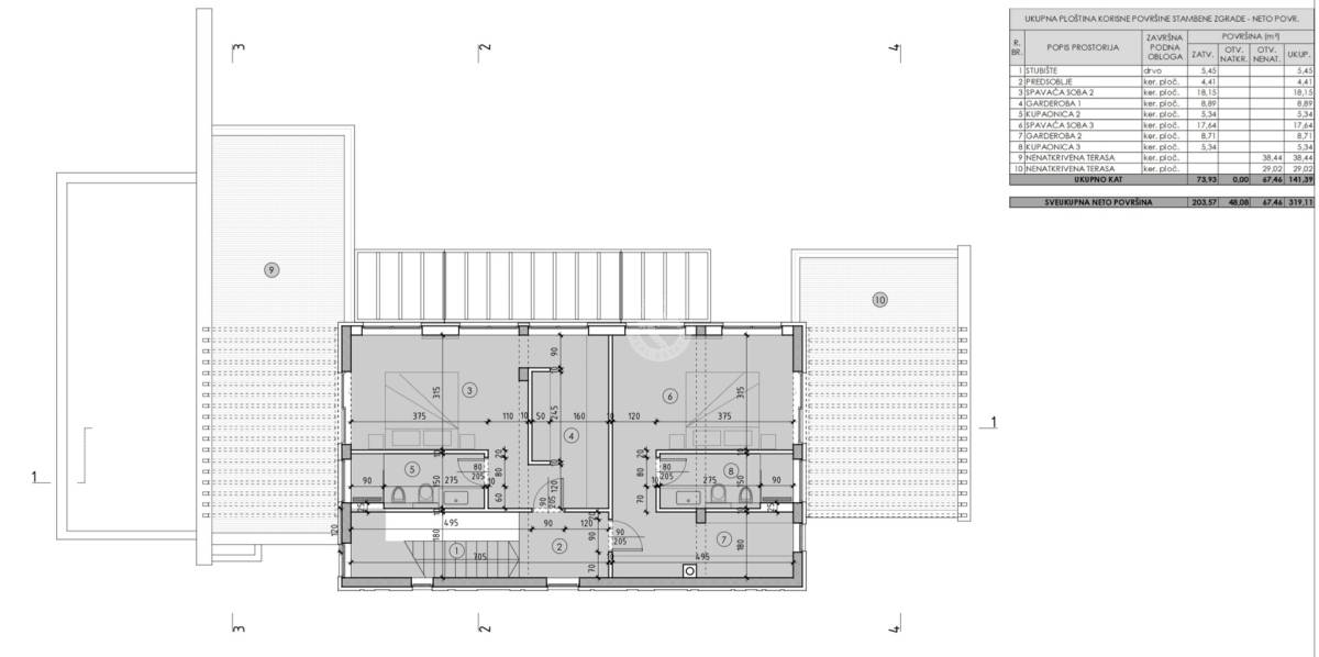
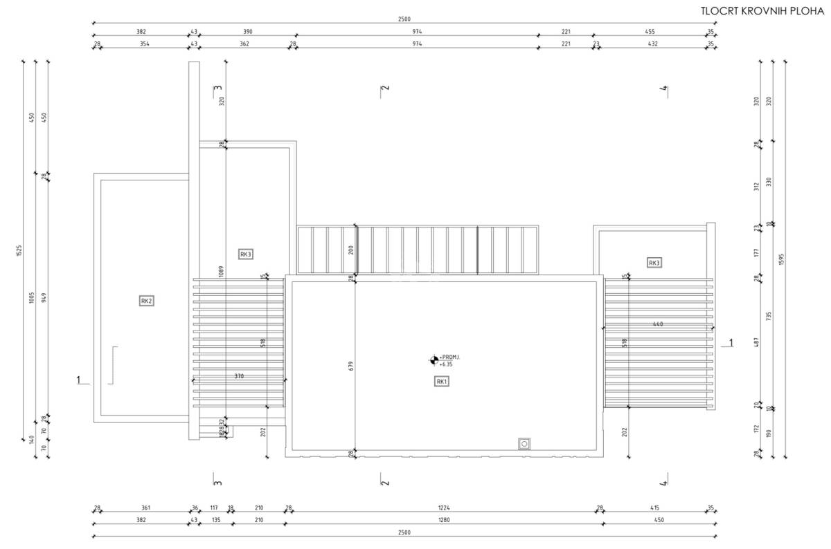
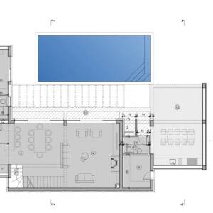
Odobreni projekt predviđa izgradnju moderne obiteljske vile s bazenom i pomoćnim objektom.
Dizajn kombinira čiste linije, mediteranske materijale i prozračne unutarnje prostore – savršeno za suvremeni način života s naglaskom na udobnost i stil.

Planirane karakteristike prema glavnom projektu:

- Vrsta gradnje: obiteljska kuća s pomoćnim objektom i otvorenim bazenom

- Lokacija: Sabunike, Privlaka s pogledom na more

- Ukupna površina zemljišta: 939 m2

- Površina objekta: 213,36 m2

- Površina bazena: 39 m2 (9,75 m × 4,00 m, dubina 1,40 m)

- Površina vrta: cca 320 m2

- Dozvola: glavni projekt dovršen, građevinska dozvola izdana 2024. godine

Projekt uključuje sve revidirane i odobrene projekte u skladu s hrvatskim zakonodavstvom:

- Arhitektonski projekt

- Projekt konstrukcije

- Projekt vodovoda i odvodnje (uključujući vodonepropusnu sabirnu jamu)

- Elektroprojekt

- Termotehnički sustavi (grijanje, hlađenje, ventilacija)

- Bazenska tehnika

Lokacija – Privlaka

Privlaka je šarmantno dalmatinsko mjesto u blizini Zadra, poznato po pješčanim plažama, kristalno čistom moru i mirnom okruženju idealnom za obiteljski život ili odmor.
U neposrednoj blizini nalaze se trgovine, restorani i kafići, dok su Zadar i zračna luka udaljeni svega 25 minuta vožnje automobilom.

Mirna, ali istovremeno i dobro povezana lokacija čini ovaj projekt idealnim izborom za izgradnju luksuzne vile za odmor ili privatne rezidencije na dalmatinskoj obali.

Posebnosti

- Zemljište s potpunim i odobrenim glavnim projektom

- Moguć trenutačni početak gradnje

- Moderna arhitektura s bazenom

- Mirna lokacija u blizini mora

- Kompletna tehnička dokumentacija (voda, struja, grijanje, bazen)

- Predviđen pristupni put, osiguran priključak na struju i vodu

- Odvodnja putem vodonepropusne sabirne jame prema građevinskoj dozvoli

Kontakt

Ako sam pobudio Vaše zanimanje, slobodno me kontaktirajte za dodatne informacije ili dogovor oko razgledavanja nekretnine.

Mirko Kedenburg
Mobitel: +385 95 34 90 557
Tel (DE): +49 173 78 54 109
WhatsApp: wa.link/ydckls

E-mail: [email protected]
Web: www.cro-living.hr

Za više informacija:

Mirko Kedenburg
Tel: +385 95 3490557
Email: [email protected]
Web: https://cro-living.hr/

ID NEKRETNINE: ZG313

Lokacija

close
Napomena: prikazana je točna lokacija
Oglas objavljen 10.10.2025. 00:02
Do isteka još 2 godine i 8 mjeseci
Pregleda 135

Slični oglasi Pogledaj sve oglase

Navedite razlog prijave oglasa

Podijeli oglas

Hrvatska, Zadar, Privlaka – zemljište s projektom moderne vile i bazenom, 939 m² parcela, 256 m² stambene površine

Hrvatska, Zadar, Privlaka – zemljište s projektom moderne vile i bazenom, 939 m² parcela, 256 m² stambene površine

ID oglasa: 62992

Cijena: 209.000,00 €

U usporedbi može biti maksimalno 4 oglasa. Uklonite 1 oglas kako bi dodali novi oglas u usporedbe

PROVJERI OGLASE