Građevinsko zemljište Ždrelac – 160 m od mora, 1085 m²

Cijena: 225.000,00 €
ID oglasa: 112695

Osnovni podaci

Lokacija Zadarska, Pašman, Ždrelac
Tip zemljišta Građevinsko
Površina 1.085 m²

Opis

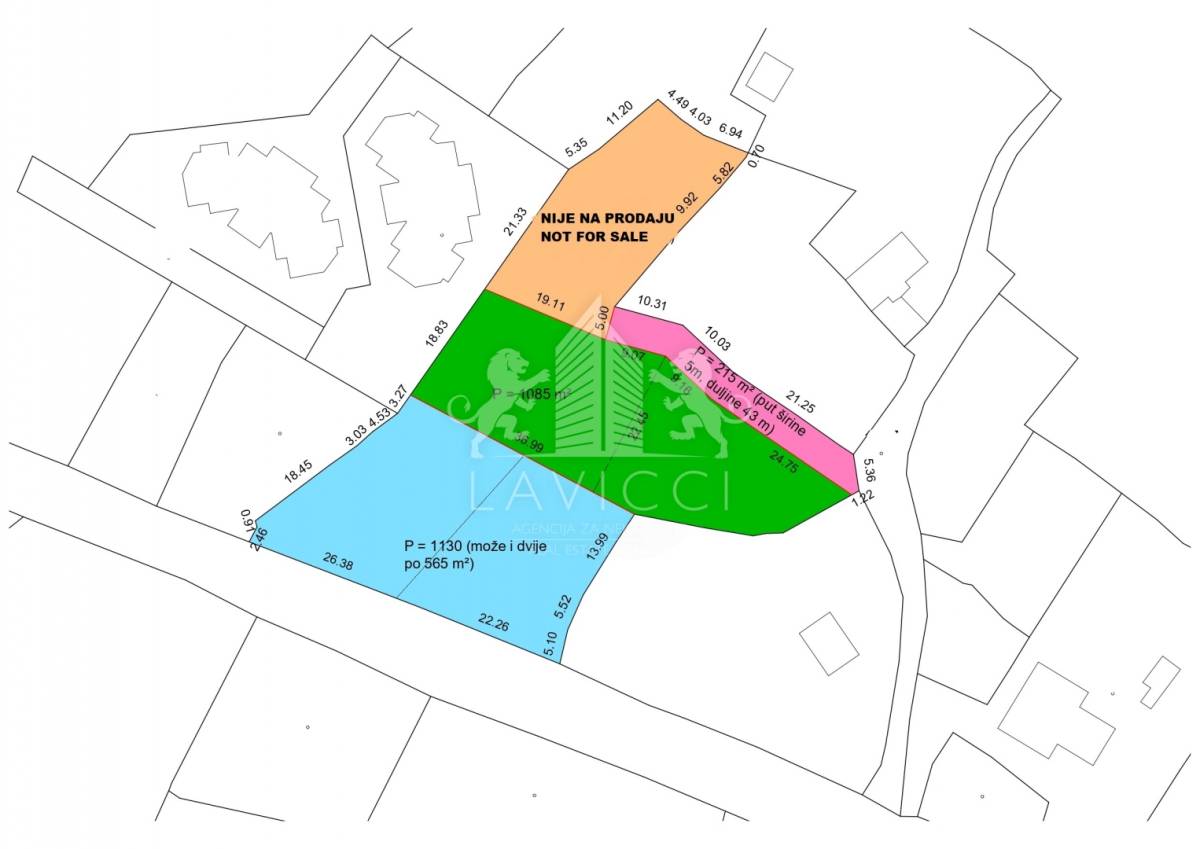
Na prodaju je građevinsko zemljište u mjestu Ždrelac na otoku Pašmanu, udaljeno svega 160 metara od mora i uređene plaže, s vrlo dobrim investicijskim potencijalom.

Ukupna površina zemljišta iznosi 2215 m², uz mogućnost kupnje u više varijanti:
- 1085 m² - cijena 225.000,00 €
- 1130 m² - cijena 235.000,00 €
- 2215 m² kao cjelina - cijena 443.000,00 €

Zemljište površine 1130 m² može se dodatno parcelirati na dvije građevinske čestice, čime se otvara mogućnost razvoja više stambenih objekata ili vila za turistički najam.

Prema važećem prostornom planu Općine Pašman, dozvoljena je gradnja stambenih zgrada tipa A i tipa B, što omogućuje izgradnju više stambenih jedinica ili apartmana.
Urbanistički uvjeti:
- Tip A
max. BRP nadzemnih etaža: 300 m² (do 450 m² s pomoćnim građevinama)
katnost: Po+P+1+Pk ili Po+S+P+1
max. visina: 9 m
do 3 stambene jedinice

Tip B
max. BRP nadzemnih etaža: 450 m² (do 600 m² s pomoćnim građevinama)
katnost: Po+P+2 ili Po+S+P+1+Pk
max. visina: 10,5 m
do 4 stambene jedinice

Infrastruktura se nalazi u neposrednoj blizini, a pristupni put je osiguran.
Zbog blizine mora, mogućnosti parcelacije i urbanističkih uvjeta, zemljište predstavlja zanimljivu investicijsku priliku za razvoj vila, apartmanskog objekta ili manjeg stambenog projekta.
Lokacija omogućuje brz pristup Zadru, dok most između otoka Pašmana i Ugljana osigurava dobru prometnu povezanost.

Vlasništvo uredno, 1/1.

ID KOD AGENCIJE: 812

Antonio Gabre
Agent s licencom
Mob: +385 91 344 7899
E-mail: [email protected]
www.lavicci-nekretnine.hr

Lokacija

close
Napomena: prikazana je točna lokacija

Dodatni podaci

Komunalije

  • Gradski vodovod
Oglas objavljen 06.03.2026. 00:00
Do isteka još 2 godine i 8 mjeseci
Pregleda 25

Slični oglasi Pogledaj sve oglase

Navedite razlog prijave oglasa

Podijeli oglas

Građevinsko zemljište Ždrelac – 160 m od mora, 1085 m²

Građevinsko zemljište Ždrelac – 160 m od mora, 1085 m²

ID oglasa: 112695

Cijena: 225.000,00 €

U usporedbi može biti maksimalno 4 oglasa. Uklonite 1 oglas kako bi dodali novi oglas u usporedbe

PROVJERI OGLASE