*EKSKLUZIVNO PRAVO POSREDOVANJA, RAŽANAC, KUĆA 142m2, OTVOREN POGLED!

Cijena: 520.000,00 €
ID oglasa: 74659

Osnovni podaci

Lokacija Zadarska, Ražanac, Ražanac
Tip kuće Samostojeća
Stambena površina 142 m²
Broj etaža Prizemnica
Broj soba 8
Netto površina 380 m²
Površina okućnice 380 m²

Opis

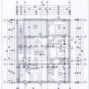
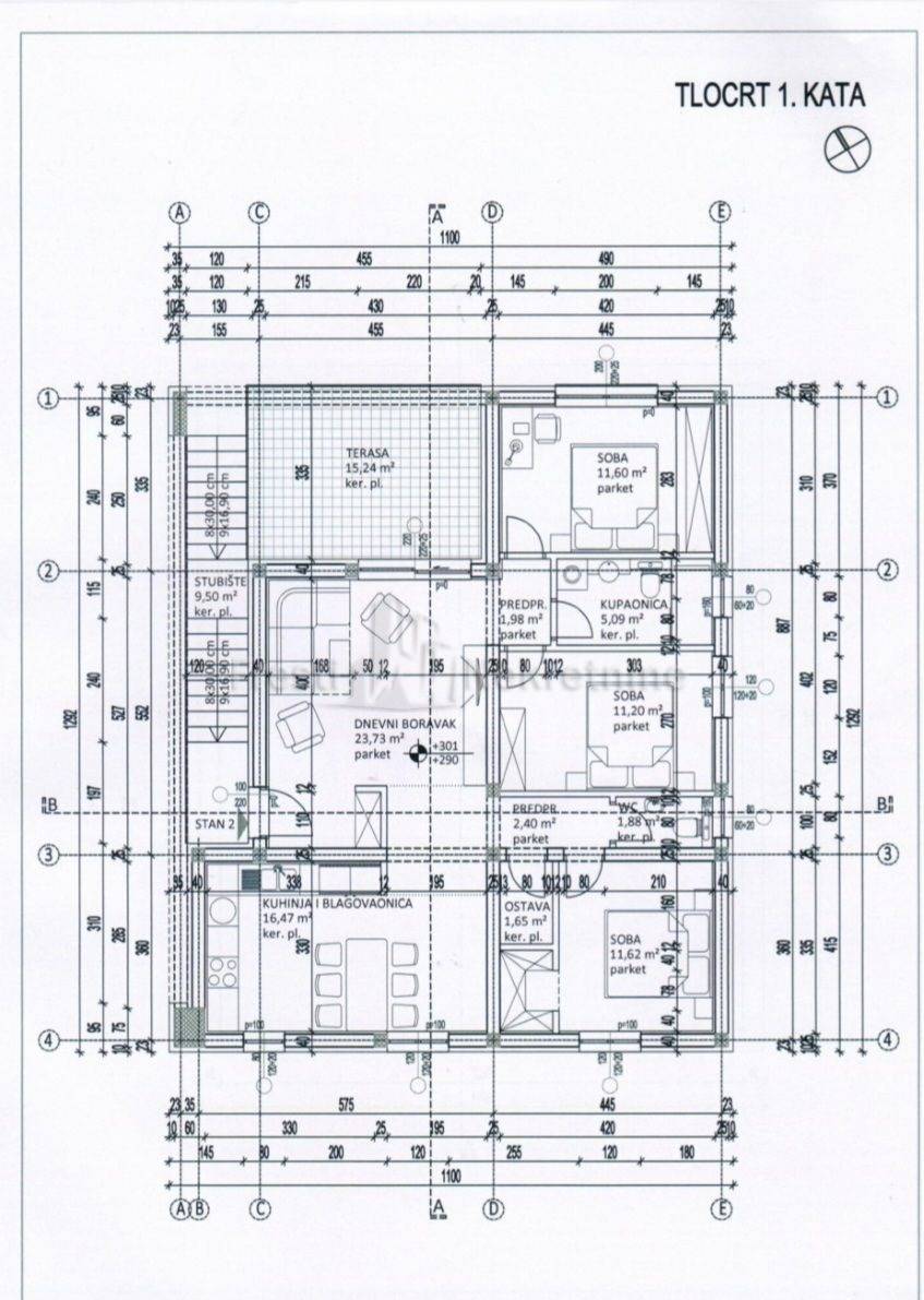
*EKSKLUZIVNA PRODAJA FRESTI NEKRETNINERAŽANAC - ATRAKTIVNA NOVOSAGRAĐENA I KOMPLETNO NAMJEŠTENA KATNICA POVRŠINE 142m2 NA PARCELI OD 522m2OTVOREN POGLED NA MORE I VELEBIT! KOMPLETNO NAMJEŠTENO KVALITETNIM NAMJEŠTAJEM I KUHINJSKIM PRIBOROM!ODMAH USELJIVO!DOKUMENTACIJA UREDNA, VLASNIŠTVO 1/1, NEMA TERETA!_______________________________________________________Prodaje se atraktivna kuća katnica površine 142 m2, sagrađena na parceli od 522 m2. Kompletno je namještena i opremljena svim potrebnim za ugodan boravak, odmor ili bavljenje turističkom djelatnošću. _______________________________________________________Sastoji se od potpuno identičnog prizemlja i kata ( tlocrti priloženi)Svaki kat se sastoji od 3 spavaće sobe površine cca. 12 m2, dnevnog boravka površine 23,73 m2, kuhinje i blagavaonice 16,47 m2, kupaonice s predprostorom od cca.7m2, terase od 15,24m2 i ostave 1,65 m2. Dakle, ova moderna kuća ima sveukupno 6 spavaćih soba, dva dnevna boravka s blagavaonicama i kuhinjama, dvije kupaonice, dvije ostave, dvije terase i više parkirnih mjesta na okućnici površine 380m2._______________________________________________________Za sve ostale informacije, obilazak, rezervaciju te kupoprodaju ove Nekretnine obratite nam se s povjerenjem._______________________________________________________RADNO VRIJEME: od ponedjeljka do petka između 8:00 i 16:00 sati, subotom od 09:00 do 13:00 sati._______________________________________________________Unaprijed se zahvaljujemo na razumijevanju i suradnji,S poštovanjem.Vaš Fresti teamFRESTI NekretninePut Bokanjca 29, 23000 Zadarmob.: +385 95 860 66 22e-mail: [email protected] NAPOMENA: kat. brojeve zem. čestica ne dajemo na upit dok se ne potpiše klauzula

Lokacija

close
Napomena: Prikazana je približna lokacija

Dodatni podaci

Balkon/Lođa/Terasa

  • Balkon
  • Lođa (Loggia)

Ostali objekti i površine

  • Spremište/šupa

Vrsta parkinga

  • Vanjsko ne-natkriveno mjesto

Dozvole i potvrde

  • Vlasnički list

Kontakt podaci

Adresa 23000, Hrvatska nazovi 095/860-6622 Poruka Pošalji privatnu poruku
Verifikacija Korisnik je verificirao broj telefona u državi: Hrvatska
Oglas objavljen 20.10.2025. 10:09
Do isteka još 2 godine i 8 mjeseci
Pregleda 84

Slični oglasi Pogledaj sve oglase

Navedite razlog prijave oglasa

Podijeli oglas

*EKSKLUZIVNO PRAVO POSREDOVANJA, RAŽANAC, KUĆA 142m2, OTVOREN  POGLED!

*EKSKLUZIVNO PRAVO POSREDOVANJA, RAŽANAC, KUĆA 142m2, OTVOREN POGLED!

ID oglasa: 74659

Cijena: 520.000,00 €

U usporedbi može biti maksimalno 4 oglasa. Uklonite 1 oglas kako bi dodali novi oglas u usporedbe

PROVJERI OGLASE