Dvosobni apartman s vrtom, novogradnja - Vir, Jadro

Cijena: 320.000,00 €
ID oglasa: 111255

Osnovni podaci

Lokacija Zadarska, Vir, Vir
Tip stana u kući
Stambena površina 85,59 m²
Broj etaža 2
Broj soba Garsonijera
Kat Prizemlje
Netto površina 85,59 m²
Godina izgradnje 2025
Ukupni broj katova u zgradi 2
Energetski razred A+
Broj vlastitih parkirnih mjesta 1
Klima uređaj DA

Opis

Na prodaju je moderan dvosoban apartman u prizemlju novogradnje na otoku Viru, smješten na izuzetnoj lokaciji svega 300 m od mora i plaže te 500 m od centra Vira, u mirnoj i slijepoj ulici u neposrednoj blizini glavne plaže Jadro.

Ovaj apartman Vir prizemlje s vrtom idealan je izbor za kupce koji traže kvalitetnu nekretninu blizu mora za osobno korištenje, miran obiteljski život ili kao investiciju za turistički najam.

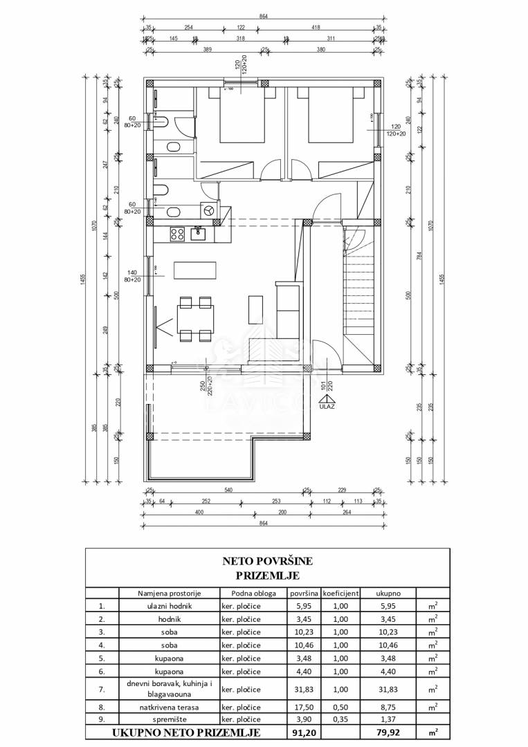
Ukupna tlocrtna površina stana iznosi 85,25 m², a funkcionalan raspored uključuje hodnik, dvije spavaće sobe od kojih jedna ima vlastitu kupaonicu, dodatnu kupaonicu, kuhinju s blagovaonicom i dnevnim boravkom te natkrivenu terasu s izlazom u privatni vrt. Posebnu vrijednost ovog stana na Viru čini vrt površine 41,20 m², koji omogućuje ugodan boravak na otvorenom i visoku razinu privatnosti.
Apartmanu pripada i spremište te vlastito vanjsko parkirališno mjesto.

Riječ je o kvalitetnoj novogradnji na Viru građenoj ciglenim termo blokom uz 10 cm termoizolacije fasade, što osigurava visoku energetsku učinkovitost i ugodan boravak tijekom cijele godine, uz očekivani energetski certifikat A. U cijelom apartmanu postavljena je keramika velikog formata 90 × 90 cm, dok su terase i vanjski dijelovi izvedeni s travertino kamenom, koji dodatno podiže vizualni dojam i modernizira cijeli objekt. Kupaonice su opremljene vrhunskom sanitarijom renomiranih proizvođača Geberit, Grohe i Aquaestil, a kompletni kupaonski namještaj rađen je po mjeri, čime se postiže visoka razina funkcionalnosti i estetike.
Stan je dodatno opremljen PVC stolarijom s troslojnim staklom, električnim ALU roletama i komarnicima, klima uređajima u dnevnom boravku i spavaćim sobama te električnim podnim grijanjem u kupaonicama.
Ulazna vrata su protuprovalna i protupožarna, ugrađen je video portafon te LED rasvjeta u interijeru i na terasi, dok sve terase imaju pripremu za jacuzzi.

Otok Vir jedno je od najtraženijih područja za kupnju apartmana u Zadarskoj županiji zbog blizine mora, dobre prometne povezanosti i razvijene infrastrukture za cjelogodišnje stanovanje i turizam, a istovremeno nudi mir i privatnost, osobito na lokacijama poput ove slijepe ulice bez prometa.

Nekretninu prodaje pravna osoba te kupac ne plaća porez na promet nekretnina i spremna je za upis vlasništva, što ovu ponudu čini sigurnom i iznimno atraktivnom prilikom za kupnju prizemnog apartmana s vrtom na Viru blizu mora.

ID KOD AGENCIJE: 807

Antonio Gabre
Agent s licencom
Mob: +385 91 344 7899
E-mail: [email protected]
www.lavicci-nekretnine.hr

Lokacija

close
Napomena: prikazana je točna lokacija

Dodatni podaci

Podaci o objektu

  • Gradski vodovod
  • Gradska kanalizacija

Funkcionalnosti i karakteristike

  • Video Portafon

Dozvole i potvrde

  • Građevinska dozvola
Oglas objavljen 26.02.2026. 00:00
Do isteka još 2 godine i 8 mjeseci
Pregleda 29

Slični oglasi Pogledaj sve oglase

Navedite razlog prijave oglasa

Podijeli oglas

Dvosobni apartman s vrtom, novogradnja - Vir, Jadro

Dvosobni apartman s vrtom, novogradnja - Vir, Jadro

ID oglasa: 111255

Cijena: 320.000,00 €

U usporedbi može biti maksimalno 4 oglasa. Uklonite 1 oglas kako bi dodali novi oglas u usporedbe

PROVJERI OGLASE