Apartman sa bazenom

Cijena: 301.000,00 €
ID oglasa: 60443

Osnovni podaci

Lokacija Primorsko-goranska, Baška, Batomalj
Tip stana u kući
Stambena površina 61,50 m²
Broj etaža Jednoetažni
Broj soba Garsonijera
Kat Suteren
Netto površina 61,50 m²
Energetski razred A
Klima uređaj DA

Opis

Prodajemo apartman u Batomlju nadomak Baške sa otvorenim pogledom na more.
Apartman se nalazi u etažiranoj kući koja je kompletno renovirana 2025. Nove instalacije vode, struje, pločice, preuređene kupaone.
U sklopu objekta se nalazi 6 apartmana koji svi imaju zajedničko korištenje uređene okućnice i bazena u dvorištu. Parkiranje u sklopu okućnice.
Grijanje na klime.
Prekrasan pogled na kanal i odlična prilika za investiciju.

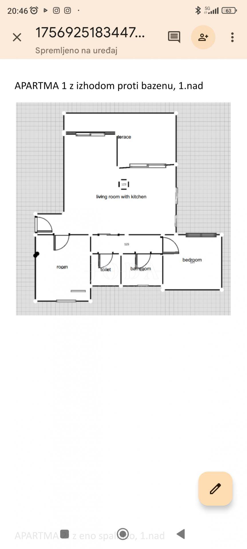
Apartman u prizemlju se sastoji od kuhinje i dnevnog boravka, degažmana, dvije sobe, kupaonice, wc-a, loggie i nenatkrivene terase

ID KOD AGENCIJE: 7100

Stjepan Vrsalović, mag.oec.
Agent s licencom
Mob: 0914848887
Tel: 051403771
E-mail: [email protected]
www.joda-nekretnine.hr

Lokacija

close
Napomena: prikazana je točna lokacija

Dodatni podaci

Podaci o objektu

  • Gradski vodovod
  • Gradska kanalizacija

Balkon/Lođa/Terasa

  • Terasa
Oglas objavljen 03.09.2025. 00:00
Do isteka još 2 godine i 2 mjeseca
Pregleda 129

Slični oglasi Pogledaj sve oglase

Navedite razlog prijave oglasa

Podijeli oglas

Apartman sa bazenom

Apartman sa bazenom

ID oglasa: 60443

Cijena: 301.000,00 €

U usporedbi može biti maksimalno 4 oglasa. Uklonite 1 oglas kako bi dodali novi oglas u usporedbe

PROVJERI OGLASE