ZAGREB/STENJEVEC//MODERAN STAN NOVOGRADNJA 97,6M2 u zgradi sa 3 stana

Cijena: 295.000,00 €
ID oglasa: 70500

Osnovni podaci

Lokacija Zagreb, Stenjevec, Jankomir
Tip stana u stambenoj zgradi
Stambena površina 97 m²
Broj etaža 2
Broj soba Garsonijera
Kat 1. kat
Netto površina 97 m²
Godina izgradnje 2025
Ukupni broj katova u zgradi 2
Energetski razred A+
Broj vlastitih parkirnih mjesta 1
Klima uređaj DA

Opis

Prodaje se useljiv moderan stan u novogradnji, Jankomir, u neposrednoj blizini stare Samoborske.
Zgrada ima tri etaže - 3 stana raspoređenih na 3 tri etaže, svaka etaža jedan stan
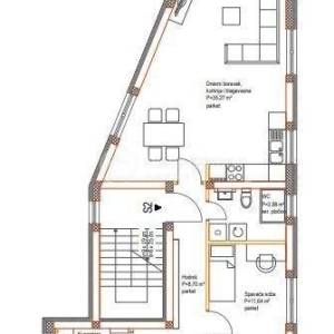
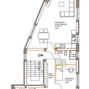
Posebni vlasnički dio Stan S2 ukupne korisne površine 91,30 m2, nalazi se na prvom katu
zgrade kojeg čine; hodnik, kupaonica, tri spavaće sobe, WC, dnevni boravak, blagovaonica i
kuhinja (tlocrt prvog kata), protegnuto na sporedni dio; lođa ukupne korisne površine 8,50 m2
parkirno mjesto ukupne korisne površine 12,50 m2.
Vrlo poželjna mirna lokacija.
U blizini su razni sadržaji: trgovine, trgovački centri, ugostiteljski objekti.
Sava, priroda i zelenilo, automobilom se dolazi na nasip za manje od 5 minuta.
U blizini su autobusna stajališta i željeznička stanica.
U susjedstvu prevladavaju kuće, niže stambene zgrade i poslovni prostori.
Ova nekretnina pruža priliku za udoban i luksuzan život u urbanom okruženju, a istovremeno vam omogućuje bijeg od gradske vreve kad god to poželite.

Stan obogaćen prirodnim svjetlom zahvaljujući velikim prozorima.

U gradnji su vrlo visokokvalitetni i najmoderniji materijali.
Fasada je debljine 15 cm.
Keramičke pločice visoke kvalitete.
Dizalica topline i podno grijanje.
Optički internet doveden do ulaza u stan.
Električne rolete na svakom prozoru uz dodatak za ugradnju komarnika.
Protuprovalno-protupožarna dimonepropusna ulazna vrata.
Antracit vanjska stolarija.
Smart slide izlazna klizna staklena stijena na loggiu.
Stan je useljiv.
Dokumentacija je uredna.

U cijenu je uključen PDV i kupac ne plaća porez na promet nekretninama.*

Uz stan dolazi vanjsko parkirno mjesto uključeno u cijenu**

Stojim na raspolaganju za sva pitanja i informacije :)

Ksenija Capan
Agent sa licencom
Idila Home Nekretnine
0993873973

ID KOD AGENCIJE: 1070

Ksenija Capan
Agent
Mob: 00385993873973
Tel: 012034555
E-mail: [email protected]
www.idilahomenekretnine.hr

Lokacija

close
Napomena: prikazana je točna lokacija

Dodatni podaci

Podaci o objektu

  • Gradski vodovod

Funkcionalnosti i karakteristike

  • Video Portafon

Dozvole i potvrde

  • Građevinska dozvola
Oglas objavljen 09.07.2025. 00:00
Do isteka još 2 godine i 8 mjeseci
Pregleda 11

Slični oglasi Pogledaj sve oglase

Navedite razlog prijave oglasa

Podijeli oglas

ZAGREB/STENJEVEC//MODERAN STAN NOVOGRADNJA 97,6M2 u zgradi sa 3 stana

ZAGREB/STENJEVEC//MODERAN STAN NOVOGRADNJA 97,6M2 u zgradi sa 3 stana

ID oglasa: 70500

Cijena: 295.000,00 €

U usporedbi može biti maksimalno 4 oglasa. Uklonite 1 oglas kako bi dodali novi oglas u usporedbe

PROVJERI OGLASE