Zagreb-Vrbik, 1S stan 46m2 u energetski obnovljenoj zgradi, II. kat

Cijena: 236.000,00 €
ID oglasa: 77318

Osnovni podaci

Lokacija Zagreb
Tip stana u stambenoj zgradi
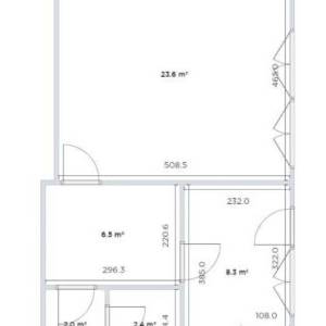
Stambena površina 46 m²
Broj etaža 4
Broj soba 1
Kat 2. kat
Ukupni broj katova u zgradi 4
Sustav grijanja Etažno plinsko centralno
Energetski razred A

Opis

Posredujemo pri prodaji jednosobnog stana površine 46m2, na drugom katu zgrade, Vrbik.
Stan se sastoji od hodnika, kuhinje s blagovaonom s izlazom na balkon, dnevnog boravka/sobe te kupaonice.
PVC stolarija, nova kuhinja, namještaj u cijeni. 
Grijanje etažno plinsko centralno.
Blizina trgovina, dječjeg vrtića, gimnazije i fakulteta...javni prijevoz tramvaj (2 min.).
Vlasništvo 1/1, dokumentacija uredna.
Stan je dostupan za razglede uz prethodni dogovor o terminu na kontakt broj telefona 095 1962 918 ili na e-mail: [email protected].
 

Lokacija

close
Napomena: Prikazana je približna lokacija

Dodatni podaci

Podaci o objektu

  • Gradski vodovod
  • Gradska kanalizacija
  • Gradski plin

Alternativni izvori energije

  • Toplinske pumpe

Funkcionalnosti i karakteristike

  • Kada
  • Video Portafon
Oglas objavljen 01.10.2025. 11:41
Do isteka još 2 godine i 8 mjeseci
Pregleda 42

Slični oglasi Pogledaj sve oglase

Navedite razlog prijave oglasa

Podijeli oglas

Zagreb-Vrbik, 1S stan 46m2 u energetski obnovljenoj zgradi, II. kat

Zagreb-Vrbik, 1S stan 46m2 u energetski obnovljenoj zgradi, II. kat

ID oglasa: 77318

Cijena: 236.000,00 €

U usporedbi može biti maksimalno 4 oglasa. Uklonite 1 oglas kako bi dodali novi oglas u usporedbe

PROVJERI OGLASE