Zagreb, Malešnica, ulica Ante Topića Mimare, komforan trosoban ured

Cijena: 1.600,00 €
ID oglasa: 54884

Osnovni podaci

Lokacija Zagreb
Pozicija Ulični lokal
Kat 2
Površina 120 m²
Godina izgradnje 2018
Godina zadnje adaptacije 2025
Energetski razred A

Opis

Malešnica
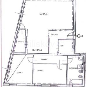
Poslovni prostor ukupne površine 120 m2 na 2. katu zgrade građene 2000. godine 
Sastoji se od ulaznog dijela, 3 sobe, wc-a, kupaonice te loggie. Prostor se nalazi na odličnoj lokaciji u blizini svih bitnih sadržaja.
Iznajmljuje se nenamješten, a odličan raspored omogućuje korištenje ove nekretnine u različite svrhe.  Parking je besplatan u dvorištu zgrade.
 
Grijanje: centralno etažno plinsko
Orijentacija: istok, zapad, jug
Cijena:  1600,00 € + režije + polog u visini jedne mjesečne najamnine
 
Posrednička naknada iznosi jednu mjesečnu najamninu + PDV
www.bilskov.com   ID – 9138
 pogledajte virtualnu šetnju kroz nekretninu:
https://360.biliskov.hr/virtual-tour/9138/index.html
 
  

Lokacija

close
Napomena: prikazana je točna lokacija

Dodatni podaci

Dodatni podaci

  • protuprovalna vrata
Oglas objavljen 29.11.2018. 16:30
Do isteka još 2 godine i 8 mjeseci
Pregleda 75

Slični oglasi Pogledaj sve oglase

Navedite razlog prijave oglasa

Podijeli oglas

Zagreb, Malešnica, ulica Ante Topića Mimare, komforan trosoban ured

Zagreb, Malešnica, ulica Ante Topića Mimare, komforan trosoban ured

ID oglasa: 54884

Cijena: 1.600,00 €

U usporedbi može biti maksimalno 4 oglasa. Uklonite 1 oglas kako bi dodali novi oglas u usporedbe

PROVJERI OGLASE