ZADAR, PRIVLAKA - Nevjerojatan Dvoetažni Penthouse s Prostranom Krovnom Terasom 120 Metara od Mora s Očaravajućim Pogledom na M...

Cijena: 454.965,00 €
ID oglasa: 62777

Osnovni podaci

Lokacija Zadarska, Privlaka, Privlaka
Tip stana u stambenoj zgradi
Stambena površina 129,99 m²
Broj etaža 2
Broj soba Garsonijera
Kat 1. kat
Netto površina 129,99 m²
Godina izgradnje 2024
Ukupni broj katova u zgradi 2
Klima uređaj DA

Opis

ZADAR, PRIVLAKA - Nevjerojatan Dvoetažni Penthouse s Prostranom Krovnom Terasom 120 Metara od Mora s Očaravajućim Pogledom na More! S7

Uronite u svijet luksuza i elegancije u ovom nevjerojatnom dvoetažnom penthouseu koji nudi spektakularni pogled na Jadransko more. Smješten samo 120 metara od blistave plaže, ovaj penthouse pruža savršen spoj modernog dizajna i prirodne ljepote, stvarajući idealan prostor za uživanje u životu na obali.

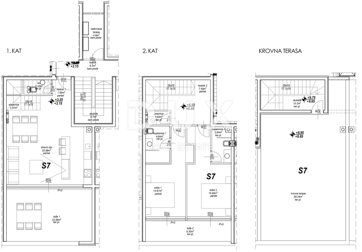
Ovaj raskošni penthouse prostire se na 129,99 m2 neto stambene površine, pažljivo dizajniran kako bi vam ponudio savršen balans između elegancije i funkcionalnosti. Na prvoj etaži, dočekat će vas prostrani dnevni boravak, ispunjen prirodnim svjetlom zahvaljujući velikim staklenim površinama koje omogućuju pogled na more. Ovdje je svaki trenutak poseban, bilo da se opuštate sami ili u društvu svojih najdražih. Na istoj etaži nalazi se i elegantno dizajnirani WC, savršeno usklađen s modernim interijerom.

Penjući se na drugu etažu, dolazite do prostora koji je pravi raj za odmor. Dvije prostrane spavaće sobe odišu sofisticiranošću i komforom, savršene za opuštanje nakon dugog dana. Svaka spavaća soba ima svoju luksuznu kupaonicu, opremljenu najmodernijim sanitarijama koje zadovoljavaju i najzahtjevnije ukuse. Ovdje možete osjetiti vrhunski nivo udobnosti, dok svaki detalj pridonosi osjećaju topline i elegancije.

Jedinstvena krovna terasa površine 59,24 m2 apsolutni je dragulj ovog penthousea, pružajući vam nesmetan pogled na more i zapanjujuće zalaske sunca koji će oduzeti dah. Ovo je savršeno mjesto za uživanje u opuštajućim večerima pod zvjezdanim nebom ili za organiziranje nezaboravnih druženja s obitelji i prijateljima.

Penthouse se može pohvaliti s dvije prostrane lođe koje proširuju vaš životni prostor prema vani, omogućujući vam uživanje u povjetarcu s mora i veličanstvenom pogledu na okolinu. Lođe su savršene za jutarnju kavu, opuštanje s knjigom ili večernje uživanje u prirodnom okruženju.

Sve prostorije su klimatizirane, a podno grijanje proteže se kroz cijeli penthouse, osiguravajući vam ugodnu atmosferu tijekom cijele godine. Električne roletne i komarnici na PVC stolariji jamče jednostavnost korištenja i zaštitu od neželjenih vanjskih utjecaja, dok vrhunska kvaliteta gradnje i specifična arhitektura zgrade naglašavaju ekskluzivnost ovog prostora.

Penthouse dolazi s jednim parkirnim mjestom, što je dragocjena pogodnost u ovom području. Planirani završetak gradnje predviđen je za proljeće 2026. godine, pružajući vam dovoljno vremena da isplanirate svoje savršeno preseljenje u ovu oazu luksuza.

Nemojte propustiti priliku postati vlasnikom ovog nevjerojatnog penthousea! Kontaktirajte nas danas kako biste saznali više o ovoj jedinstvenoj prilici za život iz snova na Jadranskoj obali. Pozovite nas i rezervirajte svoj komad luksuza koji ćete s ponosom nazvati domom.

Poštovani klijenti, agencijska provizija naplaćuje se u skladu s Općim uvjetima poslovanja
www.dux-nekretnine.hr/opci-uvjeti-poslovanja

ID KOD AGENCIJE: 32293

Josip Šestan
Agent s licencom
Mob: +385 91 799 6986
Tel: +385 91 480 8808
E-mail: [email protected]
www.dux-dalmacija.com

Lokacija

close
Napomena: prikazana je točna lokacija

Dodatni podaci

Balkon/Lođa/Terasa

  • Terasa

Dozvole i potvrde

  • Građevinska dozvola
Oglas objavljen 23.07.2024. 00:00
Do isteka još 2 godine i 8 mjeseci
Pregleda 19

Slični oglasi Pogledaj sve oglase

Navedite razlog prijave oglasa

Podijeli oglas

ZADAR, PRIVLAKA - Nevjerojatan Dvoetažni Penthouse s Prostranom Krovnom Terasom 120 Metara od Mora s Očaravajućim Pogledom na M...

ZADAR, PRIVLAKA - Nevjerojatan Dvoetažni Penthouse s Prostranom Krovnom Terasom 120 Metara od Mora s Očaravajućim Pogledom na M...

ID oglasa: 62777

Cijena: 454.965,00 €

U usporedbi može biti maksimalno 4 oglasa. Uklonite 1 oglas kako bi dodali novi oglas u usporedbe

PROVJERI OGLASE