ZADAR- BORIK- NOVOGRADNJA- JEDNOSOBAN 45,28, OSTAVA,PARKING

Cijena: 181.080,00 €
ID oglasa: 74679

Osnovni podaci

Lokacija Zadarska, Zadar
Tip stana u stambenoj zgradi
Stambena površina 45,28 m²
Broj etaža Jednoetažni
Broj soba 2
Kat Prizemlje

Opis

ZADAR -BORIK - NOVOGRADNJA - JEDNOSOBAN STAN 45,28 m2 , OSTAVA, PARKING, TOP LOKACIJA!
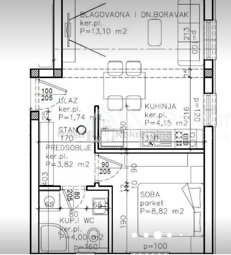
U prodaji su stanovi u novogradnji na odličnoj lokaciji u Zadru, na području Borika, u blizini svih sadržaja koji su potrebni za svakodnevni život, kao i uređenih plaža. Stan se nalazi u višestambenoj zgradi sa ukupno 9 stanova, koja ima četiri etaže i to; podrum, prizemlje, prvi i drugi kat. U podrumu se nalaze ostave, a na okućnici zgrade su smještena parkirališna mjesta za stanare. Zgrada je trenutno u izgradnji, a završetak građevinskih zadova planiran je do ljeta 2026. godine. OPREMA ZGRADE: - Cigleno-betonska konstrukcija zgrade - Termofasada / Stiropor - 10 cm - Spremišta/Ostave u podrumu zgrade - PVC stolarija s ugrađenim komarnicima - Rolete sa elektro-podizačima - Stubište obloženo kamenom - Podizno-klizne velike staklene stijene PRIZEMLJE S2 - Stan s jednom spavaćom sobom Stan se nalazi u prizemlju zgrade, a sastoji se od: - Ulaznog prostora / hodnika (1,74 m2), - Kuhinje (4,15 m2), - Dnevnog boravka s blagovaonicom (13,10 m2) - Spavaće sobe (8,82 m2), - Kupaonice (4,00 m2), - Predsoblja (3,82 m2). Unutarnji prostor stana zauzima korisnu površinu od 35,63 m2. U podrumu zgrade se nalazi prostrano spremište (13,78 m2), a na okućnici zgrade je jedno vanjsko parkirno mjesto koje pripada stanu. Ukupna obračunska neto vrijednost korisne površine stana s pripadcima iznosi 45,28 m2. OPREMA STANA: - Potuprovalna i vatrootporna ulazna vrata s obuhvatnim štokovima - Podno grijanje na struju instalirano u cijelom stanu - Kvalitetne sanitarije - Hlađenje / Grijanje putem klimatizacijskih uređaja - koji su postavljeni u svim prostorijama - Postoji mogućnost odabira podnih obloga (parketi i pločice) unutar zadanog budgeta Plaćanje prvog dijela iznosa je 10 % od cijene nekretnine (kapara), a za ostatak iznosa postoji opcija financiranja stambenim kreditom. PREDNOST kod kupovine ove nekretnine je to, što je investitor pravna osoba, pa stoga kupac NE PLAĆA porez na promet nekretninama. Zbog velike potražnje rezervirajte svoj stan na vrijeme. _______________________________________________________
Za sve ostale informacije, obilazak, rezervaciju te kupoprodaju ove Nekretnine obratite nam se s povjerenjem.
RADNO VRIJEME: od ponedjeljka do petka između 8:00 i 16:00 sati, subotom od 09:00 do 13:00 sati.
Unaprijed se zahvaljujemo na razumijevanju i suradnji,
S poštovanjem.
Vaš Fresti team
FRESTI Nekretnine
Put Bokanjca 29, 23000 Zadar
mob.: +385 95 860 66 22
e-mail: [email protected]
NAPOMENA: kat. brojeve zem. čestica ne dajemo na upit dok se ne potpiše klauzula za zaštitu podataka GDPR.
LOKACIJA: Lokacija objekta je odlična zbog blizine mora cca. 650 m i plaže cca. 800 m, i svih sadržaja potrebnih za svakodnevni život, udaljenost do centra grada je cca. 2,5 km, a od zračne luke Zemunik je cca. 12 km. BORIK je poznat kao dio grada Zadra sa najljepšim plažama, a smješten je uz samu obalu s obiljem smještaja za odmor i različitih sadržaja. Duga lokalna šetnica na kojoj je uređena plaža, vodi prema lokalnim marinama i lučicama, a sa šljunčane obale pruža se pogled na otoke zadarskog arhipelaga. Kilometarski duga plaža Borik nalazi se 4 km sjeverno od centra grada, u blizini istoimene male marine. Plaža s finim šljunkom i pjeskovitim odjeljcima omiljena je i među djecom i među odraslima, jer obala koja blago pada u kristalno čisto more, kao i mogućnosti za rekreaciju, obećavaju zabavu u vodi i na obali. Plava zastava jamči za visoku kvalitetu vode i plaže. Grad Zadar je smješten u samom središtu Jadranske obale, odlikuje se blagom mediteranskom klimom, a okružen je sa 4 Nacionalna parka (Plitvička jezera, Paklenica, slapovi Krke i arhipelag otoka Kornati). Zadarska zračna luka udaljena je svega 12 km od centra grada i odlično je povezana sa mnogim europskim gradovima i destinacijama. Trajektna luka Zadar udaljena cca. 6 km, ima linije sa većinom otoka, a tijekom ljetne sezone je stanica brojnim turističkim cruiserima.

Lokacija

close
Napomena: Prikazana je približna lokacija

Dodatni podaci

Ostali objekti i površine

  • Spremište/šupa
  • Podrum

Vrsta parkinga

  • Vanjsko ne-natkriveno mjesto

Dozvole i potvrde

  • Vlasnički list

Kontakt podaci

Adresa 23000, Hrvatska nazovi 095/860-6622 Poruka Pošalji privatnu poruku
Verifikacija Korisnik je verificirao broj telefona u državi: Hrvatska
Oglas objavljen 20.10.2025. 10:09
Do isteka još 2 godine i 8 mjeseci
Pregleda 39

Slični oglasi Pogledaj sve oglase

Navedite razlog prijave oglasa

Podijeli oglas

ZADAR- BORIK- NOVOGRADNJA- JEDNOSOBAN 45,28, OSTAVA,PARKING

ZADAR- BORIK- NOVOGRADNJA- JEDNOSOBAN 45,28, OSTAVA,PARKING

ID oglasa: 74679

Cijena: 181.080,00 €

U usporedbi može biti maksimalno 4 oglasa. Uklonite 1 oglas kako bi dodali novi oglas u usporedbe

PROVJERI OGLASE