Vrbnik

Cijena: 0,00 €
ID oglasa: 60397

Osnovni podaci

Lokacija Primorsko-goranska, Vrbnik, Vrbnik
Tip kuće Samostojeća
Stambena površina 333 m²
Broj etaža Katnica
Broj soba 1
Netto površina 333 m²
Površina okućnice 800 m²
Godina izgradnje 2026
Energetski razred A
Klima uređaj DA
Pogled na more DA

Opis

Prodajemo modernu vilu u izgradnji, na atraktivnoj i mirnoj lokaciji u Vrbniku.
Ova luksuzna nekretnina uz vrhunsku opremu i uređenje nudi privatnost i komfor te prekrasan pogled na more i stari grad Vrbnik. Prilikom projektiranja posebno se pazilo na detalje da zadovolji najviše standarde kako za stanovanje tako i za turistički najam, prostrane i funkcionalne prostorije gdje se osim na arhitektonska rješenja vodilo računa da svaka prostorija ima otvoreni pogled na more.

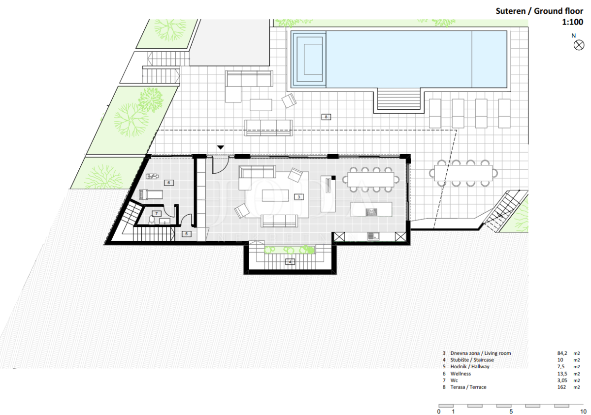
U prizemlju se nalaz prostrani dnevni boravak sa kuhinjom i blagovaonom te wellness. velike staklene stijene osim obilja svjetla pružaju direktan izlaz na uređenu okućnicu sa grijanim bazenom i jacuzzijem te prostranu terasa sa sunčalištem.

Na prvom katu se nalazi raskošno uređene četiri spavaće sobe svaka sa svojom kupaonicom te garderobe.

Na drugom katu smještene su još dvije spavaće sobe, svaka sa svojom kupaonicom garderobe i balkoni.

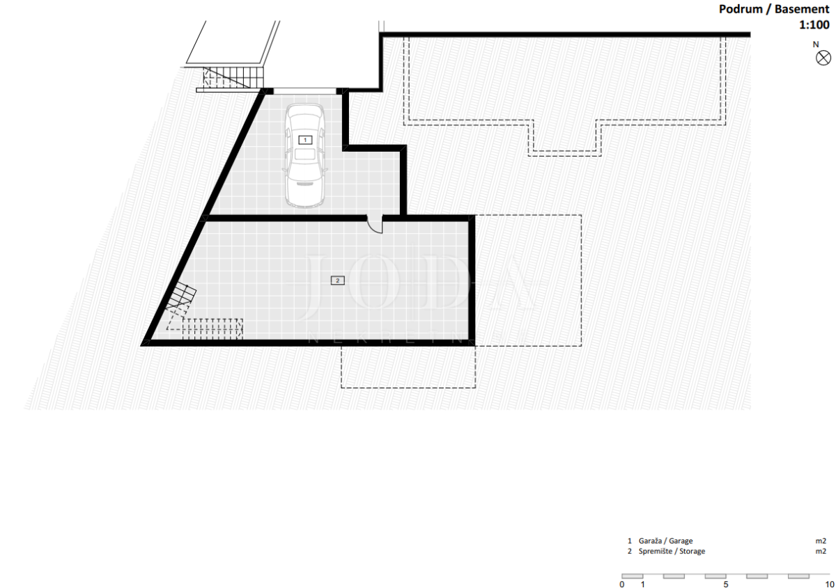
Vila ima osigurana četiri parkirna mjesta, a prodaje se dovršena i spremna za useljenje ili turistički najam. U trenutnoj fazi radova kupac još uvijek može sugerirati estetske izmjene u odabiru interijera, što daje mogućnost personalizacije prostora prema vlastitom ukusu.

Novoizgrađena vila je savršena prilika za sve koji traže elegantan dom ili kuću za odmor na vrhunskoj lokaciji ili može biti izvrsna investicija za turistički najam.

ID KOD AGENCIJE: 7134

Stjepan Vrsalović, mag.oec.
Agent s licencom
Mob: 0914848887
Tel: 051403771
E-mail: [email protected]
www.joda-nekretnine.hr

Lokacija

close
Napomena: prikazana je točna lokacija

Dodatni podaci

Podaci o objektu

  • Gradski vodovod

Balkon/Lođa/Terasa

  • Terasa

Dozvole i potvrde

  • Građevinska dozvola
Oglas objavljen 16.09.2025. 00:00
Do isteka još 2 godine i 2 mjeseca
Pregleda 107

Slični oglasi Pogledaj sve oglase

Navedite razlog prijave oglasa

Podijeli oglas

Vrbnik

Vrbnik

ID oglasa: 60397

Cijena: 0,00 €

U usporedbi može biti maksimalno 4 oglasa. Uklonite 1 oglas kako bi dodali novi oglas u usporedbe

PROVJERI OGLASE