Vrbnik – ekskluzivna vila s bazenom, okružena šumom!

Cijena: 1.560.000,00 €
ID oglasa: 70938

Osnovni podaci

Lokacija Primorsko-goranska, Vrbnik, Vrbnik
Tip kuće Samostojeća
Stambena površina 410 m²
Broj etaža Prizemnica
Broj soba 1
Netto površina 410 m²
Površina okućnice 0 m²
Godina izgradnje 2025
Energetski razred A+
Broj vlastitih parkirnih mjesta 4
Klima uređaj DA

Opis

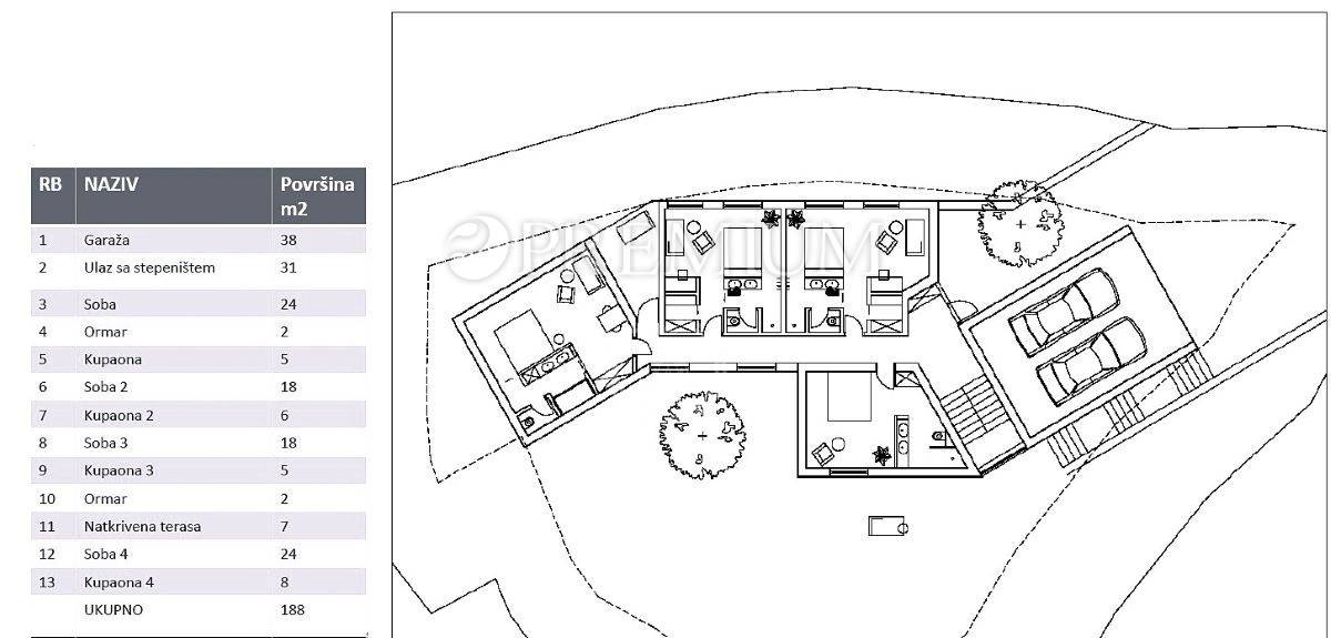
Vrbnik, okolica, prodaje se moderno projektirana, samostojeća vila vrhunske kvalitete gradnje, smještena u potpunoj privatnosti i miru, u okruženju hrastove šume. Objekt je novoizgrađen (2025.) i prostire se na dvije etaže – suteren i prizemlje, ukupne stambene površine 410 m².

U suterenu se nalaze konoba, WC, sauna s wellness zonom, spavaća soba s vlastitom kupaonicom, te open space dnevni boravak s kuhinjom i blagovaonicom, s izlazom na natkrivenu i nenatkrivenu terasu.

Unutarnjim stepeništem dolazi se na prizemlje, koje se sastoji od hodnika i četiri spavaće sobe, svaka sa svojom kupaonicom.

Vila ima garažu za dva automobila, uz mogućnost dodatnog parkiranja na okućnici. Okućnica je uređena mediteranskim biljem, a na njoj se nalaze bazen (16 x 2 m), sunčalište, roštilj i vanjska kuhinja.

Kuća je projektirana s pažnjom na funkcionalnost i udobnost, s modernim linijama i tradicionalnim elementima poput kamena i drva. Opremljena je vrhunskim materijalima: PVC stolarija s troslojnim staklom, podno grijanje putem dizalice topline, podne obloge od keramike i parketa, alarmni sustav, video nadzor i SAT TV.

Orijentirana prema šumi, vila pruža prekrasan pogled na prirodu i potpunu privatnost. Udaljenost od mora iznosi oko 1 km.

Zahvaljujući mirnoj lokaciji, visokim standardima gradnje i spoju moderne arhitekture i prirodnog okruženja, ova nekretnina predstavlja iznimnu priliku za obiteljski odmor ili investiciju u luksuzni turizam.

Za više informacija i dogovor termina razgledavanja kontaktirajte:
Premium Nekretnine Malinska – Vaš pouzdani partner za nekretnine na otoku Krku.
Telefon: +385 51 858 364, E-mail: [email protected]
Malinska, Dubašljanska 76

ID KOD AGENCIJE: 4547

Premium nekretnine Malinska
Mob: +385915474709
Tel: +38551858364
E-mail: [email protected]

Lokacija

close
Napomena: prikazana je točna lokacija

Dodatni podaci

Balkon/Lođa/Terasa

  • Terasa

Funkcionalnosti i karakteristike

  • Video Portafon

Dozvole i potvrde

  • Građevinska dozvola
Oglas objavljen 17.10.2025. 00:00
Do isteka još 2 godine i 2 mjeseca
Pregleda 135

Slični oglasi Pogledaj sve oglase

Navedite razlog prijave oglasa

Podijeli oglas

Vrbnik – ekskluzivna vila s bazenom, okružena šumom!

Vrbnik – ekskluzivna vila s bazenom, okružena šumom!

ID oglasa: 70938

Cijena: 1.560.000,00 €

U usporedbi može biti maksimalno 4 oglasa. Uklonite 1 oglas kako bi dodali novi oglas u usporedbe

PROVJERI OGLASE