UMAG – Novogradnja! Stan u modernom stambenom kompleksu s dva parkirna mjesta, S 3-28

Cijena: 219.000,00 €
ID oglasa: 119272

Osnovni podaci

Lokacija Istarska, Umag, Umag
Tip stana u kući
Stambena površina 56 m²
Broj etaža Jednoetažni
Broj soba Garsonijera
Kat Suteren

Opis

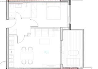
U samom gradu Umagu, u sklopu suvremenog stambenog projekta s ukupno 122 stana, prodaje se stan na 3. katu stambene zgrade.
Stan ima ukupnu površinu 56,51 m² i oznaku 3-28. Sastoji se od hodnika, kuhinje i dnevnog boravka, kupaonice, spavaće sobe te balkona 9,98 m².

Uz stan dolazi spremište površine 3,14 m², vanjsko parkirno mjesto te garažno parkirno mjesto.

Zgrada je građena armirano-betonskom konstrukcijom, s termoizolacijskom fasadom (ETICS 10 cm). Ugrađena je visokokvalitetna PVC stolarija s podizno-kliznim stijenama, električne rolete u sobama, multisplit klimatizacija u svim prostorijama, prvoklasna keramika i parket. Stan ima vlastito brojilo struje i vode, video parlafon te priključke za internet i TV.

Zgrada raspolaže s 74 garažna mjesta, 82 vanjska i 25 natkrivenih parkirnih mjesta, ukupno 105 spremišta, liftom i stubištima iz četiri glavna ulaza. U podrumu se nalaze garaže i komunikacijski prostori, a stanovi su smješteni od 1. do 3. kata.

Lokacija je izuzetno atraktivna – u krugu od 100 do 500 metara nalaze se vrtić, škola, trgovine, sportski sadržaji i centar grada, dok su more, šetnica i gradska plaža udaljeni oko 700 metara.

Za dodatne informacije i razgledavanje, molimo kontaktirajte:
Azra
+385 91 611 5706
+385 98 420 885
[email protected]

Lokacija

close
Napomena: prikazana je točna lokacija

Kontakt podaci

Adresa 52100 nazovi 052/213-332 Poruka Pošalji privatnu poruku
Verifikacija Korisnik je verificirao broj telefona u državi: Hrvatska
Oglas objavljen 14.04.2026. 01:03
Do isteka još 2 godine i 8 mjeseci
Pregleda 118

Slični oglasi Pogledaj sve oglase

Navedite razlog prijave oglasa

Podijeli oglas

UMAG – Novogradnja! Stan  u modernom stambenom kompleksu s dva parkirna mjesta, S 3-28

UMAG – Novogradnja! Stan u modernom stambenom kompleksu s dva parkirna mjesta, S 3-28

ID oglasa: 119272

Cijena: 219.000,00 €

U usporedbi može biti maksimalno 4 oglasa. Uklonite 1 oglas kako bi dodali novi oglas u usporedbe

PROVJERI OGLASE