Trogir, Čiovo, trosobni stan s krovnom terasom, prodaja

Cijena: 450.000,00 €
ID oglasa: 54723

Osnovni podaci

Lokacija Splitsko-dalmatinska, Okrug, Okrug Gornji
Tip stana u stambenoj zgradi
Stambena površina 117 m²
Broj etaža Jednoetažni
Broj soba 4
Kat Prizemlje
Sustav grijanja Sustav grijanja, klimatizacije i ventilacije
Energetski razred A

Opis

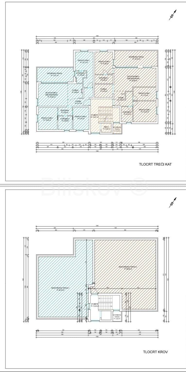
Trogir, Čiovo, stan površine neto površine 74,30  m2, s natkrivenom terasom 16,38 m2na trećem katu, s krovnom terasom 98,58 m2 na četvrtom katu, u novogradnji s liftom.
Stqn se sastoji od 3 sobe, kuhinje, blagovaonice, 2 kupatila, dnevnog boravka, terase i krovne terase . Prekrasan otvoreni pogled na more i okolicu. Vrlo kvalitetna i moderna gradnja.
Ova novoizgrađena zgrada nalazi se na ooku Čiovu, 200 m od mora i plaže. Svega par minuta lagane šetnje dijeli od centra Okruga Gornjeg, gdje su svi potrebni sadržaji: ambulanta, ljekarna, supermarketi, restorani, kafići... U neposrednoj blizini je i nadaleko popularna plaža, simpatičnog nadimaka čiovska Copacabana.
Zgrada ima 10 stanova koji su raspoređeni kroz 4 etaže i imaju pogled na more. Zgrada ima lift. Svakom stanu pripada jedno otvoreno parkirno mjesto.
Investitor je tvrtka u sustavu PDV-a, tako da za kupac ne plaća porez na promet nekretninama od 3%.
www.biliskov.com    ID: 12234
  

Lokacija

close
Napomena: Prikazana je približna lokacija

Dodatni podaci

Podaci o objektu

  • Lift
  • Gradski vodovod
  • Gradska kanalizacija

Balkon/Lođa/Terasa

  • Lođa (Loggia)

Funkcionalnosti i karakteristike

  • Podno grijanje
  • Video Portafon
  • Protuprovalna vrata
  • Tuš kabina

Ostali objekti i površine

  • Spremište/šupa
  • Bazen

Vrsta parkinga

  • Vanjsko ne-natkriveno mjesto

Dozvole i potvrde

  • Vlasnički list
Oglas objavljen 28.06.2022. 14:47
Do isteka još 2 godine i 8 mjeseci
Pregleda 108

Slični oglasi Pogledaj sve oglase

Navedite razlog prijave oglasa

Podijeli oglas

Trogir, Čiovo, trosobni stan s krovnom terasom, prodaja

Trogir, Čiovo, trosobni stan s krovnom terasom, prodaja

ID oglasa: 54723

Cijena: 450.000,00 €

U usporedbi može biti maksimalno 4 oglasa. Uklonite 1 oglas kako bi dodali novi oglas u usporedbe

PROVJERI OGLASE