TREŠNJEVKA, PRODAJA, STAN 85M2 + 2 TERASE 32M2 + PM

Cijena: 435.000,00 €
ID oglasa: 97088

Osnovni podaci

Lokacija Zagreb
Tip stana u stambenoj zgradi
Stambena površina 93,32 m²
Broj etaža 3
Broj soba 4
Kat 3. kat
Ukupni broj katova u zgradi 3

Opis

TREŠNJEVKA, PRODAJA, ZGRADA SA 6 STANOVA,, USELJENJE KRAJEM 2026
Prodaje se šest stanova, projekt u izgradnji, na odličnoj lokaciji, između Nehajske i Selske ceste na Trešnjevci.
Armirano betonska konstrukcija zgrade, podno grijanje preko dizalica topline, vrhunska keramika i parketi, video nadzor, parkirna mjesta s punjačima za električna vozila.
Uz svaki stan je obavezna kupnja vanjskog parkirnog mjesta po cijeni 17.500 eura.
Prizemlje:
Stan S1 : PRODANO
Prvi kat:
Stan S2 : PRODANO
Stan S3 : PRODANO
Drugi kat:
Stan S4 : PRODANO
Stan S5 : PRODANO
Treći kat:
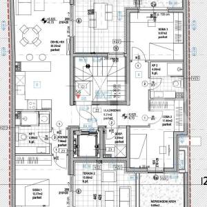
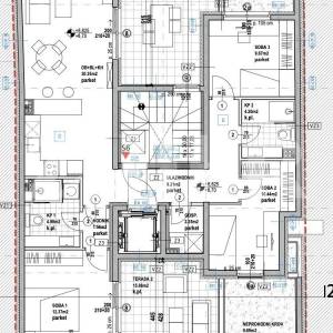
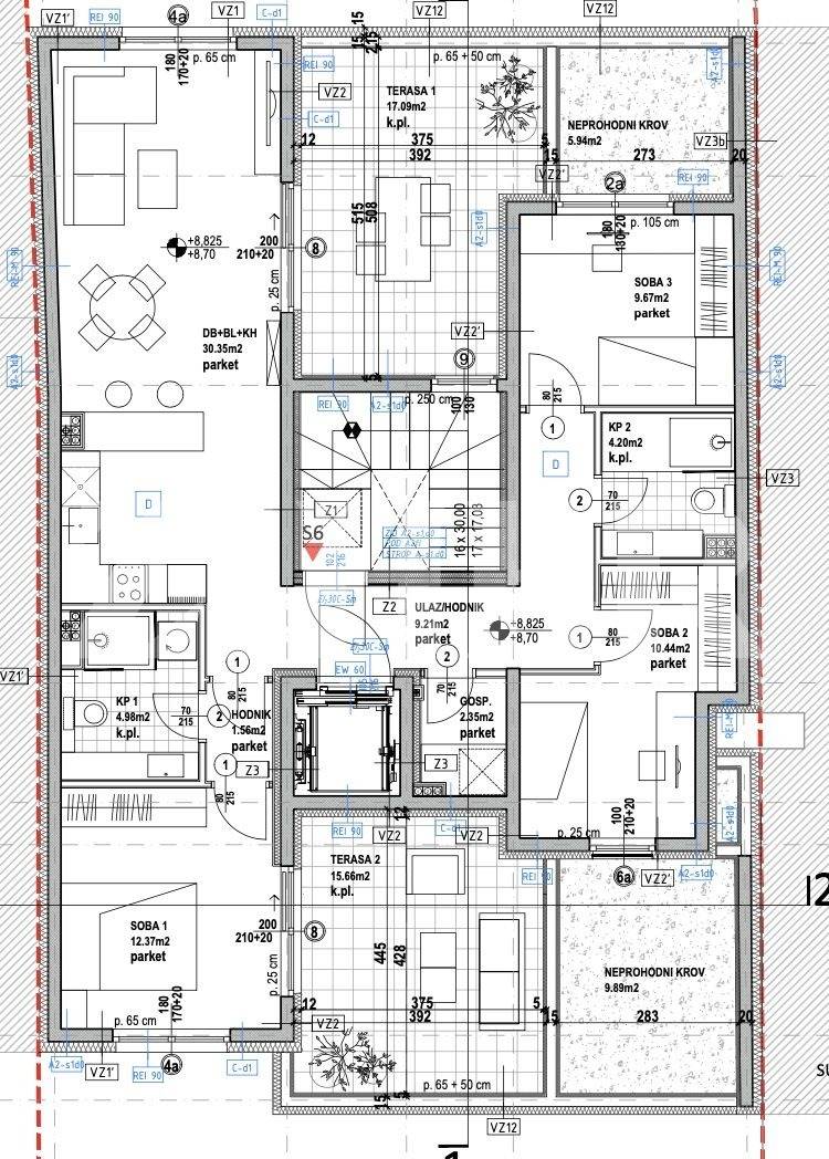
Stan S6 : dnevni boravak s blagavaonicom i kuhinjom, tri spavaće sobe, spremište, dvije kupaonice, ukupne površine 85,13 m2 + terasa 17 m2 + terasa 16 m2 = 435.000 eura
Za sve informacije nazovite 098/359876
TREŠNJEVKA, BUILDING WITH 6 APARTMENTS FOR SALE, MOVE IN DATE END 2026
Six apartments for sale, project under construction, in a great location, between Nehajska and Selska street in Trešnjevka.
Reinforced concrete construction of the building, underfloor heating via heat pumps, high-quality ceramics and parquet floors, video surveillance, parking spaces with chargers for electric vehicles.
The price of a parking space is 17.500 eur
Ground floor:
Flat S1: SOLD
First floor:
Apartment S2: SOLD
Apartment S3: SOLD
Second floor:
Apartment S4: SOLD
Apartment S5: SOLD
Third floor:
Apartment S6: living room with dining room and kitchen, three bedrooms, storage room, two bathrooms, total area 85,13 m2 + terrace 17 m2 + terrace 16 m2 = 435.000 eur
For all information, call 098/359876
Ziher
Agencija za posredovanje u prometu nekretninama

Lokacija

close
Napomena: Prikazana je približna lokacija

Kontakt podaci

Oglas objavljen 19.11.2024. 16:35
Do isteka još 2 godine i 8 mjeseci
Pregleda 7

Slični oglasi Pogledaj sve oglase

Navedite razlog prijave oglasa

Podijeli oglas

TREŠNJEVKA, PRODAJA, STAN 85M2 +  2 TERASE 32M2 + PM

TREŠNJEVKA, PRODAJA, STAN 85M2 + 2 TERASE 32M2 + PM

ID oglasa: 97088

Cijena: 435.000,00 €

U usporedbi može biti maksimalno 4 oglasa. Uklonite 1 oglas kako bi dodali novi oglas u usporedbe

PROVJERI OGLASE