Stara kamena kuća s projektom za obnovu i građevinskom dozvolom

Cijena: 93.000,00 €
ID oglasa: 70124

Osnovni podaci

Lokacija Istarska, Svetvinčenat, Svetvinčenat
Tip kuće Samostojeća
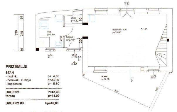
Stambena površina 100 m²
Broj etaža Prizemnica
Broj soba 1

Opis

U prodaji je atraktivna kamena kuća s projektom za obnovu i građevinskom dozvolom u šarmantnom srednjevjekovnom gradiću Svetvinčenat u središtu Istre.
Svetvinčenat je jedan je od istarskih dragulja sa bogatom turističkom ponudom te brojnim događajima koje se odigravaju u izvanredno atraktivnim povijesnim prostorima ovog gradića. Osim kulturnih i povjestnih baština Svetvinčenat je primamljiva destinacija za sve ljubitelje biciklističkih i pješačkih staza.
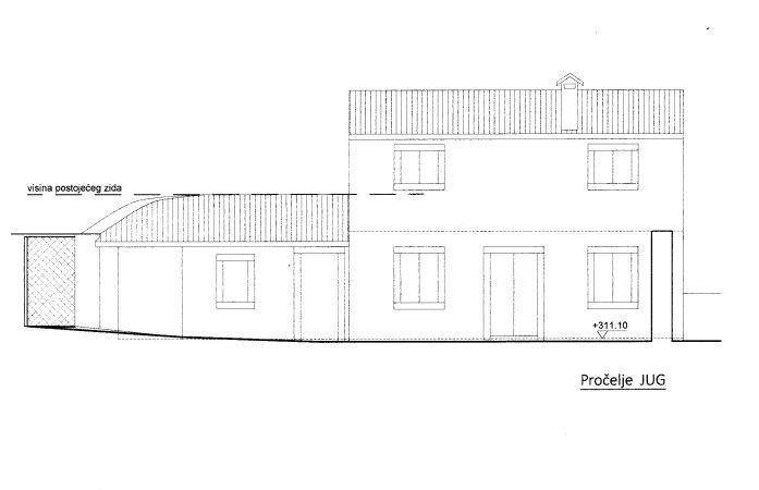
U ponudi je kuća za obnovu s projektom i građevinskom dozvolom.
Projekt je smišlen tako da se nadogradi na 60 m2 prostora u prizemlju još jedan kat od 40 m2, a uz kuću je i okućnica od 110 m2 gdje ima mjesta za parkirno mjesto.

Za pitanja i razgled kontaktirajte nas na:

Azra Valjevac
[email protected]
+385 91 611 5706

[email protected]
+38598 420 885

Lokacija

close
Napomena: prikazana je točna lokacija

Kontakt podaci

Adresa 52100 nazovi 052/213-332 Poruka Pošalji privatnu poruku
Verifikacija Korisnik je verificirao broj telefona u državi: Hrvatska
Oglas objavljen 19.10.2025. 00:59
Do isteka još 2 godine i 8 mjeseci
Pregleda 71

Slični oglasi Pogledaj sve oglase

Navedite razlog prijave oglasa

Podijeli oglas

Stara kamena kuća  s projektom za obnovu i građevinskom dozvolom

Stara kamena kuća s projektom za obnovu i građevinskom dozvolom

ID oglasa: 70124

Cijena: 93.000,00 €

U usporedbi može biti maksimalno 4 oglasa. Uklonite 1 oglas kako bi dodali novi oglas u usporedbe

PROVJERI OGLASE