Stan u novogradnji, Pula! Stan A4 ZgB

Cijena: 258.000,00 €
ID oglasa: 113330

Osnovni podaci

Lokacija Istarska, Pula, Centar
Tip stana u kući
Stambena površina 94 m²
Broj etaža Jednoetažni
Broj soba Garsonijera
Kat Suteren

Opis

Novi projekt – Pula!

Zgrada B sastoji se od tri etaže i ukupno četiri stana, projektiranih prema suvremenim standardima udobnosti i funkcionalnosti.

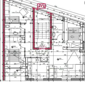
Stan A4, površine 94,45 m2, nalazi se na 2 katu zgrade te sastoji se od:
hodnika
2 kupaonice
3 spavaće sobe
kuhinje s blagovaonicom i dnevnim boravkom
natkrivene terase
loggie.
Električne roletne, podno grijanje u kupaonici.
Termo fasada. Osunčana strana.

Uz stan se nudi parkirno mjesto (uz nadoplatu) mogućnost izabira natrkivenog ili nenetakrivenog mjesta.

Kvalitetna gradnja, moderni materijali i pažljivo osmišljen tlocrt čine ove stanove izvrsnim izborom za obiteljski život, odmor ili investiciju.

Planirani završetak izgradnje: kraj 2026.

Za sve dodatne informacije i razgled stana, molimo kontaktirajte:

Azra
+385 91 611 5706
+385 98 420 885
[email protected]

Lokacija

close
Napomena: prikazana je točna lokacija

Kontakt podaci

Adresa 52100 nazovi 052/213-332 Poruka Pošalji privatnu poruku
Verifikacija Korisnik je verificirao broj telefona u državi: Hrvatska
Oglas objavljen 11.03.2026. 00:58
Do isteka još 2 godine i 8 mjeseci
Pregleda 57

Slični oglasi Pogledaj sve oglase

Navedite razlog prijave oglasa

Podijeli oglas

Stan u novogradnji, Pula! Stan A4 ZgB

Stan u novogradnji, Pula! Stan A4 ZgB

ID oglasa: 113330

Cijena: 258.000,00 €

U usporedbi može biti maksimalno 4 oglasa. Uklonite 1 oglas kako bi dodali novi oglas u usporedbe

PROVJERI OGLASE