Stan u izgradnji S2/1, KANFANAR

Cijena: 230.000,00 €
ID oglasa: 104402

Osnovni podaci

Lokacija Istarska, Kanfanar, Kanfanar
Tip stana u kući
Stambena površina 83 m²
Broj etaža Jednoetažni
Broj soba Garsonijera
Kat Suteren

Opis

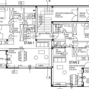
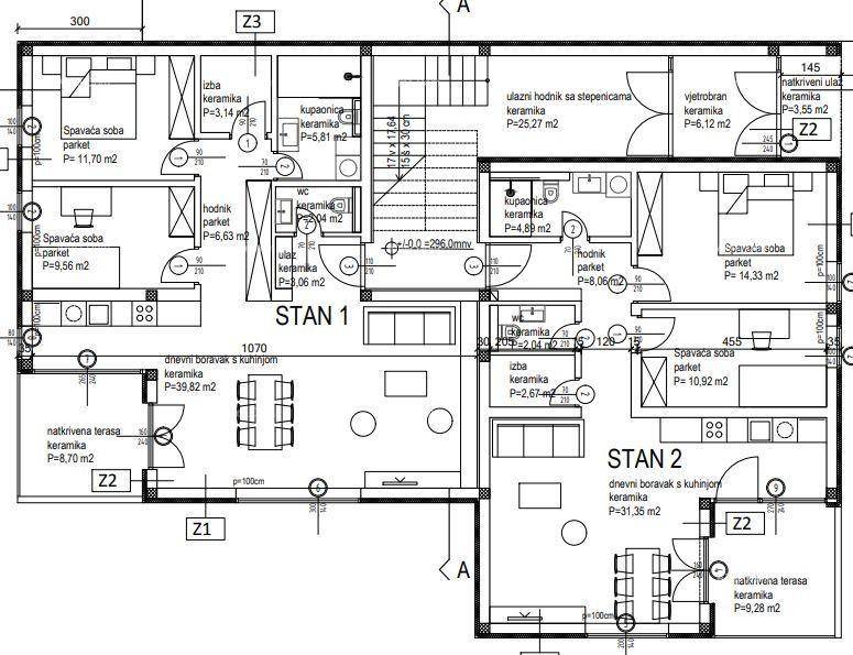
Prodajemo stanovi u zgradi čija izgradnja je započeta u 9-om mjesecu 2023 godine. Projekt se sastoji od dvije spojene zgrade sa ukupno 8 stanova, 5 stanova u jednoj i 3 u drugoj zgradi.
Zgrade su u mirnom dijelu Kanfanara okruženo luksuznim vilama dalje od prometnih cesta.

Stan S2 se nalazi u prizemlju zgrade od ukupno 5 stanova, stambenoj površine 83.54 m2 i sastoji od slijedećih prostorija:

hodnik - 8.06 m2
WC - 2.04 m2
dnevni boravak+kuhinja+blagavaona - 31.35 m2
s izlazom na
natkrivenu terasu - 9.28 m2.
spavaća soba 1 - 10.92 m2
spavaća soba 2 - 14.33 m2
kupaonica - 4.89 m2
izba/špajza - 2.67 m2

Svakom stanu će pripadati 1 parkirno mjesto.
Kvalitetna keramika je predviđena u svakoj prostoriji osim spavaćih soba i ulaznog hodnika gdje će biti postavljene vrhunske vinil podne obloge.
Izgradnja je zapoćeta početkom jeseni 2023 i završetak se planira na kraj 2024 god.
Primamo rezervacije!

+385 91 611 5706
[email protected]
+385 98 420 885

Lokacija

close
Napomena: prikazana je točna lokacija

Kontakt podaci

Adresa 52100 nazovi 052/213-332 Poruka Pošalji privatnu poruku
Verifikacija Korisnik je verificirao broj telefona u državi: Hrvatska
Oglas objavljen 26.01.2026. 01:08
Do isteka još 2 godine i 8 mjeseci
Pregleda 92

Slični oglasi Pogledaj sve oglase

Navedite razlog prijave oglasa

Podijeli oglas

Stan u izgradnji S2/1, KANFANAR

Stan u izgradnji S2/1, KANFANAR

ID oglasa: 104402

Cijena: 230.000,00 €

U usporedbi može biti maksimalno 4 oglasa. Uklonite 1 oglas kako bi dodali novi oglas u usporedbe

PROVJERI OGLASE