Solin, prodaja zemljište 936 m2, sa započetom gradnjom

Cijena: 399.000,00 €
ID oglasa: 53850

Osnovni podaci

Lokacija Splitsko-dalmatinska, Solin, Mezanovci
Tip zemljišta Građevinsko
Površina 936 m²

Opis

Solin, Mezanovci građevinsko zemljište 936 m2, sa započetom gradnjom, pravomoćna građevinska dozvola.
Zemljište je pravilnog pravokutnog oblika.
Vlasnik je ishodio pravomoćnu građevinsku dozvolu 09/2022 za objekt, koja dozvola vrijedi tri godine. Ista se može i produžiti za naredne tri godine.
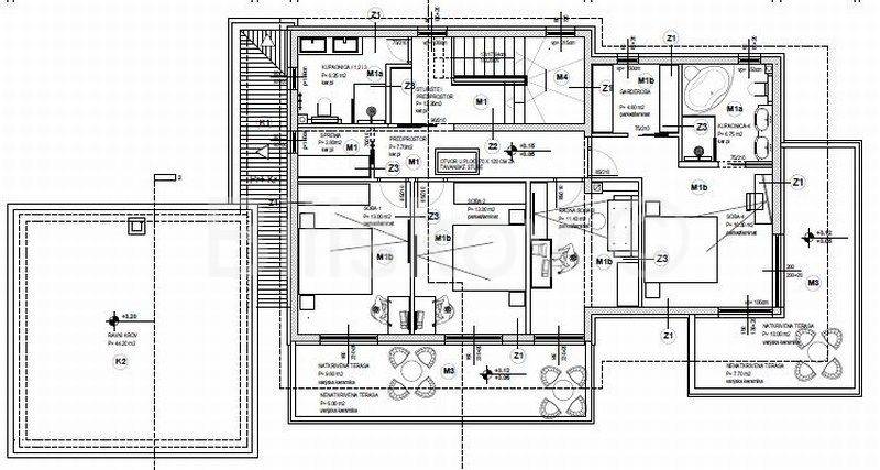
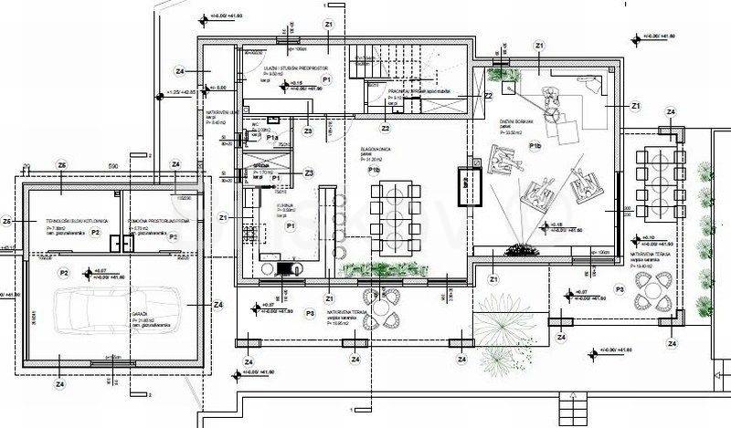
Projekt predviđa etažu prizemlja i etažu prvog kata.
Na etaži prizemlja je predviđena garaža, kuhinja s blagovaonicom na koju se nadovezuje dnevni boravak, te dvije terase.
Vanjski dio kuće ima planirano sunčalište, vanjski jacuzzi, terase.
Na etaži kata je predviđena glavna soba sa kupaonicom, garderobom i terasom, te još tri sobe – sve imaju izlaz na jednu zajedničku terasu, te kupaonica.
Projekt je napravljen za ugodno življenje, no isti se može koristiti i u svrhu iznajmljivanja. Vanjski dio je dovoljno velik da je moguća izgradnja i bazena.
Po želji kupca projekt se može i mijenjati.
U prodajnu cijenu je uključen projekt sa građevinskom dozvolom, te plaćeni komunalni doprinos (što prelazi iznos od 30.000 eur).
Put odmah do zemljišta, struja i voda na terenu.
 
www.biliskov.com ID 15274-1
  

Lokacija

close
Napomena: prikazana je točna lokacija

Dodatni podaci

Komunalije

  • Gradski vodovod
  • Gradska kanalizacija
  • Struja
Oglas objavljen 23.05.2025. 10:29
Do isteka još 2 godine i 8 mjeseci
Pregleda 181

Slični oglasi Pogledaj sve oglase

Navedite razlog prijave oglasa

Podijeli oglas

Solin, prodaja zemljište 936 m2, sa započetom gradnjom

Solin, prodaja zemljište 936 m2, sa započetom gradnjom

ID oglasa: 53850

Cijena: 399.000,00 €

U usporedbi može biti maksimalno 4 oglasa. Uklonite 1 oglas kako bi dodali novi oglas u usporedbe

PROVJERI OGLASE