ŠIBENIK, VODICE – Luksuzni dvoetažni stan s okućnicom, 200 m od plaže

Cijena: 0,00 €
ID oglasa: 78953

Osnovni podaci

Lokacija Šibensko-kninska, Vodice, Vodice
Tip stana u kući
Stambena površina 136,48 m²
Broj etaža 2
Broj soba Garsonijera
Kat Prizemlje
Netto površina 136,48 m²
Godina izgradnje 2025
Ukupni broj katova u zgradi 2
Energetski razred A+
Broj vlastitih parkirnih mjesta 6
Klima uređaj DA

Opis

ŠIBENIK, VODICE – Luksuzni dvoetažni stan s okućnicom, 200 m od plaže

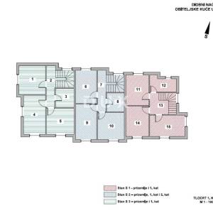
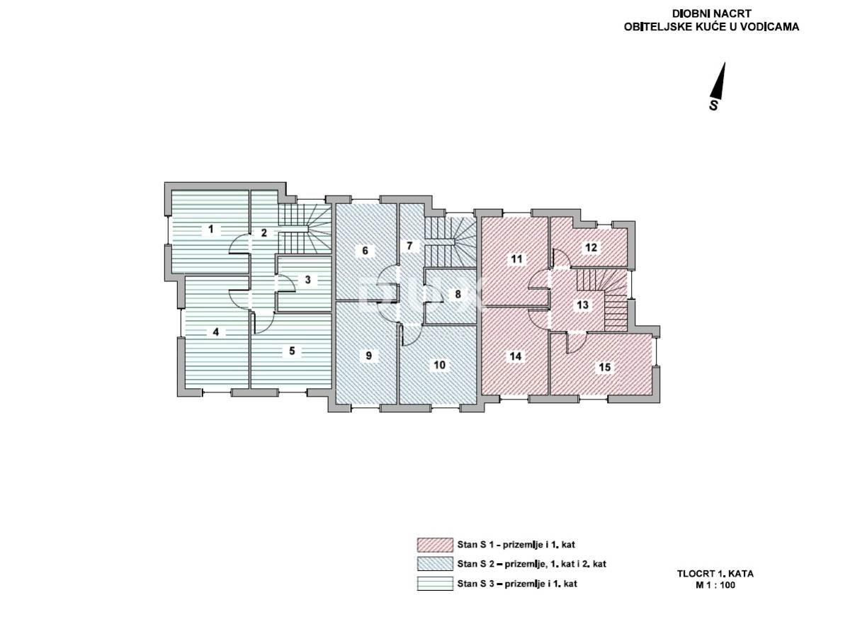
DUX predstavlja moderan dvoetažni stan S3 smješten na atraktivnoj lokaciji u Vodicama, svega 200 metara od mora i uređenih plaža – odnosno svega četiri minute laganog hoda. Ova iznimna nekretnina pruža savršenu ravnotežu između luksuza, udobnosti i funkcionalnosti, idealna za obiteljski život ili kao investicija u turističke svrhe.

Stan se prostire na dvije etaže – prizemlje i kat, ukupne neto korisne površine 136,48 m², dok ukupna površina s pripadajućim sadržajima iznosi 270,34 m².

U prizemlju se nalaze kuhinja, blagovaonica i dnevni boravak otvorenog koncepta s izlazom na prostranu terasu, kupaonica te unutarnje stepenište koje vodi na kat. Stan raspolaže i vrtom površine 35,37 m² te okućnicom ukupne veličine 115 m², idealnom za opuštanje i boravak na otvorenom.

Na prvom katu nalaze se tri prostrane spavaće sobe i kupaonica, čime je osigurana savršena privatnost i udobnost za svakog člana obitelji.

Tlocrtna raspodjela:

Prizemlje:

Stepenište: 9,08 m²

Kupaonica: 5,75 m²

Dnevni boravak, blagovaonica i kuhinja: 27,51 m²

Natkrivena terasa: 12,33 m²

Nenatkrivena terasa: 42,88 m²

Vrt: 35,37 m²

Ukupna okućnica: 115 m²

1. kat:

Soba 1: 13,30 m²

Soba 2: 14,79 m²

Soba 3: 12,07 m²

Hodnik sa stepenicama: 11,75 m²

Kupaonica: 5,88 m²

Stan dolazi s dva parkirna mjesta te nudi vrhunske tehničke i estetske standarde gradnje.

Oprema i značajke:

Udaljenost od mora i plaže: 200 m / 4 minute hoda

Podno grijanje u svim prostorijama

Klima uređaji u svakoj sobi

PVC stolarija s troslojnim staklima i električnim roletama

Kvalitetna toplinska izolacija fasade (10 cm)

Visokokvalitetni materijali i završna obrada

Sanitarije i keramika renomiranih proizvođača

Renomirani i provjereni izvođač

Ova moderna novogradnja u Vodicama predstavlja idealnu priliku za sve koji traže luksuzan i funkcionalan dom blizu mora, kao i sigurnu investiciju u kvalitetnu nekretninu na jadranskoj obali.

Za sve potrebne informacije i razgledavanje ove atraktivne nekretnine, molimo kontaktirajte nas.

Vodice su jedno od najpoželjnijih mjesta za život i odmor na šibenskoj rivijeri – poznate po dugim šetnicama uz more, uređenim plažama i bogatoj turističkoj ponudi. U blizini se nalaze nacionalni parkovi Krka i Kornati, dok su zračne luke Split i Zadar udaljene 50, odnosno 85 kilometara.

Poštovani klijenti, agencijska provizija naplaćuje se u skladu s Općim uvjetima poslovanja:
www.dux-nekretnine.hr/opci-uvjeti-poslovanja

ID KOD AGENCIJE: 43088

Dux Zadar
Mob: +385 91 312 1121
Tel: +385 91 480 8808
E-mail: [email protected]
www.dux-dalmacija.com

Lokacija

close
Napomena: prikazana je točna lokacija

Dodatni podaci

Podaci o objektu

  • Gradski vodovod

Balkon/Lođa/Terasa

  • Terasa

Funkcionalnosti i karakteristike

  • Video Portafon

Dozvole i potvrde

  • Građevinska dozvola
Oglas objavljen 03.11.2025. 00:00
Do isteka još 2 godine i 7 mjeseci
Pregleda 49

Slični oglasi Pogledaj sve oglase

Navedite razlog prijave oglasa

Podijeli oglas

ŠIBENIK, VODICE – Luksuzni dvoetažni stan s okućnicom, 200 m od plaže

ŠIBENIK, VODICE – Luksuzni dvoetažni stan s okućnicom, 200 m od plaže

ID oglasa: 78953

Cijena: 0,00 €

U usporedbi može biti maksimalno 4 oglasa. Uklonite 1 oglas kako bi dodali novi oglas u usporedbe

PROVJERI OGLASE