ŠIBENIK, VODICE – Ekskluzivni troetažni stan u blizini plaže sa spektakularnim pogledom na more

Cijena: 0,00 €
ID oglasa: 78957

Osnovni podaci

Lokacija Šibensko-kninska, Vodice, Vodice
Tip stana u kući
Stambena površina 171,36 m²
Broj etaža 2
Broj soba Garsonijera
Kat Prizemlje
Netto površina 171,36 m²
Godina izgradnje 2025
Ukupni broj katova u zgradi 2
Energetski razred A+
Broj vlastitih parkirnih mjesta 6
Klima uređaj DA

Opis

ŠIBENIK, VODICE – Ekskluzivni troetažni stan u blizini plaže sa spektakularnim pogledom na more

DUX predstavlja luksuzan troetažni stan S2, smješten na iznimno atraktivnoj lokaciji u Vodicama, svega 200 metara od mora i uređenih plaža, odnosno četiri minute lagane šetnje. Zahvaljujući vrhunskoj orijentaciji i poziciji, stan nudi spektakularan panoramski pogled na more, maksimalnu udobnost i definiciju modernog mediteranskog života.

Stan se prostire na tri etaže – prizemlje, kat i krovnu terasu – s ukupnom neto korisnom površinom od 171,36 m², dok ukupna površina s pripadajućim sadržajima iznosi impresivnih 332,88 m².

U prizemlju se nalaze kuhinja, blagovaonica i dnevni boravak otvorenog koncepta s izlazom na terasu, kupaonica te spremište.
Na prvi kat se dolazi unutarnjim stubištem, gdje se nalaze tri prostrane spavaće sobe i kupaonica.
Na drugi kat se dolazi stepenicama, a ondje se nalaze kupaonica, spremište te izlaz na veliku krovnu terasu površine 153 m², idealnu za luksuzan odmor i uživanje. Ova prostrana terasa nudi mnoštvo mogućnosti – jacuzzi, sunčalište, lounge zonu i blagovaonicu na otvorenom, uz savršen pogled na more i okolinu koji oduzima dah.

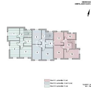
Tlocrtna raspodjela:
Prizemlje:
Dnevni boravak, kuhinja i blagovaonica otvorenog koncepta: 26,88 m²
Kupaonica: 5,40 m²
Stepenište: 9,09 m²
Natkrivena terasa: 12,64 m²
Nenatkrivena terasa: 15,99 m²

1. kat:
Soba 1: 12,18 m²
Soba 2: 13,02 m²
Soba 3: 12,42 m²
Hodnik sa stepeništem: 11,54 m²
Kupaonica: 5,63 m²

2. kat – Krovna terasa:
WC: 2,78 m²
Spremište: 3,15 m²
Stepenište: 11,49 m²
Natkrivena terasa: 9,57 m²
Nenatkrivena terasa: 143,47 m²

Na prostranoj krovnoj terasi površine gotovo 150 m² smješten je iznimno luksuzan prostor za odmor, sunčanje i druženje, s nevjerojatnim panoramskim pogledom na more i okolicu – prava rijetkost na tržištu i simbol ekskluzivnog mediteranskog života.

Stanu pripadaju dva parkirna mjesta, što dodatno povećava praktičnost i vrijednost ove nekretnine.

Oprema i značajke:
Udaljenost od mora i plaže: 200 m / 4 minute hoda
Spektakularan pogled na more
Podno grijanje u svim prostorijama
Klima uređaji u svakoj sobi
PVC stolarija s troslojnim staklima i električnim roletama
Kvalitetna toplinska izolacija fasade (10 cm)
Visokokvalitetni materijali i završna obrada
Sanitarije i keramika renomiranih proizvođača
Renomirani i provjereni izvođač
Krovna terasa od 150 m² – prava definicija luksuza

Ova moderna novogradnja u Vodicama savršen je odabir za one koji traže prostran, luksuzan dom blizu mora ili žele sigurnu i prestižnu investiciju na jadranskoj obali.

Za sve dodatne informacije i razgledavanje ove ekskluzivne nekretnine slobodno nam se javite.

Vodice su jedno od najpoželjnijih mjesta za život i odmor na šibenskoj rivijeri. Poznate po dugim šetnicama uz more, uređenim plažama i bogatoj turističkoj ponudi, nude savršen spoj mediteranskog šarma i modernog života. U neposrednoj blizini nalaze se nacionalni parkovi Krka i Kornati, dok su zračne luke Split i Zadar udaljene 50, odnosno 85 kilometara.

Poštovani klijenti, agencijska provizija naplaćuje se u skladu s Općim uvjetima poslovanja:
www.dux-nekretnine.hr/opci-uvjeti-poslovanja

ID KOD AGENCIJE: 43024

Dux Zadar
Mob: +385 91 312 1121
Tel: +385 91 480 8808
E-mail: [email protected]
www.dux-dalmacija.com

Lokacija

close
Napomena: prikazana je točna lokacija

Dodatni podaci

Podaci o objektu

  • Gradski vodovod

Balkon/Lođa/Terasa

  • Terasa

Funkcionalnosti i karakteristike

  • Video Portafon

Dozvole i potvrde

  • Građevinska dozvola
Oglas objavljen 30.10.2025. 00:00
Do isteka još 2 godine i 7 mjeseci
Pregleda 51

Slični oglasi Pogledaj sve oglase

Navedite razlog prijave oglasa

Podijeli oglas

ŠIBENIK, VODICE – Ekskluzivni troetažni stan u blizini plaže sa spektakularnim pogledom na more

ŠIBENIK, VODICE – Ekskluzivni troetažni stan u blizini plaže sa spektakularnim pogledom na more

ID oglasa: 78957

Cijena: 0,00 €

U usporedbi može biti maksimalno 4 oglasa. Uklonite 1 oglas kako bi dodali novi oglas u usporedbe

PROVJERI OGLASE