ŠIBENIK, TRIBUNJ – NOVOGRADNJA, 3S+DB, terasa, sprem., pogled na more

Cijena: 422.142,00 €
ID oglasa: 101045

Osnovni podaci

Lokacija Šibensko-kninska, Tribunj, Tribunj
Tip stana u stambenoj zgradi
Stambena površina 100,51 m²
Broj etaža 2
Broj soba Garsonijera
Kat 1. kat
Netto površina 100,51 m²
Godina izgradnje 2026
Ukupni broj katova u zgradi 2
Energetski razred A
Broj vlastitih parkirnih mjesta 7+
Klima uređaj DA

Opis

ŠIBENIK, TRIBUNJ – NOVOGRADNJA, 3S+DB, terasa, sprem., pogled na more

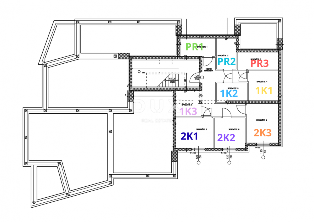
Prodaje se stan na 1.katu novogradnje u Tribunju kraj Šibenika. Stan se nalazi u višestambenoj zgradi sa ukupno 9 stambenih jedinica.

Zgrada se proteže na ukupno četiri etaže: podrum (u kojem se nalaze spremišta za svaki stan), prizemlje (tri stambene jedinice s bazenima) i dva kata (svaki sa po tri stambene jedinice sa prekrasnim pogledom na more). Zgrada je trenutno u izgradnji i završetak se očekuje krajem 2026. godine.

Stan 1K3 ukupne je korisne površine 100,51 m2 i sastoji se od dnevnog boravka, kuhinje i blagovaonice otvorenog tipa, odakle se izlazi na terasu s prekrasnim pogledom na more, tri spavaće sobe i dvije kupaonice od kojih jedna pripada glavnoj (master) sobi, te dodatnog spremišta.
Stanu također pripada i spremište u podrumu građevine te jedno vlastito parkirno mjesto u dvorištu građevine.

Pri izgradnji se koriste isključivo najkvalitetniji materijali, a stanovi se prodaju po sistemu ''ključ u ruke''. Investitor iza sebe ima niz uspješno realiziranih projekata, koji se mogu vidjeti kao pokazni primjer kvalitete gradnje i završne obrade.

Od opreme svaki stan će posjedovati podno grijanje kroz cijeli stan, split sistem klima uređaje u svim sobama, protuprovalna vrata, ALU stolariju s troslojnim staklom, komarnicima i električnim podizačima roleta, ALU podizno klizne stijene balkonskih vrata, podove obložene prirodnim kamenom, moderne kupaonske sanitarije, TV priključak u svim spavaćim sobama i dnevnom boravku, staklenu ogradu na terasama te EPS fasadu debljine min 10cm.

Objekt je smješten na predivnoj mikrolokaciji svega 650 metara od plaže i 1500 metara od centra mjesta i marine. U okolici prevladava netaknuti mediteranski krajolik polja, krša, maslina i borova što čini ovu lokaciju izuzetno privlačnom i autentičnom.

U cijenu je uključen PDV te je kupac oslobođen plaćanja poreza na promet nekretninama!

Centar Vodica udaljen je tek nekoliko kilometara, Šibenika svega 15 km, dok su Zračna luka Zadar na 58 km i Zračna luka Split na 66 km, što čini ovu lokaciju izvanredno prometno povezanom. U blizini se nalaze i nacionalni parkovi Krka i Kornati te Vransko jezero.

Tribunj je slikovito ribarsko mjesto i turističko središte nedaleko od Vodica i Šibenika, poznato po svojoj autentičnoj mediteranskoj atmosferi i prekrasnoj marini. Poznato je po staroj kamenoj jezgri na otočiću, uskim uličicama i tradicionalnoj arhitekturi. Mjesto nudi miran odmor uz čiste plaže, autentičnu gastronomiju i živopisne manifestacije poput magarećih trka.

Za dodatne informacije ili dogovor za razgledavanje, slobodno nas kontaktirajte.

Poštovani klijenti, agencijska provizija naplaćuje se u skladu s Općim uvjetima poslovanja:
www.dux-nekretnine.hr/opci-uvjeti-poslovanja

ID KOD AGENCIJE: 44387

Ivan Bego
Agent pripravnik
Mob: +385 91 312 1121
Tel: +385 91 480 8808
E-mail: [email protected]
www.dux-nekretnine.hr

Lokacija

close
Napomena: prikazana je točna lokacija

Dodatni podaci

Podaci o objektu

  • Gradski vodovod
  • Gradska kanalizacija

Balkon/Lođa/Terasa

  • Terasa

Funkcionalnosti i karakteristike

  • Video Portafon

Dozvole i potvrde

  • Građevinska dozvola
Oglas objavljen 05.01.2026. 00:00
Do isteka još 2 godine i 8 mjeseci
Pregleda 7

Slični oglasi Pogledaj sve oglase

Navedite razlog prijave oglasa

Podijeli oglas

ŠIBENIK, TRIBUNJ – NOVOGRADNJA, 3S+DB, terasa, sprem., pogled na more

ŠIBENIK, TRIBUNJ – NOVOGRADNJA, 3S+DB, terasa, sprem., pogled na more

ID oglasa: 101045

Cijena: 422.142,00 €

U usporedbi može biti maksimalno 4 oglasa. Uklonite 1 oglas kako bi dodali novi oglas u usporedbe

PROVJERI OGLASE