Rovinj! Luksuzna novogradnja u blizini centra grada !S4

Cijena: 877.000,00 €
ID oglasa: 99539

Osnovni podaci

Lokacija Istarska, Rovinj, Rovinj
Tip stana u kući
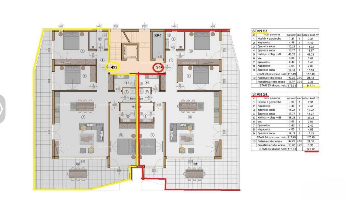
Stambena površina 142 m²
Broj etaža Jednoetažni
Broj soba Garsonijera
Kat Suteren

Opis

Rovinj! Blizina centra grada ! S4
U ponudi je stan na 1. katu buduće luksuzne novogradnje.
Stan se sastoji od hodnika, kupaonice, tri spavaće sobe, dvije kupaonice, zasebnog toaleta, spremišta , kuhinje s blagavaonicom te dnevnim boravkom, iz dnevnog boravka izlaz na veliku prostranu terasu od cca 56 m2..
Luksuzna novogradnja. Svaki stan će imati podno grijanje na toplinsku pumpu.Klimatizirano. Video nadzor. Video parlafon.
Protuprovalna ulazna vrata. Parket u sobama, prvoklasna keramika.
Lift u zgradi. Dva parkirna mjesta u garaži.
Započeta gradnja. Predviđeni završetak 2025 godine.

INFO:
[email protected]
+385 91 6115706
[email protected]
+385 98 323 264

Lokacija

close
Napomena: prikazana je točna lokacija

Kontakt podaci

Adresa 52100 nazovi 052/213-332 Poruka Pošalji privatnu poruku
Verifikacija Korisnik je verificirao broj telefona u državi: Hrvatska
Oglas objavljen 22.12.2025. 11:38
Do isteka još 2 godine i 8 mjeseci
Pregleda 125

Slični oglasi Pogledaj sve oglase

Navedite razlog prijave oglasa

Podijeli oglas

Rovinj! Luksuzna novogradnja u blizini centra grada !S4

Rovinj! Luksuzna novogradnja u blizini centra grada !S4

ID oglasa: 99539

Cijena: 877.000,00 €

U usporedbi može biti maksimalno 4 oglasa. Uklonite 1 oglas kako bi dodali novi oglas u usporedbe

PROVJERI OGLASE