RIJEKA, VIŠKOVO - stan 2. ( 57 m2 ) U NOVOGRADNJI 2S+DB, URBANA GRADNJA VIŠKOVO! PRILIKA!

Cijena: 164.500,00 €
ID oglasa: 101497

Osnovni podaci

Lokacija Primorsko-goranska, Viškovo, Marčelji
Tip stana u stambenoj zgradi
Stambena površina 57,67 m²
Broj etaža 2
Broj soba Garsonijera
Kat Prizemlje
Netto površina 57,67 m²
Godina izgradnje 2026
Ukupni broj katova u zgradi 2
Energetski razred A
Broj vlastitih parkirnih mjesta 1
Klima uređaj DA

Opis

RIJEKA, VIŠKOVO - stan 2. ( 57 m2 ) U NOVOGRADNJI 2S+DB, URBANA GRADNJA VIŠKOVO! PRILIKA!

Zgrada u izgradnji.

Planirani završetak radova je proljeće 2026. godine.

U navedenu cijenu je uključeno jedno parkirno mjesto, a drugo parkirno mjesto je moguće kupiti po želji kupca.

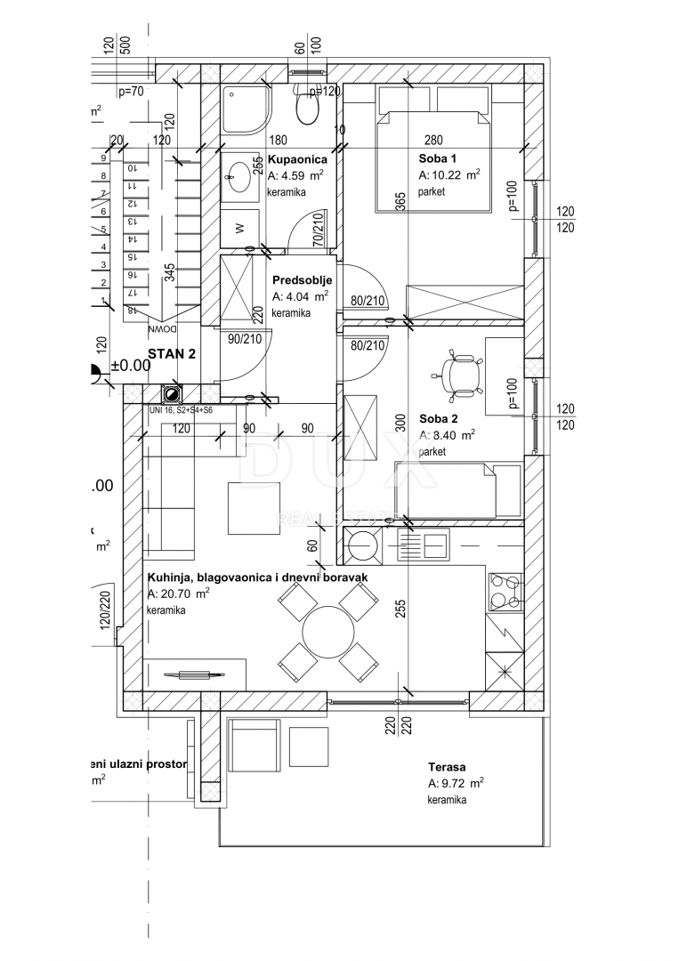
Stan 2 – prizemlje
Predsoblje: 4,04 m2
Kuhinja, blagovaonica i dnevni boravak: 20,70 m2
Terasa: 9,72m2 · Soba_1: 10,22 m2
Soba_2: 8,40 m2
Kupaonica: 4,59 m2
Stan 2 ukupno netto: 57,67 m2

Građevina je isključivo stambene namjene. Sadržavat će 6 stanova sa pripadajućim spremištima u podrumu i parkirnim mjestima na otvorenom.

U podrumu je smješteno 6 spremišta za 6 stanova.

U prizemlju su smještena 2 stana. Na 1.katu su smještena 2 stana. Na 2.katu su smještena 2 stana.

VANJSKI IZGLED I UREĐENJE OKOLIŠA:
Zgrada ima jednostavne i funkcionalne volumene. Pročelja su umjereno horizontalno i vertikalno razvedena. Obrada pročelja će biti izvedena suvremenim materijalima, u nekoj od nijansi bijele i sive boje. Vanjska stolarija će biti od PVC-a, u crnoj boji. Ograde balkona će biti staklene. Vrsta krova je ravni krov. Neizgrađeni dio građevne čestice bit će uređen kao kolno-pješačka površina, površina za pristup građevini, pješačka površina i zelena površina. Kolno-pješačka površina i površina za pristup građevini će
biti asfaltirana. Pješačka površina će biti opločena betonskim elementima, a zelene površine će biti travnate i hortikulturno uređene sadnjom niskog i visokog autohtonog raslinja

KONSTRUKCIJA:
Konstrukcija zgrade je zidana od blok opeke, osim podrumskih zidova koji su armiranobetonski. Zidovi od blok opeke su uokvireni vertikalnim i horizontalnim armiranobetonskim serklažima. Međukatne konstrukcije su pune armiranobetonske ploče. Stubišni krakovi i podesti su pune armiranobetonske ploče. Stupovi, grede i nadvoji su od armiranog betona. Temelji i nadtemeljni zidovi su od armiranog betona. Krovna konstrukcija je puna armiranobetonska ploča.

INSTALACIJE:
U zgradi će se nalaziti instalacije dovoda i odvoda sanitarno potrošne vode, instalacija odvoda oborinske vode, instalacija odvoda kondenzata sa termotehničke instalacije, elektroinstalacija jake i slabe struje (telefonija i parlafon), te strojarska instalacija grijanja, hlađenja i ventilacije.

MIKROLOKACIJA:
Općina Viškovo smještena je sjeverozapadno od Rijeke, i predstavlja jedno od najpropulzivnijih područja, ne samo unutar Primorsko – goranske županije, već i na razini države.
Sa državnim cestama Općina Viškovo je spojena preko glavnog čvora Škurinje te preko novootvorenog čvora Rujevica (Riječka obilaznica) koji olakšava tranzit i pristup samoj Općini. Kroz Općinu prolazi ukupno 5 županijskih i 4 lokalne ceste. Općina Viškovo nalazi se vrlo blizu granice sa Slovenijom (granični prijelaz Rupa) te je tako lako i brzo dostupna Slovencima i Talijanima,a djelomično se oslanja i na Opatiju kao jako turističko središte.Naselje Viškovo administrativno je središte općine. Duž glavne prometnice smještene su sve važne ustanove : Općina, pošta, osnovna škola, vrtići, knjižnica, ustanove primarne zdravstvene zaštite, ljekarne, banke, crkva, turistička zajednica, pumpne stanice te niz prodavaonica prehrambenih proizvoda, a tu su i razne uslužne djelatnosti.

NEKRETNINA NA ODLIČNOJ I JEDINSTVENOJ LOKACIJI S VELIKIM POTENCIJALOM!

Svakako nekretnina za obiteljski život, ali pogodna i kao investicija u vidu turizma.

Budite korak ispred i iskoristite ovu rijetku priliku!

Poštovani klijenti, agencijska provizija naplaćuje se u skladu s Općim uvjetima poslovanja:
www.dux-nekretnine.hr/opci-uvjeti-poslovanja

ID KOD AGENCIJE: 44430

Rene Nemarnik
Agent s licencom
Mob: +385 91 737 5328
Tel: +385 91 480 8808
E-mail: [email protected]
www.dux-nekretnine.hr

Lokacija

close
Napomena: prikazana je točna lokacija

Dodatni podaci

Podaci o objektu

  • Gradski vodovod

Balkon/Lođa/Terasa

  • Terasa

Funkcionalnosti i karakteristike

  • Video Portafon

Dozvole i potvrde

  • Građevinska dozvola
Oglas objavljen 08.01.2026. 00:00
Do isteka još 1 godinu i 2 tjedna
Pregleda 118

Slični oglasi Pogledaj sve oglase

Navedite razlog prijave oglasa

Podijeli oglas

RIJEKA, VIŠKOVO - stan 2. ( 57 m2 ) U NOVOGRADNJI 2S+DB, URBANA GRADNJA VIŠKOVO! PRILIKA!

RIJEKA, VIŠKOVO - stan 2. ( 57 m2 ) U NOVOGRADNJI 2S+DB, URBANA GRADNJA VIŠKOVO! PRILIKA!

ID oglasa: 101497

Cijena: 164.500,00 €

U usporedbi može biti maksimalno 4 oglasa. Uklonite 1 oglas kako bi dodali novi oglas u usporedbe

PROVJERI OGLASE