RIJEKA, PEHLIN, PODMURVICE- dvoetažni stan 101.24m2 u novogradnji s pogledom na more, DB+2S.- STAN 3D

Cijena: 415.000,00 €
ID oglasa: 84315

Osnovni podaci

Lokacija Primorsko-goranska, Rijeka, Podmurvice
Tip stana u stambenoj zgradi
Stambena površina 101,24 m²
Broj etaža 2
Broj soba Garsonijera
Kat 2. kat
Netto površina 101,24 m²
Godina izgradnje 2025
Ukupni broj katova u zgradi 2
Energetski razred A+
Broj vlastitih parkirnih mjesta 2
Klima uređaj DA

Opis

RIJEKA, PEHLIN, PODMURVICE- dvoetažni stan 101.24m2 u novogradnji s pogledom na more, DB+2S.- STAN 3D

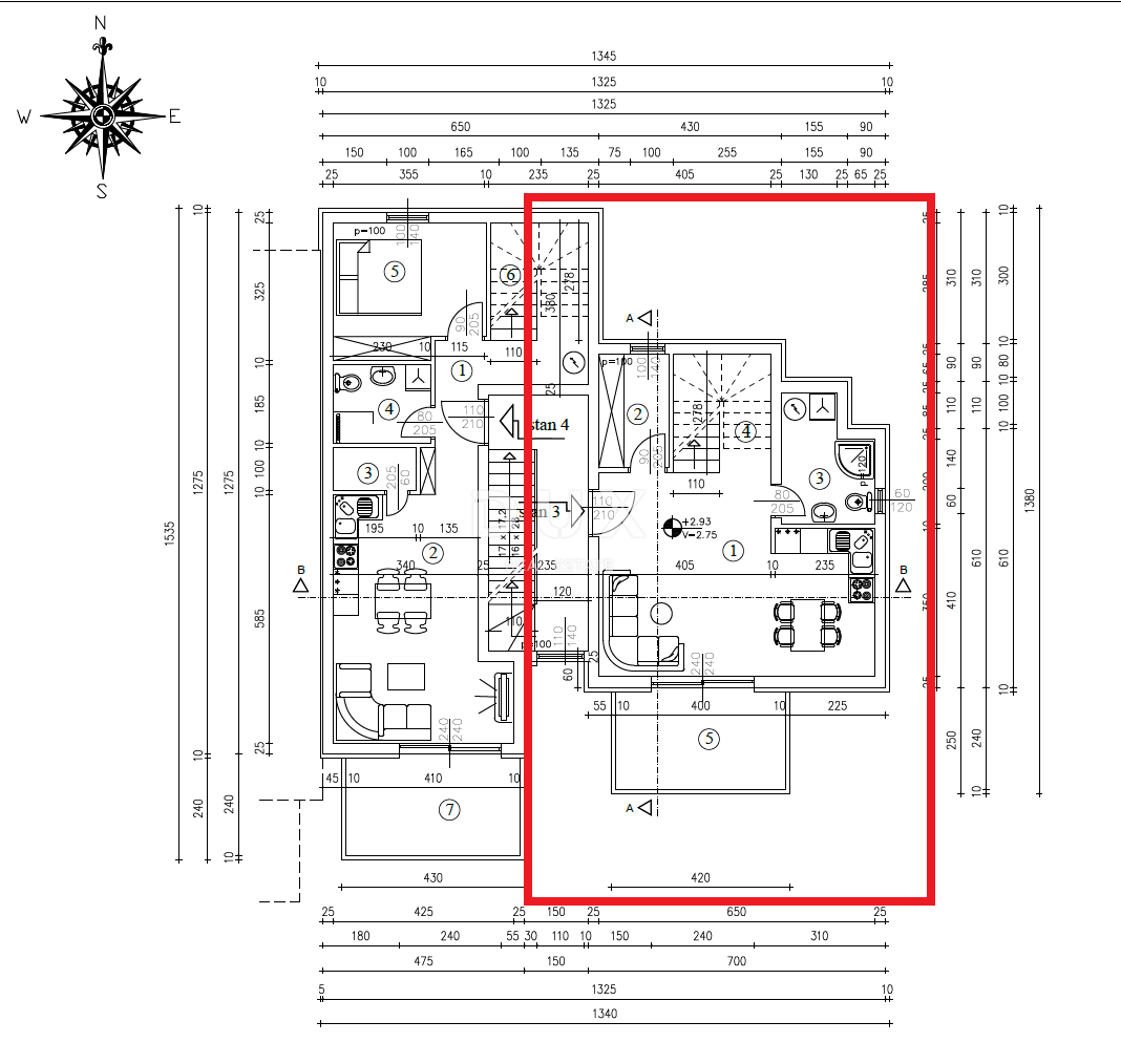
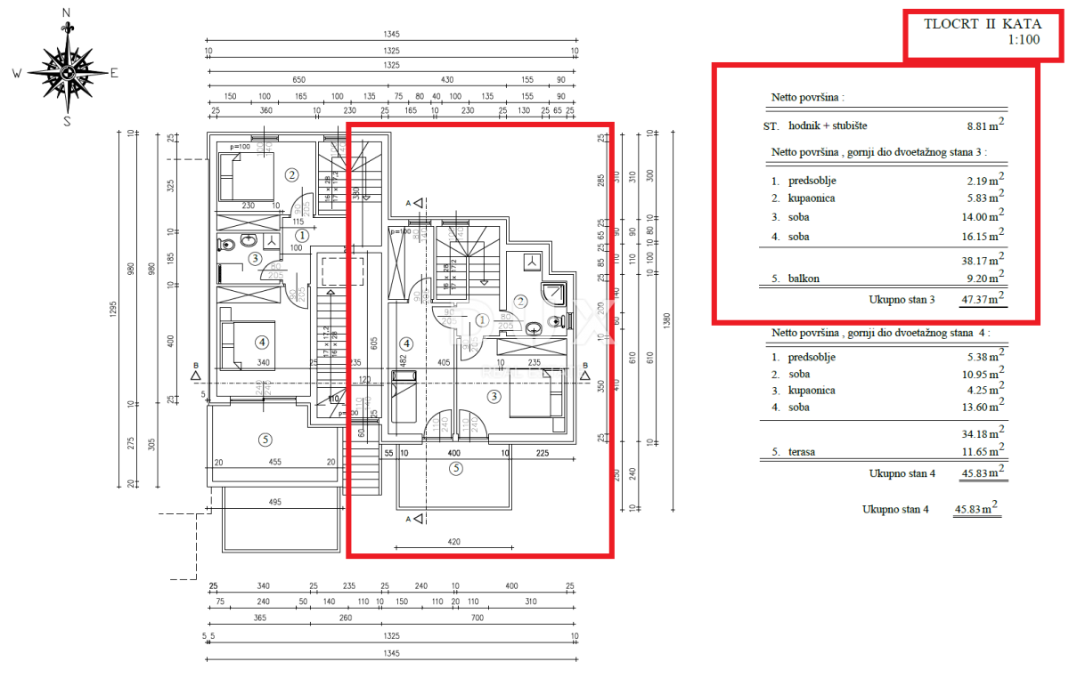
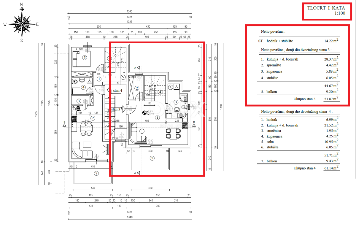
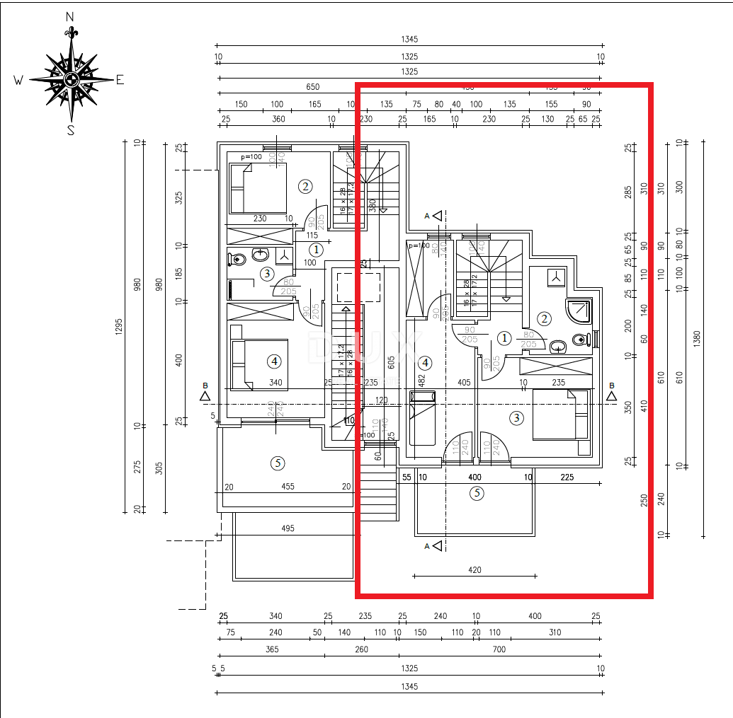
STAN 3D, dvoetažni, 1.KAT + 2.KAT, 101.24m2:
1.KAT:
- dnevni boravak + kuhinja
- stubište
- spremište
- kupaona
- balkon

2.KAT:
- 2 sobe
- kupaona
- predsoblje
- balkon

STANOVI OPIS:
Stanovi odišu luksuzom, opremljeni vrhunskim materijalima i opremom, a velike staklene površine osiguravaju obilje prirodnog svjetla te pružaju prekrasan pogled na more i otoke.
- velike ostakljene površine sa pogledom na more i otoke
- vrhunska aluminijska stolarija
- rolete sa elektromotorima
- mreže za zaštitu protiv insekata
- troslojni parketi većih dimenzija
- podno grijanje - dizalice topline
- kvalitetne pločice
- vrhunske sanitarije i kupaonska oprema
- grijanje i hlađenje preko dizalica topline, sa unutarnjim fan coilerima
- betonska konstrukcija
- toplinska izolacija vanjskih zidova 10 cm
- priprema za punjenje električnih automobila na parkiralištu zgrade

PANORAMA
Prekrasan pogled na more, otoke i cijeli Kvarner

SIGURNOST:
Protupotresna i protupožarna zaštita, ograđeno dvorište te kontrola ulaska u objekte.

ENERGETSKA UČINKOVITOST:
Na objektima se ugrađuje aluminijska stolarija, te termoizolirana fasada debljine 10 cm.
Grijanje i hlađenje se postiže dizalicama topline. Ugradnjom visoko kvalitetnih materijala i opreme, osigurana je niska potrošnja energije, te je dostignut energetski standard A.

LOKACIJA :
Zgrade su smještene na mirnoj lokaciji u Hostima na kraju slijepe ulice, novoizgrađene isključivo za potrebe našeg naselja.
Nalazi se par minuta vožnje iznad stadiona Rujevica i velikog supermarketa, 10 minuta od centra Rijeke i 15 minuta od Opatije.
Odlična infrastruktura u radijusu od 150m do 750m:
- izlaz/ulaz na zaobilaznicu, autobusna stanica, pošta, banka, sportski centar, ambulanta, ljekarna, restoran, škola, dječji vrtić, fakultet, trgovački centar, benzinska pumpna stanica...

UNIKATNA NEKRETNINA SVAKAKO VRIJEDNA PAŽNJE NA ODLIČNOJ LOKACIJI!!!

Za sve ostale informacije, kontaktirajte agente.

Poštovani klijenti, agencijska provizija naplaćuje se u skladu s Općim uvjetima poslovanja:
www.dux-nekretnine.hr/opci-uvjeti-poslovanja

Poštovani potencijalni kupci, najmoprimci i zakupoprimci,
razgledavanje nekretnine koja vas zanima i za koju imate interes moguće je jedino i isključivo uz potpis Ugovora o posredovanju nekretnina, i to u svrhu zaštite vlasnika nekretnine od posjeta neregistriranih osoba, a i u skladu sa Zakonom o zaštiti podataka i Zakonom o posredovanju u prometu nekretnina.
Pri razgledavanju svake nekretnine potencijalni kupac/najmoprimatelj/ zakupoprimac je obavezan ispuniti i potpisati Ugovor o posredovanju nekkretnina u kojem je navedeno sljedeće:
- osnovni podaci o potencijalnom kupcu/najmoprimatelju/ zakupoprimacu
- osnovni podaci o agenciji
- iznos agencijske provizije
Agencijska provizija za kupca iznosi 3% (+25% PDV) od ukupno dogovorene kupoprodajne cijene.
Agencijska provizija za najmoprimca/zakupnika iznosi jednu mjesečnu najamninu/zakupninu (+ 25% PDV).

ID KOD AGENCIJE: 43394

Patrik Hrštić
Agent s licencom
Mob: +385 91 270 3979
Tel: +385 91 480 8808
E-mail: [email protected]
www.dux-opatija.com

Višnja Torić
Agent pripravnik
Mob: +385 91 902 6353
Tel: +385 91 480 8808
E-mail: [email protected]
www.dux-nekretnine.hr

Lokacija

close
Napomena: prikazana je točna lokacija

Dodatni podaci

Podaci o objektu

  • Gradski vodovod
  • Gradska kanalizacija

Balkon/Lođa/Terasa

  • Terasa

Funkcionalnosti i karakteristike

  • Video Portafon

Dozvole i potvrde

  • Građevinska dozvola
Oglas objavljen 13.11.2025. 00:00
Do isteka još 2 godine i 8 mjeseci
Pregleda 2

Slični oglasi Pogledaj sve oglase

Navedite razlog prijave oglasa

Podijeli oglas

RIJEKA, PEHLIN, PODMURVICE- dvoetažni stan 101.24m2 u novogradnji s pogledom na more, DB+2S.- STAN 3D

RIJEKA, PEHLIN, PODMURVICE- dvoetažni stan 101.24m2 u novogradnji s pogledom na more, DB+2S.- STAN 3D

ID oglasa: 84315

Cijena: 415.000,00 €

U usporedbi može biti maksimalno 4 oglasa. Uklonite 1 oglas kako bi dodali novi oglas u usporedbe

PROVJERI OGLASE