Ribnička, Ribnica, 10.280,00 m2, 320.000,00 EUR

Cijena: 320.000,00 €
ID oglasa: 95729

Osnovni podaci

Lokacija Zagrebačka, Velika Gorica - Okolica, Ribnica
Tip zemljišta Građevinsko
Namjena stambeno
Površina 10.280 m²

Opis

Ribnička, Ribnica, 10.280,00 m2, 320.000,00 EUR
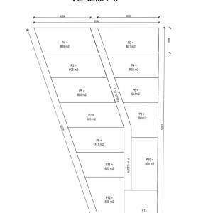
PRODAJA ZEMLJIŠTA, VELIKA GORICA, RIBNICA, 10.280M2.
Prodaje se lijepa, pravilna parcela u stambenoj zoni za gradnju pretežito obiteljskih kuća. Mogućnost gradnje 13-14 zasebnih, samostojećih jedinica maksimalne kvadrature 400 m2 BRP-a.
Svi priključci na cesti! Velika Gorica i svi sadržaji na 5 minuta vožnje.
USLUGA KREDITNOG POSREDOVANJA: Opereta ekspert pruža besplatnu uslugu kreditnog posredovanja, uspoređujući ponude više banaka na jednom mjestu. Naš tim objašnjava sve opcije i vodi vas kroz cijeli proces – od konzultacija do isplate kredita, kako biste donijeli informiranu financijsku odluku i uštedjeli vrijeme.

Lokacija

close
Napomena: prikazana je točna lokacija
Oglas objavljen 05.12.2025. 00:33
Do isteka još 2 godine i 8 mjeseci
Pregleda 110

Slični oglasi Pogledaj sve oglase

Navedite razlog prijave oglasa

Podijeli oglas

Ribnička, Ribnica, 10.280,00 m2, 320.000,00 EUR

Ribnička, Ribnica, 10.280,00 m2, 320.000,00 EUR

ID oglasa: 95729

Cijena: 320.000,00 €

U usporedbi može biti maksimalno 4 oglasa. Uklonite 1 oglas kako bi dodali novi oglas u usporedbe

PROVJERI OGLASE