Pula! Moderna zgrada s liftom u izgradnji, blizu centra. S21

Cijena: 202.155,00 €
ID oglasa: 48855

Osnovni podaci

Lokacija Istarska, Pula, Centar
Tip stana u kući
Stambena površina 56 m²
Broj etaža Jednoetažni
Broj soba Garsonijera
Kat Suteren

Opis

Pula!
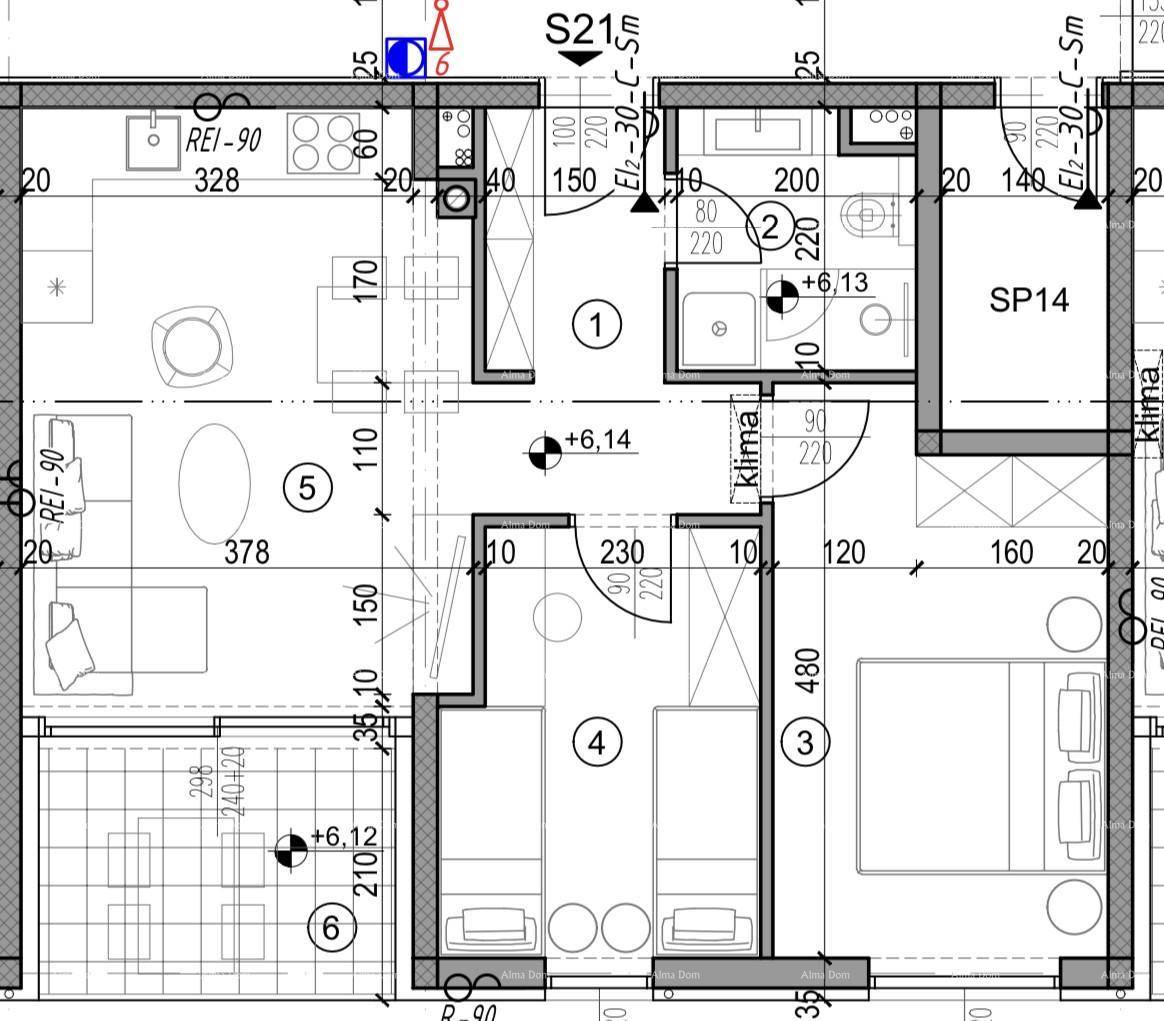
U ponudi je stan na 1. katu višestambene zgrade s liftom. Stan S21 će se sastojati od ulaznog hodnika+garderoba, 2 spavaće sobe, kupaonice, kuhinje s blagavaonom te dnevnim boravkom i loggia.

OPREMA:
-el.podno grijanje u kupaonici
-el.bojler Ariston Velis
-protuprovalna ulazna vrata
-inverter klima uređaj
-keramika
-laminat
-unutarnja bijela sobna vrata

Stanovi se prodaju završeni, po sistemu"ključ u ruke".
Odlična lokacija. Blizina shoping centra te samog centra Pule - 1 km.

Zgrada će imati dva ulaza, dva lifta, 6 katova.
Više slobodnih stanova u ponudi.

Stanu pripada i spremište od 3.78 m2 uz dodatnu nadoplatu, kao i parkirno mjesto.

Cijena stana s parkirnim mjestom i spremištem iznosi: 216.324 eura.
*U cijenu uključen PDV.

Planirani završetak građevinskih radova je početak 2026. godine.

Info:
Azra Valjevac
+385 91 611 5706
+385 98 420 885
[email protected]

Lokacija

close
Napomena: prikazana je točna lokacija

Kontakt podaci

Adresa 52100 nazovi 052/213-332 Poruka Pošalji privatnu poruku
Verifikacija Korisnik je verificirao broj telefona u državi: Hrvatska
Oglas objavljen 15.09.2025. 16:34
Do isteka još 2 godine i 8 mjeseci
Pregleda 114

Slični oglasi Pogledaj sve oglase

Navedite razlog prijave oglasa

Podijeli oglas

Pula! Moderna zgrada s liftom u izgradnji, blizu centra. S21

Pula! Moderna zgrada s liftom u izgradnji, blizu centra. S21

ID oglasa: 48855

Cijena: 202.155,00 €

U usporedbi može biti maksimalno 4 oglasa. Uklonite 1 oglas kako bi dodali novi oglas u usporedbe

PROVJERI OGLASE