Prodaje se stan u novogradnji, Tar

Cijena: 255.000,00 €
ID oglasa: 118828

Osnovni podaci

Lokacija Istarska, Poreč, Poreč
Tip stana u kući
Stambena površina 78 m²
Broj etaža Jednoetažni
Broj soba Garsonijera
Kat Suteren

Opis

Prodaje se stan u Taru kraj Poreča (8 km).
Zbog svoje lokacije i sadržaja ova je nekretnina idealna investicija za obiteljski život kao i za odmor ili turističku rentu.
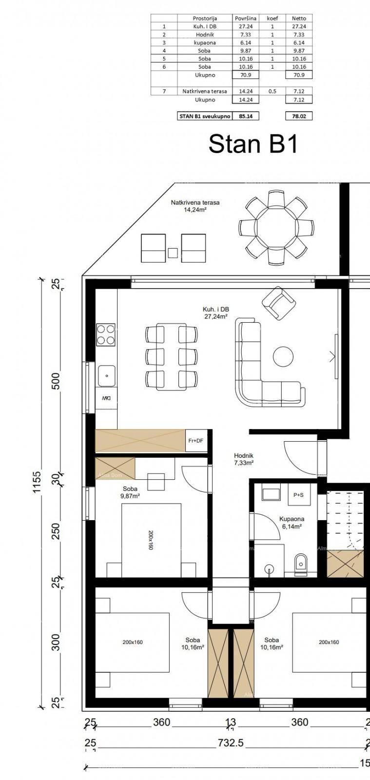
Stan, oznake B1 se nalazi u prizemlju, površine 78.02, ima vrt (za jacuzzi, ljetnu kuhinjicu, kamin i td). Stan se sastoji od hodnika, kuhinjei dnevnog boravka, 3 spavaće sobe, kupaonice, ostave, terase.
Osim kvalitetne gradnje, zgrada će biti opremljena i vrhunskom opremom kao što je termoizolacija zgrade(10 cm), krovna izolacija 20 cm, kvalitetna alu i pvc stolarija, svaki stan ima klima uređaje, vrhunska keramika (kupci biraju keramiku ili laminat) protuprovalna i protupožarna ulazna vrata, opremljena kupaona sa sanitarijama, parkirna mjesta nalaze se ispred zgrade (moguće je kupiti 2 parking mjesta).
Svi stanovi imaju pripadajuću terasu s lijepim pogledom na prirodu i borovu šumu.
Svi potrebni sadržaji za život poput škole, vrtića, apoteke, pošte, ugostiteljskih objekata, trgovina, ambulante nalaze minutu vožnje.
Početak radova 1. mjesec 2024 god.
Planirani završetak radova je 12. mjesec 2024 god.

Za više informacija, molimo kontaktirajte:

Azra Valjevac
+385 91 6115706
+385 98 420 885
[email protected]

Lokacija

close
Napomena: prikazana je točna lokacija

Kontakt podaci

Adresa 52100 nazovi 052/213-332 Poruka Pošalji privatnu poruku
Verifikacija Korisnik je verificirao broj telefona u državi: Hrvatska
Oglas objavljen 11.04.2026. 01:12
Do isteka još 2 godine i 8 mjeseci
Pregleda 95

Slični oglasi Pogledaj sve oglase

Navedite razlog prijave oglasa

Podijeli oglas

Prodaje se  stan u novogradnji, Tar

Prodaje se stan u novogradnji, Tar

ID oglasa: 118828

Cijena: 255.000,00 €

U usporedbi može biti maksimalno 4 oglasa. Uklonite 1 oglas kako bi dodali novi oglas u usporedbe

PROVJERI OGLASE